1. Home
  2. Retirement Villages
  3. QLD
  4. Sunshine Coast
  5. Palmwoods
9

Available

  • Under Offer

  • 2
  • 2
  • 2
Under Offer

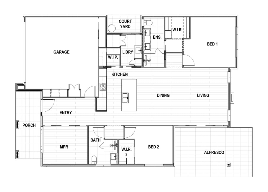
Resale Villa 51 - GemLife Palmwoods Luxury Over 50s Lifestyle Resort

This beautifully presented resale property at GemLife Palmwoods, offers a spacious 204.31m² floor plan.

Designed for comfort and convenience, the home features two bedrooms plus a multipurpose room, a fitted doggie door, and a front entrance patio screen for added privacy.

The garage is enhanced with roof and door insulation plus a ceiling fan, ensuring year round usability. Inside, the kitchen boasts extra pantry cupboards, while the lounge and main bedroom are equipped with six phase DC remote control fans for superior climate control.

This thoughtfully upgraded home combines functionality with lifestyle, making it an ideal choice for over 50s luxury living.

- Total floor area of 204.31m²

- Sundew design

- 2 bedrooms plus multi-purpose room

- Fitted doggie door

- Front entrance patio screen

- Insulation in garage roof and door with ceiling fan

- Extra pantry cupboards

- Lounge and main bedroom have 6 phase DC remote control fans.

GemLife resorts charge a weekly site fee to cover the cost of operating and maintaining the community. We ensure your investment is safe and maintained to the highest standard.

- No entry or exit fees

- No stamp duty on purchase

- Keep 100% of the capital gains when you sell

- Homeowners only, no rentals

- Pets welcome.

You may be eligible to receive Federal Government Rent Assistance if you are on a pension. For more information on the Pension and Rent assistance call 13 23 00 or visit www.servicesaustralia.com.au. All viewings are by appointment only.

Please contact the GemLife Resales team to book an inspection.

DISCLAIMER: We have in preparing this advertisement used our best endeavours to ensure the information contained is true and accurate but accept no responsibility and disclaim all liability in respect to any errors, omissions, inaccuracies, or misstatements contained. Prospective purchasers should make their own enquiries to verify the information contained in this advertisement.

Enquire Now

  • $1,080,000

  • 2
  • 2
  • 2

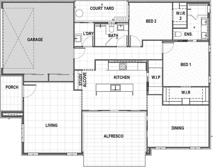
Resale Villa 43 - GemLife Palmwoods Luxury Over 50s Lifestyle Resort

Feel special in this beautiful two-bedroom plus multipurpose room home. The Sundew design is a home created to suit your needs.

An oversized and very private alfresco area floods the living and dining areas with natural light and makes indoor-outdoor living a breeze. The luxurious master bedroom, with walk-in wardrobe and ensuite bathroom with his’ and her’ basins, located at the rear of the home away from the main living spaces in addition to the second bedroom, provides added privacy.

All living areas are tiled, with carpet in the bedrooms and multipurpose room. Plantation shutters are a feature along with raked ceilings, extra-large linen cupboards, a butler’s pantry, and soft closing drawers in the kitchen and decorative mirror at the entrance.

A courtyard is located off the laundry and there is also a two-car garage with built-in shelved cupboard, epoxy flooring and panel lift door. In addition, this stunning home enjoys beautiful views of the mountains.

- Total floor area of 224.63m²

- Sundew design

- 2 Bedrooms plus multi-purpose room which has built in wardrobes with mirrored door

- 2 Bathrooms

- Plantation shutters

- Ensuite has double shower with product shelves, his & her sinks,

- Garage has large built in shelved cupboard, epoxy flooring & panel lift door

- Tiled in living areas, carpet in bedrooms and multi-purpose room

- Private courtyard off laundry

- Alfresco area is very private

- Beautiful views of the mountains

- Raked ceiling

- Extra-large walk-in linen cupboards

- Butler’s pantry and kitchen with soft closing drawers

- Decorative mirror in entrance.

GemLife resorts charge a weekly site fee to cover the cost of operating and maintaining the community. We ensure your investment is safe and maintained to the highest standard.

- No entry or exit fees

- No stamp duty on purchase

- Keep 100% of the capital gains when you sell

- Homeowners only, no rentals

- Pets welcome.

You may be eligible to receive Federal Government Rent Assistance if you are on a pension. For more information on the Pension and Rent assistance call 13 23 00 or visit www.servicesaustralia.com.au.

All viewings are by appointment only. Please contact the GemLife Resales team to book an inspection.

DISCLAIMER: We have in preparing this advertisement used our best endeavours to ensure the information contained is true and accurate but accept no responsibility and disclaim all liability in respect to any errors, omissions, inaccuracies, or misstatements contained. Prospective purchasers should make their own enquiries to verify the information contained in this advertisement.

Enquire Now

  • $1,100,000

  • 2
  • 2
  • 2

Resale Villa 8 - GemLife Palmwoods Luxury Over 50s Lifestyle Resort

Discover exceptional low maintenance living on this generous north-east facing site property, featuring an expansive private backyard and delightful glimpses of the Maleny and Montville ranges.

Discover exceptional low maintenance living in this beautifully appointed home which offers two bedrooms, including a master suite with ensuite, along with a modern bathroom and ducted air-conditioning with ceiling fans throughout for year-round comfort.

The stylish kitchen boasts Smeg appliances, a spacious walk-in butler’s pantry with ample shelving and drawers, and the convenience of largely unused appliances including the microwave and oven.

Additional highlights include garage with epoxy flooring and abundant storage, as well as thoughtful extras such as bathroom shutters, vertical blinds in the laundry, roll-down patio screens, and an EV charger.

This immaculate home combines comfort, quality, and premium features in a serene and private setting.

  • Paynter design

  • Total floor area of 211.29m²

  • Expansive private backyard

  • Some views of the Maleny and Montville Mountain

  • Two bedrooms, including a master with ensuite

  • 2 Bathrooms

  • Garage with epoxy flooring, ample storage

  • Ducted air-conditioning and ceiling fans throughout

  • Spacious walk-in butler’s pantry with shelving and drawers

  • Smeg appliances

Extras:

  • Shutters in the bathroom

  • Vertical blinds in the laundry

  • Roll down patio screens

  • EV Charger

  • Microwave and oven (never used).

GemLife resorts charge a weekly site fee to cover the cost of operating and maintaining the community. We ensure your investment is safe and maintained to the highest standard.

  • No entry or exit fees

  • No stamp duty on purchase

  • Keep 100% of the capital gains when you sell

  • Homeowners only, no rentals

  • Pets welcome.

You may be eligible to receive Federal Government Rent Assistance if you are on a pension. For more information on the Pension and Rent assistance call 13 23 00 or visit www.servicesaustralia.com.au. All viewings are by appointment only.

Please contact the GemLife Resales team to book an inspection.

DISCLAIMER: We have in preparing this advertisement used our best endeavours to ensure the information contained is true and accurate but accept no responsibility and disclaim all liability in respect to any errors, omissions, inaccuracies, or misstatements contained. Prospective purchasers should make their own enquiries to verify the information contained in this advertisement.

Enquire Now

  • $1,200,000

  • 2
  • 2
  • 2

Resale Villa 88 - GemLife Palmwoods Luxury Over 50s Lifestyle Resort

This stylish resale home offers two bedrooms plus a multipurpose room, two modern bathrooms, and a light-filled open plan living and dining area with soaring 3.3-metre ceilings. At its heart, a gourmet stone kitchen with island bench, premium Smeg appliances, and a spacious walk-in pantry provides the perfect space for cooking and entertaining.

Step outside to a private covered alfresco, complete with patio blinds and extra power points, where you can relax and enjoy sunset views over a lush, established garden filled with natives and fruit trees. Inside, easy-care neutral flooring, plantation shutters, ducted air-conditioning, and solar power combine comfort with convenience.

Additional features include double car garaging, a separate laundry with ample storage, and extra TV noggin points throughout. Thoughtfully designed and beautifully maintained, this home offers both style and functionality in equal measure.

- Total floor area of 211.31m2

- Paynter design

- 2 Bedrooms + MPR

- 2 Bathrooms

- Gourmet stone kitchen with island bench, quality Smeg appliances and large walk-in pantry

- Light-filled open plan living dinning area with 3.3m high ceilings

- Large, lush garden replanted by owner with natives and fruit trees

- Watch the sunset sky from private covered alfresco overlooking garden

- Blinds on patio with extra power points

- Extra TV noggin points

- Easy care neutral flooring, ducted aircon, plantation shutters

- Double car garaging, separate laundry with ample storage

GemLife resorts charge a weekly site fee to cover the cost of operating and maintaining the community. We ensure your investment is safe and maintained to the highest standard.

- No entry or exit fees

- No stamp duty on purchase

- Keep 100% of the capital gains when you sell

- Homeowners only, no rentals

- Pets welcome

You may be eligible to receive Federal Government Rent Assistance if you are on a pension. For more information on the Pension and Rent assistance call 13 23 00 or visit www.servicesaustralia.com.au.

All viewings are by appointment only. Please contact the GemLife Resales team to book an inspection.

DISCLAIMER: We have in preparing this advertisement used our best endeavours to ensure the information contained is true and accurate but accept no responsibility and disclaim all liability in respect to any errors, omissions, inaccuracies, or misstatements contained. Prospective purchasers should make their own enquiries to verify the information contained in this advertisement.

Enquire Now

  • $1,275,000

  • 2
  • 2
  • 2

Resale Villa 118 - GemLife Palmwoods Luxury Over 50s Lifestyle Resort

This spacious two-bedroom plus multipurpose room home is designed for low-maintenance hinterland living.

The master bedroom at the front of the home boasts a spacious walk-in wardrobe fit for the most extravagant of fashionistas and a double-vanity ensuite bathroom gives everyday living a luxurious feel. A modern, designer kitchen, equipped with high-end appliances, soft close drawers, integrated dishwasher, multi tap, microwave, and a walk-in pantry with adjustable shelving, makes cooking a joy.

On warm summer days, slide back the two sets of double-stacker doors to let the sunshine in and entertain family and friends alfresco-style. Both bathrooms feature floor to ceiling tiles plus heat lamps and exhaust fans. There is a separate laundry with linen and broom cupboards as well as a two-car garage with remote-controlled door, epoxy floor and storage cupboards.

Enjoy a comfortable lifestyle with zoned ducted air conditioning and fans throughout as well as security screens on all doors and windows, and a security system. The main areas are tiled while there is carpet in the bedrooms. This stunning home offers something for everyone.

- Total floor area of 211.58m²

- Land size approximately 348.89m²

- Riberry design

- Designer inclusions

- Expansive backyard with westward mountain views, featuring center raised flower bed

- Two bedrooms, including a master with ensuite

- Garage with epoxy flooring and ample storage

- Ducted air-conditioning and ceiling fans throughout

- Spacious walk-in butler’s pantry with shelving and drawers

- Smeg appliances

- Fully tiled interior

- Window shutters for added privacy and light

- Intercom

GemLife resorts charge a weekly site fee to cover the cost of operating and maintaining the community. We ensure your investment is safe and maintained to the highest standard.

- No entry or exit fees

- No stamp duty on purchase

- Keep 100% of the capital gains when you sell

- Homeowners only, no rentals

- Pets welcome.

You may be eligible to receive Federal Government Rent Assistance if you are on a pension. For more information on the Pension and Rent assistance call 13 23 00 or visit www.servicesaustralia.com.au. All viewings are by appointment only.

Please contact the GemLife Resales team to book an inspection.

DISCLAIMER: We have in preparing this advertisement used our best endeavours to ensure the information contained is true and accurate but accept no responsibility and disclaim all liability in respect to any errors, omissions, inaccuracies, or misstatements contained. Prospective purchasers should make their own enquiries to verify the information contained in this advertisement.

Enquire Now

  • $1,100,000

  • 2
  • 2
  • 2

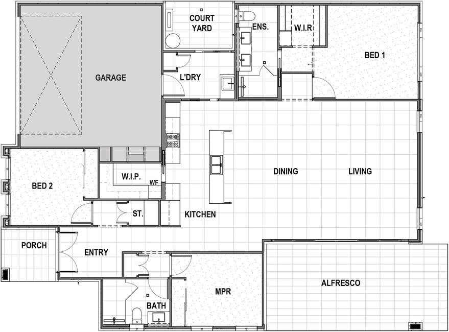
Resale Villa 7 - GemLife Palmwoods Luxury Over 50s Lifestyle Resort

This beautifully presented south facing resale property at GemLife Palmwoods offers a spacious 208.82m² floor plan, thoughtfully designed for comfort and lifestyle.

The home features two bedrooms plus a walk in pantry, a dedicated study area with desk, and a large lounge with a separate dining area that can be interchanged to suit your needs.

A vaulted kitchen ceiling enhances the sense of space and light, while an electronic alfresco blind provides effortless outdoor living.

Combining modern inclusions with flexible design, this home is ideal for those seeking functionality, style, and relaxed living.

- Total floor area of 208.82m²

- Banksia design

- Study area with desk

- Electronic alfresco blind

- Vaulted kitchen ceiling

- Large lounge with separate dining area, can be interchanged

- 2 bedrooms plus multi-purpose room

- Walk in pantry.

GemLife resorts charge a weekly site fee to cover the cost of operating and maintaining the community. We ensure your investment is safe and maintained to the highest standard.

- No entry or exit fees

- No stamp duty on purchase

- Keep 100% of the capital gains when you sell

- Homeowners only, no rentals

- Pets welcome.

You may be eligible to receive Federal Government Rent Assistance if you are on a pension. For more information on the Pension and Rent assistance call 13 23 00 or visit www.servicesaustralia.com.au. All viewings are by appointment only.

Please contact the GemLife Resales team to book an inspection.

DISCLAIMER: We have in preparing this advertisement used our best endeavours to ensure the information contained is true and accurate but accept no responsibility and disclaim all liability in respect to any errors, omissions, inaccuracies, or misstatements contained. Prospective purchasers should make their own enquiries to verify the information contained in this advertisement

Enquire Now

  • Under Offer

  • 2
  • 2
  • 2
Under Offer

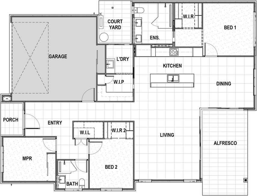
Resale Villa 140 - GemLife Palmwoods Luxury Over 50s Lifestyle Resort

The Laurel design masters the art of living well, hosting two bedrooms plus multi-purpose room and two bathrooms. The gourmet kitchen with skylight and fitted with premium Smeg appliances and a walk-in pantry, forms the heart of the home.

Fluid, functional dining and living spaces open onto the separate private courtyard and alfresco areas, bringing outdoor functions into the home and making the Laurel an excellent choice for entertainers.

A celebration of comfort and style, the master bedroom, with walk-in wardrobe and double vanity ensuite bathroom, is located at the rear of the home and has its own access to the alfresco. A spare bedroom and a multipurpose room give you the freedom to create a home that reflects your new way of life.

This stunning home also hosts ducted air-conditioning, ceiling fans, large walk-in linen cupboard, double garage with storage and epoxy flooring, and is located within a gated, pet-friendly GemLife community.

- Laurel design

- Total floor area of 201.27m²

- 2 Bedrooms plus multi-purpose room with built-in cupboard and shelfing, mirrored doors

- 2 Bathrooms

- Ensuite has double shower & his & her sinks

- Large walk-in linen cupboard

- Ducted air-conditioning and ceiling fans

- Walk-in butler’s pantry

- Private alfresco area with entry from living room or main bedroom

- Separate private courtyard of laundry

- Double garage with cupboards & epoxy flooring

- Hybrid flooring (only multi-purpose room and bedrooms carpeted).

- Front doorbell

- Skylight in Kitchen/dining area

- Easterly aspect

GemLife resorts charge a weekly site fee to cover the cost of operating and maintaining the community. We ensure your investment is safe and maintained to the highest standard.

- No entry or exit fees

- No stamp duty on purchase

- Keep 100% of the capital gains when you sell

- Homeowners only, no rentals

- Pets welcome.

You may be eligible to receive Federal Government Rent Assistance if you are on a pension. For more information on the Pension and Rent assistance call 13 23 00 or visit www.servicesaustralia.com.au. All viewings are by appointment only.

Please contact the GemLife Resales team to book an inspection.

DISCLAIMER: We have in preparing this advertisement used our best endeavours to ensure the information contained is true and accurate but accept no responsibility and disclaim all liability in respect to any errors, omissions, inaccuracies, or misstatements contained. Prospective purchasers should make their own enquiries to verify the information contained in this advertisement.

Enquire Now

  • $1,200,000

  • 2
  • 2
  • 2

Resale Villa 115 - GemLife Palmwoods Luxury Over 50s Lifestyle Resort

Discover exceptional over-50s living in this beautifully appointed GemLife Palmwoods resale home, perfectly positioned on a desirable north-facing corner block. Set on a spacious site with an impressive 224.63m² floor area, this contemporary residence delivers comfort, quality, and convenience at every turn.

Step inside to find stylish plantation shutters, an inviting open-plan layout and a well-designed kitchen featuring a large butler’s pantry with power, 2-drawer dishwasher, gas cooktop, and electric oven – ideal for those who love to cook and entertain.

The light-filled living spaces flow seamlessly to the alfresco area, complete with a roll-down blind on the western side, TV point and mounted bracket, creating the perfect outdoor retreat.

Offering two generous bedrooms plus a versatile multi-purpose room (MPR), the home is designed to suit a range of lifestyles, whether you need a home office, hobby space, or guest accommodation.

Stylish, spacious, and superbly located, this quality home is a standout opportunity in the highly coveted GemLife Palmwoods resorts.

- Total floor area of 224.63m²

- Jacaranda design

- 2 Bedrooms plus MPR

- Plantation shutters

- Large butler’s pantry with power

- 2 Drawer dishwasher

- Gas cooktop and electric stove

- Roll down blind on western side of alfresco

- TV point in alfresco with bracket

- Corner block

GemLife resorts charge a weekly site fee to cover the cost of operating and maintaining the community. We ensure your investment is safe and maintained to the highest standard.

- No entry or exit fees

- No stamp duty on purchase

- Keep 100% of the capital gains when you sell

- Homeowners only, no rentals

- Pets welcome.

You may be eligible to receive Federal Government Rent Assistance if you are on a pension. For more information on the Pension and Rent assistance call 13 23 00 or visit www.servicesaustralia.com.au. All viewings are by appointment only.

Please contact the GemLife Resales team to book an inspection.

DISCLAIMER: We have in preparing this advertisement used our best endeavours to ensure the information contained is true and accurate but accept no responsibility and disclaim all liability in respect to any errors, omissions, inaccuracies, or misstatements contained. Prospective purchasers should make their own enquiries to verify the information contained in this advertisement.

Enquire Now

  • $1,075,000

  • 2
  • 2
  • 2

Resale Villa 122 - GemLife Palmwoods Luxury Over 50s Lifestyle Resort

Enjoy resort-style living in this beautifully presented two-bedroom plus multipurpose room home at GemLife Palmwoods.

Set on a generous 321.48m² north-west facing block, it features a large astro-turfed garden, shaded alfresco area, and filtered afternoon sun through a stunning Ficus tree.

Inside, a modern kitchen with walk-in pantry complements open-plan living, while zoned ducted air-conditioning, solar with battery, and a heat pump hot water system ensure year-round comfort and efficiency.

With security screens, a full security system, and extra parking space, this stylish home combines practicality, privacy, and low-maintenance living in a vibrant over-50s community.

- Total floor area of 212.09m²

- Sundew design

- Large block 321.48m²

- 2 Bedrooms + multi-purpose room

- Large garden area with astro turf

- Alfresco area with north west aspect

- Filtered afternoon sun through beautiful big Ficus - protection from western sun

- Extra space for temporary parking

- Two side entry

- Privacy hedge on both sides of entrance

- Spacious walk-in pantry with adjustable shelving

- Separate laundry with broom cupboard

- Zoned ducted air conditioning

- Ceiling fans throughout

- Heat pump hot water system

- Security screens on all doors and windows

- Security system

- Modern kitchen with soft close draws, integrated dishwasher, multi tap, microwave.

GemLife resorts charge a weekly site fee to cover the cost of operating and maintaining the community. We ensure your investment is safe and maintained to the highest standard.

- No entry or exit fees

- No stamp duty on purchase

- Keep 100% of the capital gains when you sell

- Homeowners only, no rentals

- Pets welcome.

You may be eligible to receive Federal Government Rent Assistance if you are on a pension. For more information on the Pension and Rent assistance call 13 23 00 or visit www.servicesaustralia.com.au. All viewings are by appointment only.

Please contact the GemLife Resales team to book an inspection.

DISCLAIMER: We have in preparing this advertisement used our best endeavours to ensure the information contained is true and accurate but accept no responsibility and disclaim all liability in respect to any errors, omissions, inaccuracies, or misstatements contained. Prospective purchasers should make their own enquiries to verify the information contained in this advertisement.

Enquire Now

Property Overview

Snapshot

Number of Dwellings 204
Year Established 2020
Minimum Dwelling Price $890,000.00
Maximum Dwelling Price $1,600,000.00

Location

Property Features

Recreational Facilities

  • Commercial kitchen
  • Cinema
  • Gymnasium
  • BBQ area/s
  • Library
  • Spa (indoor, heated)
  • Workshop
  • Residents lounge
  • Indoor bowls area
  • Meeting Room
  • Billiards room
  • Tennis Court
  • Craft studio
  • Walking tracks

Amenities

  • Bar (licensed)

Pet Policy

  • Pets Allowed

Garages / Carports

  • 2 Car Garage

Independence

  • Direct Garage Access
  • Secure Estate

Management

  • Residents committee

Accommodation Type

  • Over 55s Development
  • Manufactured Community Park

Contractual Arrangements

  • Buy
  • Buy off the plan
  • Land Lease

About this Property

GemLife Palmwoods

The Community

Located in the charming hinterland town of Palmwoods on the Sunshine Coast, Queensland, GemLife Palmwoods offers a tranquil and peaceful living experience for over 50s. The resort features modern homes with spacious living areas and top-quality finishes, along with a range of resort-style amenities like a country club, heated indoor pool, outdoor amphitheatre, and more. With easy access to local attractions, such as the iconic Palmwoods train station and the scenic Woompoo Circuit walking trail, residents can enjoy a relaxed and active lifestyle while taking in the natural beauty of the area.

Enquire Now

GemLife

The Operator

GemLife over-50s lifestyle resorts are located in premium locations across Australia. From coastal resorts on Queensland’s sub-tropical Sunshine Coast and the stunning Mid North Coast of New South Wales to idyllic rural resorts in Victoria’s Macedon Ranges and Highfields in country Toowoomba, GemLife has something for everyone.

View all villages and aged care facilities of GemLife

Make an Enquiry

Don't miss out!

Contact the operator of GemLife Palmwoods

  • Please do not send job applications on this form. Looking for work? Submit here.

This site is protected by reCAPTCHA and the Google Privacy Policy and Terms of Service apply.

More properties from GemLife

GemLife Bribie Island, Bongaree

Land Lease Community

Dwellings

Over 55s Development, Manufactured Community Park, On-site manager, Residents committee, Hairdresser, Beauty Salon, Bar (licensed)

GemLife Gold Coast, Pimpama

Land Lease Community

Dwellings

Over 55s Development, Manufactured Community Park, Residents committee, Cafe on-site, Village bus, Bar (licensed)

Gemlife Highfields, Highfields

Land Lease Community

316 Dwellings

Over 55s Development, Manufactured Community Park, Residents committee, Bar (licensed)

Subscribe to our fortnightly newsletter

Our fortnightly newsletter brings you all the tips and tricks you need for a successful retirement, covering everything from finances and property, to health and happiness. Get prepared and sign up here.