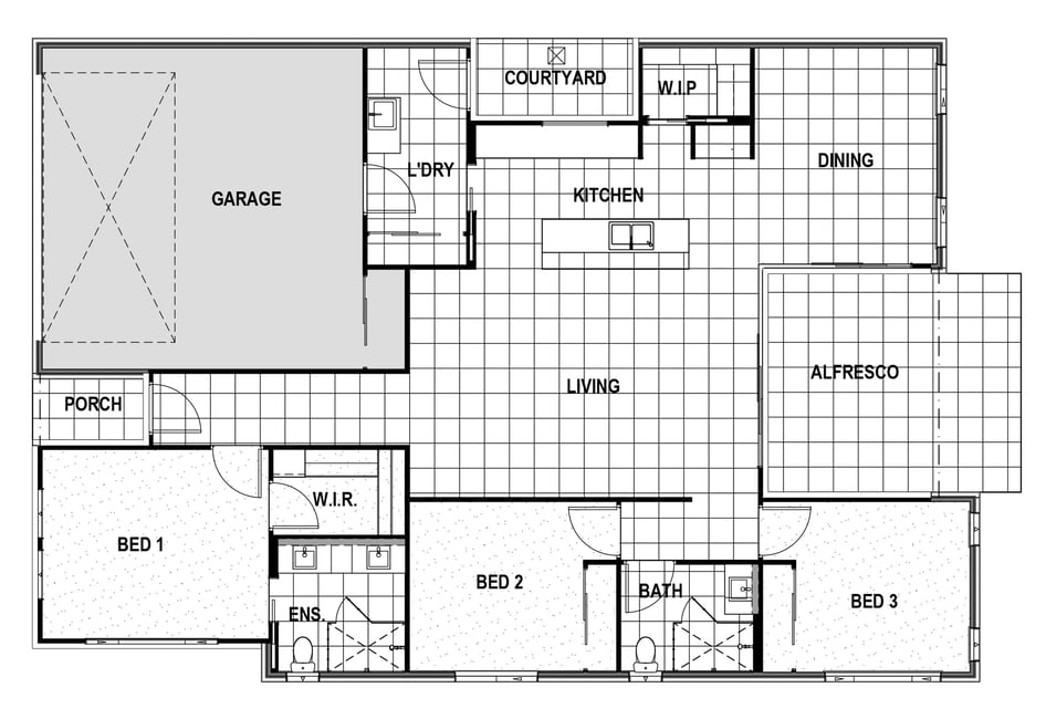
Experience relaxed coastal living in this beautifully appointed south facing two bedroom plus multipurpose (MPR) room home at GemLife Bribie Island, offering quality, comfort, and low maintenance style across a generous 196.17m² floor area.
The master suite features its own walk in robe and elegant ensuite with double sinks and a recessed shaving cabinet, while bedroom two and the MPR include mirrored built in wardrobes. A modern kitchen impresses with Smeg appliances, soft close drawers, a multi tap, dishwasher, microwave, and a spacious walk in pantry with adjustable shelving.
The open plan layout flows seamlessly to a spacious alfresco and additional courtyard, enhanced by sliding stacker doors, an electric awning and extended tiling. Comfort is assured year round with zoned ducted air conditioning, ceiling fans, tinted windows, and a heat pump hot water system.
Additional features include a double remote garage with epoxy flooring and storage, separate dining room, plantation shutters, security system, wide side access, and a handy lawn locker – an exceptional lifestyle opportunity in a sought after resort community.
- Aqua design
- Total floor area of 196.17m
- 3 Bedrooms
- Master bedroom has separate walk in robe
- Bedroom 2 & 3 has built in mirrored wardrobes
- Ensuite has double sinks and recessed shaving cabinet
- Modern kitchen with Smeg appliances, soft close draws, dishwasher, multi tap, microwave
- Double garage with remote-controlled door, epoxy floor and storage cupboard with additional shelving
- Tiles to main areas
- Carpet in all bedrooms
- Bathrooms with floor to ceiling tiles and heat lamp/exhaust fan
- Walk-in pantry with adjustable shelving
- Separate laundry with built in cupboard
- Zoned ducted air conditioning
- Ceiling fans throughout
- Heat pump hot water system
- Security screens on all doors and windows
- Security system
- Kitchen sink with water filter
- Spacious alfresco with an additional courtyard
- Sliding stacker doors to alfresco
- Electric awning to alfresco
- Generous fridge space with water connection
- Tinted front windows
- Blockout roller blinds – bathroom
- Blockout panel glide blinds on the sliding doors to the alfresco
- Plantation shutters to all windows
- Extended tiling to the alfresco area
- Lawn locker
- Separate dining room
- Feature walls
- Wide side access
GemLife resorts charge a weekly site fee to cover the cost of operating and maintaining the community. We ensure your investment is safe and maintained to the highest standard.
- No entry or exit fees
- No Stamp Duty on purchase
- Keep 100% of the capital gains when you sell
- Homeowners only, no rentals
- Pets welcome
You may be eligible to receive Federal Government Rent Assistance if you are on a pension. For more information on the Pension and Rent assistance call 13 23 00 or visit www.servicesaustralia.com.au.
All viewings are by appointment only. Please contact the GemLife Resales team to book an inspection.
DISCLAIMER: We have in preparing this advertisement used our best endeavours to ensure the information contained is true and accurate but accept no responsibility and disclaim all liability in respect to any errors, omissions, inaccuracies, or misstatements contained. Prospective purchasers should make their own enquiries to verify the information contained in this advertisement.