1. Home
  2. Retirement Villages
  3. QLD
  4. Southern Downs
  5. Highfields

Gemlife Highfields, Land Lease Community, Highfields

75 Highgrove Drive Highfields, QLD, 4352

3

Available

  • $800,000

  • 2
  • 2
  • 2

Resale Villa 92 - GemLife Highfields Luxury Over 50s Lifestyle Resort

Nestled within the welcoming GemLife Highfields community, this beautifully presented Aster design offers a comfortable and low maintenance lifestyle ideal for downsizers.

Set on a generous 271.06m² site, the home features a well considered layout with a total floor area of 175.26m², delivering space without compromise.

Inside, you’ll find two spacious bedrooms, complemented by open plan living and dining areas designed for easy everyday living and entertaining. The thoughtful design allows for plenty of natural light, while the manageable outdoor space provides room to relax or personalise.

Perfectly suited to those seeking a move in ready home in a vibrant, secure over 50s community, this residence presents an excellent opportunity to embrace a relaxed and connected lifestyle.

- Aster design

- Total floor area of 175.26m²

- 2 Bedrooms

- Plantation shutters

- Master bedroom with ensuite and walk in robe

GemLife resorts charge a weekly site fee to cover the cost of operating and maintaining the community. We ensure your investment is safe and maintained to the highest standard.

- No entry or exit fees

- No Stamp Duty on purchase

- Keep 100% of the capital gains when you sell

- Homeowners only, no rentals

- Pets welcome

You may be eligible to receive Federal Government Rent Assistance if you are on a pension. For more information on the Pension and Rent assistance call 13 23 00 or visit www.servicesaustralia.com.au.

All viewings are by appointment only. Please contact the GemLife Resales team to book an inspection.

DISCLAIMER: We have in preparing this advertisement used our best endeavours to ensure the information contained is true and accurate but accept no responsibility and disclaim all liability in respect to any errors, omissions, inaccuracies, or misstatements contained. Prospective purchasers should make their own enquiries to verify the information contained in this advertisement.

Enquire Now

  • $999,999

  • 3
  • 2
  • 2

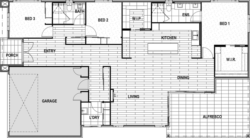
Resale Villa 273 - GemLife Highfields Luxury Over 50s Lifestyle Resort

This impressive resale home showcases a beautiful custom design, finished in the refined terrain colour palette and perfectly oriented to capture a north facing aspect.

Set on a generous site, this 3 bedroom home offers an expansive total floor area of 252.33m², delivering exceptional space, comfort and flexibility for relaxed resort living. Spacious living and dining areas add to its appeal along with the kitchen, which comes with a walk-in pantry and quality inclusions.

The thoughtful custom design creates a strong street presence while maximising internal living areas, ideal for both everyday enjoyment and entertaining.

This is a standout opportunity to secure a substantial, beautifully proportioned home within the popular GemLife Highfields community.

- 3 Bedrooms

- Total floor area of 252.33m²

- Double garage with storage

- Walk in pantry

- Study alcove

GemLife resorts charge a weekly site fee to cover the cost of operating and maintaining the community. We ensure your investment is safe and maintained to the highest standard.

- No entry or exit fees

- No Stamp Duty on purchase

- Keep 100% of the capital gains when you sell

- Homeowners only, no rentals

- Pets welcome

You may be eligible to receive Federal Government Rent Assistance if you are on a pension. For more information on the Pension and Rent assistance call 13 23 00 or visit www.servicesaustralia.com.au.

All viewings are by appointment only. Please contact the GemLife Resales team to book an inspection.

DISCLAIMER: We have in preparing this advertisement used our best endeavours to ensure the information contained is true and accurate but accept no responsibility and disclaim all liability in respect to any errors, omissions, inaccuracies, or misstatements contained. Prospective purchasers should make their own enquiries to verify the information contained in this advertisement.

Enquire Now

  • Under Contract

  • 3
  • 2
  • 2
Under Offer

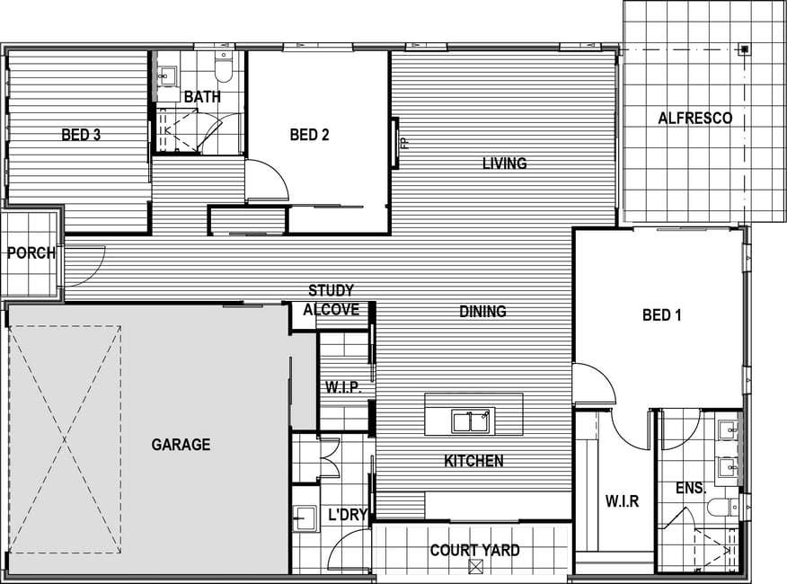
Resale Villa 244 - GemLife Highfields Luxury Over 50s Lifestyle Resort

Discover effortless luxury and smart design in this beautifully crafted Holly‑design home at GemLife Highfields, offering an impressive 232.87m² total floor area.

Featuring three generous bedrooms, a modern walk‑in pantry (WIP) and a convenient study alcove, this residence provides the perfect blend of comfort, practicality, and style. The expansive open‑plan layout flows seamlessly through the living, dining, and kitchen spaces, creating an inviting environment for both relaxed everyday living and entertaining.

Thoughtful design details and quality finishes complete this exceptional home, ideal for those seeking spacious low‑maintenance living in a premium lifestyle community.

- 3 Bedrooms

- Double garage

- Walk in pantry

- Holly design

-Total floor area of 232.87m²

- Study alcove

GemLife resorts charge a weekly site fee to cover the cost of operating and maintaining the community. We ensure your investment is safe and maintained to the highest standard.

- No entry or exit fees

- No Stamp Duty on purchase

- Keep 100% of the capital gains when you sell

- Homeowners only, no rentals

- Pets welcome

You may be eligible to receive Federal Government Rent Assistance if you are on a pension. For more information on the Pension and Rent assistance call 13 23 00 or visit www.servicesaustralia.com.au.

All viewings are by appointment only. Please contact the GemLife Resales team to book an inspection.

DISCLAIMER: We have in preparing this advertisement used our best endeavours to ensure the information contained is true and accurate but accept no responsibility and disclaim all liability in respect to any errors, omissions, inaccuracies, or misstatements contained. Prospective purchasers should make their own enquiries to verify the information contained in this advertisement.

Enquire Now

Property Overview

Snapshot

Number of Dwellings 316

Location

Property Features

Recreational Facilities

  • Commercial kitchen
  • Golf club nearby
  • Cinema
  • Outdoor bowling green
  • Community centre
  • Gymnasium
  • BBQ area/s
  • Library
  • Spa (indoor, heated)
  • Workshop
  • Indoor heated pool
  • Residents lounge
  • Woodwork area
  • Meeting Room
  • Billiards room
  • Computer room
  • Tennis Court
  • Craft studio
  • Walking tracks

Amenities

  • Bar (licensed)

Pet Policy

  • Pets Allowed

Garages / Carports

  • 2 Car Garage

Management

  • Residents committee

Accommodation Type

  • Over 55s Development
  • Manufactured Community Park

Contractual Arrangements

  • Buy
  • Buy off the plan
  • Land Lease

About this Property

Gemlife Highfields

The Community

GemLife Highfields is an exclusive over-50s resort located in the scenic Highfields region of Toowoomba, Queensland. The resort boasts a collection of luxurious homes, ranging from two to three bedrooms, designed with contemporary architecture and high-end finishes to provide comfort and sophistication. Additionally, GemLife Highfields features an array of state-of-the-art facilities, including a heated indoor pool, gym, cinema, bowling green, and a games room.

Residents of GemLife Highfields can enjoy an active and vibrant lifestyle through an extensive range of activities and events, from fitness classes and hobby groups to community events and concerts. The resort also offers a spacious and well-appointed clubhouse that serves as the heart of the community and a place to socialize, dine, and relax with friends and family.

With its stunning natural surroundings and proximity to Toowoomba's charming cafes, restaurants, and cultural attractions, GemLife Highfields offers retirees the perfect blend of tranquility, luxury, and convenience.

Enquire Now

GemLife

The Operator

At GemLife, we believe life after 50 should be the best years yet.

Our vibrant, resort-style communities are designed for people who want to live boldly, with modern, beautifully crafted homes, and exceptional facilities that make every day feel special.

We’re passionate about creating places where you can truly thrive – places where neighbours become friends, and where a strong sense of belonging is part of everyday life.

Our vision is simple: to redefine what over-50s living can be. We’re here to help you embrace a lifestyle rich with choice, freedom, and possibility. Whether you want to travel, take up new hobbies, or simply relax in style, GemLife communities are built to support the way you want to live.

Above all, we do things responsibly, with respect for people and the environment, so you can focus on what truly counts – living a whole new life, your way.

Founded in late 2015 as a joint venture between members of the Puljich family – who bring nearly forty years of industry experience – and financial partner Thakral Capital, GemLife has grown to become one of Australia’s fastest-growing over-50s lifestyle resort operators. In July 2025, we listed on the Australian Stock Exchange, marking an exciting new chapter in our journey. Today, we have thriving communities across Queensland, New South Wales, and Victoria, with many more on the way.

Under the leadership of Managing Director and Group Chief Executive Officer Adrian Puljich, we’re committed to creating a future where over-50s can live with confidence and peace of mind.

View all villages and aged care facilities of GemLife

Make an Enquiry

Don't miss out!

Contact the operator of Gemlife Highfields

  • Please do not send job applications on this form. Looking for work? Submit here.

This site is protected by reCAPTCHA and the Google Privacy Policy and Terms of Service apply.

More properties from GemLife

GemLife Bribie Island, Bongaree

Land Lease Community

Dwellings

Over 55s Development, Manufactured Community Park, On-site manager, Residents committee, Hairdresser, Beauty Salon, Bar (licensed)

GemLife Gold Coast, Pimpama

Land Lease Community

Dwellings

Over 55s Development, Manufactured Community Park, Residents committee, Cafe on-site, Village bus, Bar (licensed)

GemLife Palmwoods, Palmwoods

Land Lease Community

204 Dwellings

Over 55s Development, Manufactured Community Park, Residents committee, Bar (licensed)

Subscribe to our fortnightly newsletter

Our fortnightly newsletter brings you all the tips and tricks you need for a successful retirement, covering everything from finances and property, to health and happiness. Get prepared and sign up here.