1. Home
  2. Retirement Villages
  3. QLD
  4. Sunshine Coast
  5. Pacific Paradise
7

Available

  • Under Offer

  • 3
  • 2
  • 2
Under Offer

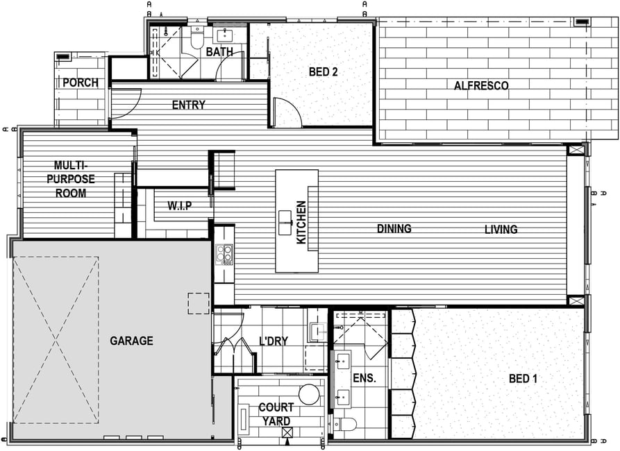
Resale Villa 19 - GemLife Pacific Paradise Luxury Over 50s Lifestyle Resort

This beautifully appointed north facing GemLife Pacific Paradise resale home offers exceptional style and comfort.

The main bedroom includes tinted front windows, a striking Dulux Pearl Effect feature wall and a sleek Lucci low profile ceiling fan, while the ensuite is designed with future flexibility in mind, offering a half shower screen for potential wheelchair access and an 8 bar heated towel rack.

The contemporary kitchen is a standout, featuring a Franke black sink with matching tap positioned beneath a window overlooking a tranquil outdoor waterfall feature, along with instant hot water, dual knife magnet bars, a Baumatic wine fridge, Fisher & Paykel twin drawer dishwasher and premium Smeg appliances.

The butler’s pantry provides excellent storage with additional tiling and extensive shelving. A stylish Shoji style black frame sliding door enhances the hallway’s visual appeal.

Bedroom three, also suited as a multimedia room, features extensive custom cabinetry, shelving, and drawers, plus an included TV and Lucci fan. Outdoors, the alfresco area offers twin remote roller blinds for 90% shade and a raised barbecue stand, while the peaceful waterfall area enjoys a canopy and a Buddha feature on a timer.

Completing the home is a garage fitted with insulated panels to the roller door for improved comfort year round.

- Brooklyn design

- Total floor area of 196.16m²

Main Bedroom:

- Tinted front windows

- Dulux pearl effect feature wall

- “Lucci" close to the ceiling fan

Ensuite:

- Half shower screen, to allow for future wheelchair access

- 8 Bar heated towel rack

Kitchen:

- “Franke" black sink unit with black tap moved to feature window work top

- Kitchen window/backsplash looks onto outdoor “waterfall feature

- Hot water Unit under sink, for instant hot water

- Two magnet bars to hold knives

- “Baumatic” wine Fridge

- Black finger grips to cupboards and drawers

- “Fisher & Paykel" twin drawer dishwasher

- “Smeg" hotplate, microwave and oven

Butlers Pantry:

- Added tiles to wall recesses

- Extensive shelving added to back wall

Hallway:

- “Shoji” black frame sliding door

3rd Bedroom/Multimedia room:

- Extensive built in cupboards, shelves, drawers cabinetry

- TV included

- Lucci fan

Alfresco:

- Twin remote roller blinds, in dark grey, 90% shade

- Raised BBQ stand next to patio

Waterfall area:

- Canopy over kitchen window

- Buddah water fall on timer

Garage:

- Insulation panels added to roller blind door.

GemLife resorts charge a weekly site fee to cover the cost of operating and maintaining the community. We ensure your investment is safe and maintained to the highest standard.

- No entry or exit fees

- No Stamp Duty on purchase

- Keep 100% of the capital gains when you sell

- Homeowners only, no rentals

- Pets welcome

You may be eligible to receive Federal Government Rent Assistance if you are on a pension. For more information on the Pension and Rent assistance call 13 23 00 or visit www.servicesaustralia.com.au.

All viewings are by appointment only. Please contact the GemLife Resales team to book an inspection.

DISCLAIMER: We have in preparing this advertisement used our best endeavours to ensure the information contained is true and accurate but accept no responsibility and disclaim all liability in respect to any errors, omissions, inaccuracies, or misstatements contained. Prospective purchasers should make their own enquiries to verify the information contained in this advertisement.

Enquire Now

  • Under Contract

  • 3
  • 2
  • 2
Under Offer

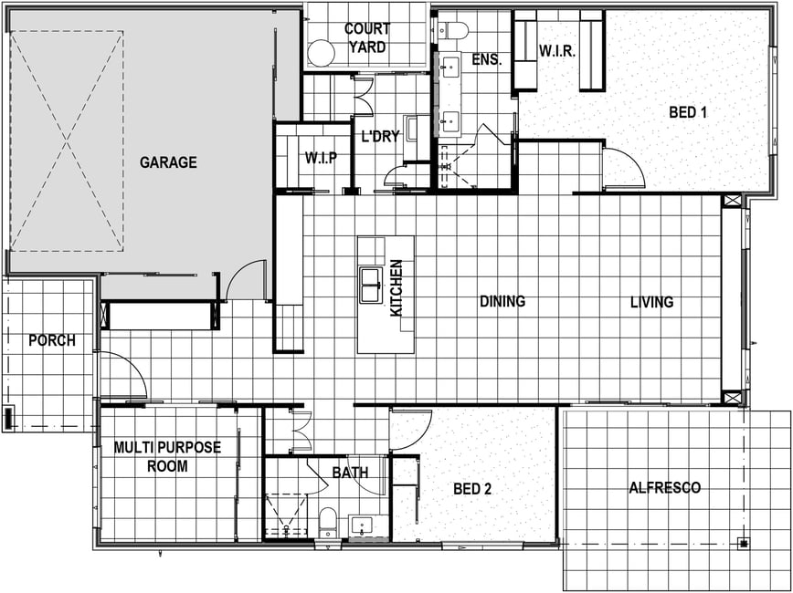
Resale Villa 202 - GemLife Pacific Paradise Luxury Over 50s Lifestyle Resort

Experience luxury living in this beautifully designed home positioned on a corner block at the end of a quiet cul-de-sac, offering privacy with only two neighbours and green space on the north side.

Enjoy tranquil views of the dog park and lush greenery right in front of the property. This spacious home boasts a 222.13m² floor area, featuring 2 bedrooms plus a multipurpose room/3rd bedroom, a separate study with built-in desk and cabinetry, and 2 modern bathrooms.

The extra-large master suite provides a private retreat, while the gourmet kitchen impresses with Smeg appliances, a 1000 x 3000mm benchtop, walk-in pantry, and feature shelving with LED lighting.

Additional highlights include extra-high ceilings for added space and light, fully ducted air conditioning, alfresco entertaining area with electric roller shutters, and short stroll to shopping village, cafes, restaurants, and public transport.

This rare opportunity combines style, comfort, and convenience in a sought-after location.

- Total floor area of 222.13m²

- Kensington design

- 2 Bedrooms Plus MPR/3rd bedroom

- Separate study, study desk & cabinetry

- 2 Bathrooms

- Extra-large master bedroom

- Walk in pantry

- Only two neighbours

- Corner block at end of a cul-de-sac

- Green space on north side of property

- Dog park and green space in front of property

- Extra high ceilings

- Smeg appliances

- 1250 x 2700 kitchen benchtop

- Feature shelving with LED lighting

- Fully ducted air conditioning

- Alfresco with electric roller shutters

- Short stroll to shopping village, cafes, restaurant and public transport.

GemLife resorts charge a weekly site fee to cover the cost of operating and maintaining the community. We ensure your investment is safe and maintained to the highest standard.

- No entry or exit fees

- No stamp duty on purchase

- Keep 100% of the capital gains when you sell

- Homeowners only, no rentals

- Pets welcome.

You may be eligible to receive Federal Government Rent Assistance if you are on a pension. For more information on the Pension and Rent assistance call 13 23 00 or visit www.servicesaustralia.com.au. All viewings are by appointment only.

Please contact the GemLife Resales team to book an inspection.

DISCLAIMER: We have in preparing this advertisement used our best endeavours to ensure the information contained is true and accurate but accept no responsibility and disclaim all liability in respect to any errors, omissions, inaccuracies, or misstatements contained. Prospective purchasers should make their own enquiries to verify the information contained in this advertisement.

Enquire Now

  • Under Contract

  • 3
  • 2
  • 2
Under Offer

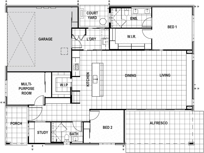
Resale Villa 196 - GemLife Pacific Paradise Luxury Over 50s Lifestyle Resort

Showcasing extra-high ceilings and hybrid flooring throughout, this beautifully appointed, north/south-facing home combines timeless elegance with modern comfort.

The gourmet kitchen features Smeg appliances, a raised dishwasher, shaker-style cabinetry, feature shelving with LED lighting, a generous 1200mm-wide benchtop, and a walk-in pantry with translucent sliding doors.

Step outside to the expansive alfresco area complete with external blinds, ideal for entertaining year-round. Enjoy the added touches like plantation shutters throughout, a stylish entertainment unit, fully ducted air conditioning, and thoughtfully designed garden walkway.

With its premium finishes and unbeatable lifestyle offering, this home is ready for its new owner—all you need to do is move in and enjoy.

Features:

- Total floor area of 202m2

- Carlisle design

- 2 bedrooms plus multi-purpose room with wardrobe/3rd bedroom.

- Extra high ceilings

- Smeg cooking appliances

- Raised Bosch dishwasher

- Shaker style cabinetry

- 1200mm wide kitchen benchtop

- Feature shelving with LED lighting

- Spacious alfresco

- Walk in pantry

- Plantation shutters throughout

- Entertainment unit

- Hybrid flooring throughout

- Fully ducted air conditioning

- Translucent sliding doors in pantry and laundry

- External blinds to alfresco and kitchen window

- Garden walkway

GemLife resorts charge a weekly site fee to cover the cost of operating and maintaining the community. We ensure your investment is safe and maintained to the highest standard.

- No entry or exit fees

- No stamp duty on purchase

- Keep 100% of the capital gains when you sell

- Homeowners only, no rentals

- Pets welcome.

You may be eligible to receive Federal Government Rent Assistance if you are on a pension. For more information on the Pension and Rent assistance call 13 23 00 or visit www.servicesaustralia.com.au. All viewings are by appointment only. Please contact the GemLife Resales team to book an inspection.

DISCLAIMER: We have in preparing this advertisement used our best endeavours to ensure the information contained is true and accurate but accept no responsibility and disclaim all liability in respect to any errors, omissions, inaccuracies, or misstatements contained. Prospective purchasers should make their own enquiries to verify the information contained in this advertisement.

Enquire Now

  • $1,325,000

  • 2
  • 2
  • 2

Resale Villa 55 - GemLife Pacific Paradise Luxury Over 50s Lifestyle Resort

Discover relaxed coastal living in this beautifully presented two-bedroom Fairview home with multipurpose room (MPR), perfectly positioned within the sought-after GemLife Pacific Paradise resort.

Spanning a generous 193.34m², this thoughtfully designed residence offers modern comfort, effortless flow, and stylish low-maintenance living.

The light-filled open-plan layout connects seamlessly to the private alfresco area, while the contemporary kitchen – complete with a walk-in pantry – makes entertaining easy.

With quality finishes throughout, generous storage, and versatile spaces, this home perfectly balances practicality and elegance for today’s active over-50s lifestyle.

  • Total floor area of 193.34m²

  • Fairview Design

  • 2 Bedrooms + multipurpose room

  • Double garage

GemLife resorts charge a weekly site fee to cover the cost of operating and maintaining the community. We ensure your investment is safe and maintained to the highest standard.

- No entry or exit fees

- No stamp duty on purchase

- Keep 100% of the capital gains when you sell

- Homeowners only, no rentals

- Pets welcome

You may be eligible to receive Federal Government Rent Assistance if you are on a pension. For more information on the Pension and Rent assistance call 13 23 00 or visit www.servicesaustralia.com.au.

All viewings are by appointment only. Please contact the GemLife Resales team to book an inspection.

DISCLAIMER: We have in preparing this advertisement used our best endeavours to ensure the information contained is true and accurate but accept no responsibility and disclaim all liability in respect to any errors, omissions, inaccuracies, or misstatements contained. Prospective purchasers should make their own enquiries to verify the information contained in this advertisement

Enquire Now

  • $1,350,000

  • 3
  • 2
  • 2

Resale Villa 92 - GemLife Pacific Paradise Luxury Over 50s Lifestyle Resort

This beautifully maintained north facing home at GemLife Pacific Paradise offers a generous floor plan and a host of thoughtful upgrades designed for comfort, convenience and effortless living.

Featuring two spacious bedrooms plus a versatile multi-purpose room (MPR) or 3rd bedroom, the home provides flexibility for guests, hobbies or a dedicated third bedroom. The MPR has been enhanced with new matching flooring, a TV outlet, and a wall bracket, ensuring it’s ready for immediate use.

Both the main and second bedrooms also feature new flooring that seamlessly ties into the home’s modern aesthetic. Storage has been maximised with additional shelving and hanging rods in the walk in robe, along with extra power points installed throughout the home for everyday practicality.

Natural light is a standout feature, with solar lights added to the garage and hallway, and a large solar light with remote controlled dimmer illuminating the kitchen. The garage also benefits from insulation on the door for improved temperature control.

Outdoors, the private courtyard includes a remote controlled wireless metal roller shutter, a lattice fence extension, and a convenient water tap. The alfresco area is fitted with six Slimline Matrix décor screens, creating a stylish and sheltered space for year round enjoyment.

Immaculately presented and thoughtfully upgraded, this home offers relaxed, low maintenance living within the vibrant GemLife Pacific Paradise community.

- Maddison design

- Total floor area of 210.12m²

- 2 Bedroom plus MPR/3rd bedroom

- Insulation on garage door and solar light in garage

- MPR/3rd bedroom, new floor to match rest of the villa, TV outlet and bracket added

- Solar light in hallway

- Main bedroom & 2nd bedroom new flooring to match the rest of the villa

- Courtyard, remote controlled wireless metal roller shutter, lattice fence extension and water tap

- Walk-in robe additional shelving and hanging rods

- Extra electric sockets throughout the house

- Kitchen, large solar light with remote controlled dimmer

- Alfresco with 6 Slimline Matrix décor screens.

GemLife resorts charge a weekly site fee to cover the cost of operating and maintaining the community. We ensure your investment is safe and maintained to the highest standard.

- No entry or exit fees

- No Stamp Duty on purchase

- Keep 100% of the capital gains when you sell

- Homeowners only, no rentals

- Pets welcome

You may be eligible to receive Federal Government Rent Assistance if you are on a pension. For more information on the Pension and Rent assistance call 13 23 00 or visit www.servicesaustralia.com.au.

All viewings are by appointment only. Please contact the GemLife Resales team to book an inspection.

DISCLAIMER: We have in preparing this advertisement used our best endeavours to ensure the information contained is true and accurate but accept no responsibility and disclaim all liability in respect to any errors, omissions, inaccuracies, or misstatements contained. Prospective purchasers should make their own enquiries to verify the information contained in this advertisement.

Enquire Now

  • $1,495,000

  • 3
  • 2
  • 2

Resale Villa 132 - GemLife Pacific Paradise Luxury Over 50s Lifestyle Resort

Discover the perfect blend of space, style, and convenience in this stunning corner block home with a serene bush outlook. Set on a generous block with a 214.54m² floor area, this property offers exceptional comfort and functionality.

Featuring 3 bedrooms, including an extra-large master suite, and 2 modern bathrooms, this home is designed for relaxed living. Enjoy the versatility of a separate study and craft room, complete with built-in desk and cabinetry. The gourmet kitchen boasts premium Smeg appliances, a walk-in pantry, and flows seamlessly into the open plan living and dining areas.

Additional highlights include: A walk-in linen and storage closet, fully ducted air conditioning, alfresco entertaining area with electric roller blinds, plus it is a short stroll to shopping village, cafes, restaurants, and public transport, and the beach is just 2km away.

- Total floor area of 214.54m²

- Maddison design

- Corner block

- Bush outlook

- Separate Study, craft room, with built-in desk and cabinetry

- 3 Bedrooms

- 2 Bathrooms

- Extra-large master bedroom

- Smeg appliances

- Walk in pantry

- Walk in linen & storage closet

- Fully ducted air conditioning

- Alfresco with electric roller blinds

- Short stroll to shopping village, cafes, restaurant and public transport

- Beach 2km away.

GemLife resorts charge a weekly site fee to cover the cost of operating and maintaining the community. We ensure your investment is safe and maintained to the highest standard.

- No entry or exit fees

- No stamp duty on purchase

- Keep 100% of the capital gains when you sell

- Homeowners only, no rentals

- Pets welcome.

You may be eligible to receive Federal Government Rent Assistance if you are on a pension. For more information on the Pension and Rent assistance call 13 23 00 or visit www.servicesaustralia.com.au. All viewings are by appointment only.

Please contact the GemLife Resales team to book an inspection.

DISCLAIMER: We have in preparing this advertisement used our best endeavours to ensure the information contained is true and accurate but accept no responsibility and disclaim all liability in respect to any errors, omissions, inaccuracies, or misstatements contained. Prospective purchasers should make their own enquiries to verify the information contained in this advertisement.

Enquire Now

  • Under Contract

  • 2
  • 2
  • 2
Under Offer

Resale Villa 174 - GemLife Pacific Paradise Luxury Over 50s Lifestyle Resort

Discover the perfect blend of luxury and functionality in this architecturally designed home. Offering 202.61m² of thoughtfully designed living space, this stunning residence is ideal for those who love seamless indoor-outdoor living.

At the heart of the home is a spacious designer kitchen, complete with premium Smeg appliances, a 1200mm-wide island benchtop, a walk-in pantry, and feature shelving with LED lighting. The open-plan dining and living areas flow effortlessly onto the alfresco and courtyard, enhanced by Plantation bi-fold doors, creating an inviting space for entertaining or relaxation.

The private master retreat, set away from the main living areas, features a walk-in robe and a stylish ensuite, while two additional bedrooms, one easily convertible into a media room, offer flexibility for guests or hobbies. A central bathroom services the secondary bedrooms for added convenience.

With extra-high ceilings, plantation shutters throughout, hybrid plank flooring, and a custom entertainment unit, this home exudes sophistication. Thoughtful inclusions such as extra power points, fully ducted air conditioning, and a two-car garage ensure modern comfort.

This is a rare opportunity to enjoy resort-style living in a beautiful designer home.

- Penrose design

- Total floor area of 202.61m2

- 2 Bedrooms plus multi-purpose room

- Extra high ceilings

- Smeg appliances

- 1200 wide kitchen benchtop

- Feature shelving with LED lighting

- Spacious alfresco

- Plantation bi fold doors on patio

- Extra power points throughout

- Walk in pantry

- Plantation shutters throughout

- Entertainment unit

- Hybrid floor plank to main floors

- Ducted air conditioning

GemLife resorts charge a weekly site fee to cover the cost of operating and maintaining the community. We ensure your investment is safe and maintained to the highest standard.

- No entry or exit fees

- No stamp duty on purchase

- Keep 100% of the capital gains when you sell

- Homeowners only, no rentals

- Pets welcome.

You may be eligible to receive Federal Government Rent Assistance if you are on a pension. For more information on the Pension and Rent assistance call 13 23 00 or visit www.servicesaustralia.com.au. All viewings are by appointment only. Please contact the GemLife Resales team to book an inspection.

DISCLAIMER: We have in preparing this advertisement used our best endeavours to ensure the information contained is true and accurate but accept no responsibility and disclaim all liability in respect to any errors, omissions, inaccuracies, or misstatements contained. Prospective purchasers should make their own enquiries to verify the information contained in this advertisement.

Enquire Now

Property Overview

Snapshot

Number of Dwellings 211
Year Established 2020

Location

Property Features

Recreational Facilities

  • Commercial kitchen
  • Golf club nearby
  • Cinema
  • Outdoor pool
  • Community centre
  • Gymnasium
  • Art studio
  • BBQ area/s
  • Library
  • Workshop
  • Indoor heated pool
  • Residents lounge
  • Indoor bowls area
  • Meeting Room
  • Billiards room
  • Tennis Court
  • Craft studio

Amenities

  • Bar (licensed)

Pet Policy

  • Pets Allowed

Garages / Carports

  • 2 Car Garage

Independence

  • Direct Garage Access
  • Secure Estate

Management

  • Residents committee

Accommodation Type

  • Over 55s Development
  • Manufactured Community Park

Contractual Arrangements

  • Buy
  • Buy off the plan
  • Land Lease

About this Property

GemLife Pacific Paradise

The Community

GemLife Pacific Paradise is a vibrant lifestyle resort for over 50s located in the heart of the Sunshine Coast, Queensland. The resort offers modern homes with spacious living areas and top-quality finishes, along with a range of resort-style amenities like a country club, heated indoor pool, outdoor amphitheatre, and more. With easy access to the beach, local shops, and restaurants, residents can enjoy a relaxed and active lifestyle in a beautiful coastal location.

Enquire Now

GemLife

The Operator

GemLife over-50s lifestyle resorts are located in premium locations across Australia. From coastal resorts on Queensland’s sub-tropical Sunshine Coast and the stunning Mid North Coast of New South Wales to idyllic rural resorts in Victoria’s Macedon Ranges and Highfields in country Toowoomba, GemLife has something for everyone.

View all villages and aged care facilities of GemLife

Make an Enquiry

Don't miss out!

Contact the operator of GemLife Pacific Paradise

  • Please do not send job applications on this form. Looking for work? Submit here.

This site is protected by reCAPTCHA and the Google Privacy Policy and Terms of Service apply.

More properties from GemLife

GemLife Bribie Island, Bongaree

Land Lease Community

Dwellings

Over 55s Development, Manufactured Community Park, On-site manager, Residents committee, Hairdresser, Beauty Salon, Bar (licensed)

GemLife Gold Coast, Pimpama

Land Lease Community

Dwellings

Over 55s Development, Manufactured Community Park, Residents committee, Cafe on-site, Village bus, Bar (licensed)

Gemlife Highfields, Highfields

Land Lease Community

316 Dwellings

Over 55s Development, Manufactured Community Park, Residents committee, Bar (licensed)

Subscribe to our fortnightly newsletter

Our fortnightly newsletter brings you all the tips and tricks you need for a successful retirement, covering everything from finances and property, to health and happiness. Get prepared and sign up here.