1. Home
  2. Retirement Villages
  3. VIC
  4. Murray
  5. Baranduda

Lincoln Lifestyle Baranduda, Land Lease Community, Baranduda

34 Ellen McDonald Road, Baranduda, VIC, 3691

6

Available

House

34 Ellen McDonald Drive, Baranduda

  • From $530,000

  • 3
  • 2
  • 2

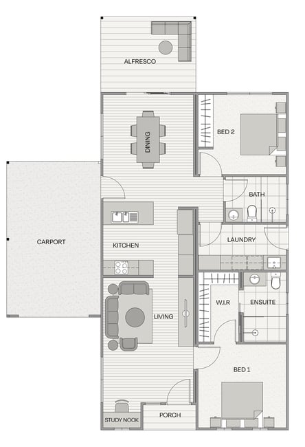
Discover the perfect combination of style and function in the Chandler - Lot 52.

The Chandler is a stunning three-bedroom home. The open-plan living, dining, and kitchen area seamlessly blend, offering the perfect space for entertaining and everyday living. The stylish kitchen boasts chic finishes and an island bench, while the outdoor entertaining deck provides an inviting gathering spot. The main bedroom features an ensuite and a walk-in robe. Two more bedrooms with build-in robes, a family bathroom, a laundry, ample storage, and a secure double carport complete this home.

Don't miss out on one of our most sought after lots in a premium position next to a walkway reserve and in close proximity to the Clubhouse precinct.

Enquire Now

House

34 Ellen McDonald Drive, Baranduda

  • $POA

  • 2
  • 1
  • 2
Under Offer

Make the most of a modern and spacious open-plan design in the Camden.

The Camden is sold out in the current release, please enquire for future availability.

The Camden is a thoughtfully designed home featuring two bedrooms, the main with a walk-in wardrobe and ensuite. The open plan layout encompasses a modern kitchen with a breakfast bar, a bright, airy dining space, and an oversized living room with study nook. A one-car carport provides secure parking, and the outdoor deck is the ideal place to unwind. Complete with a welcoming front porch, family bathroom, and large laundry, the Camden is the perfect home.

 

Enquire Now

House

34 Ellen McDonald Drive, Baranduda

  • From $498,000

  • 2
  • 2
  • 2

Discover an entertainer’s delight with The Emerson - Lot 41.

The Emerson combines a generous lounge area, a modern kitchen, and a light-filled dining area leading to an inviting outdoor entertaining deck. The two bedrooms feature walk-in wardrobes and the main bedroom also has an ensuite. The Emerson also features a family bathroom, a dedicated study nook, a well-equipped laundry, clever storage solutions, and a carport accommodating two vehicles. Embrace a new level of low-maintenance living with The Emerson.

Enquire Now

House

34 Ellen McDonald Drive, Baranduda

  • From $440,000

  • 2
  • 1
  • 1.5

The Belmont is the perfect space for everyday living and entertainment - Lot 47.

The Belmont is the perfect space for everyday living and entertainment. The contemporary kitchen merges with the combined dining and living area. The home features two bedrooms, both with built-in wardrobes, a sizeable family bathroom, and a laundry with WC. The lounge area extends to an outdoor deck, providing additional space for entertaining and a single carport completes the home. Discover the perfect combination of style and function with the Belmont.

Enquire Now

House

34 Ellen McDonald Drive, Baranduda

  • From $420,000

  • 2
  • 1
  • 1.5

Welcome to the Arlington, the perfect space for relaxed living - Lot 27.

The Arlington’s spacious kitchen, with island bench, opens up to the dining room and comfortable lounge area, providing the perfect space for both entertaining and relaxation. This home includes two bedrooms, each complete with built-in wardrobes, a family bathroom and a separate WC and laundry offering ample storage. A verandah offers a private outdoor entertaining area, and a single carport equipped with a motor lift door provides additional ease when coming and going from the property.

Enquire Now

House

34 Ellen McDonald Drive, Baranduda

  • $POA

  • 2
  • 1
  • 2
Under Offer

Embrace low maintenance living with the Redwood.

The Redwood is sold out in the current release, please enquire for future availability.

The Redwood offers a modern and spacious open plan living design seamlessly connecting the contemporary kitchen featuring an entertainer's island bench, to the generous dining area, family lounge room, and study nook. The main bedroom features a walk-in wardrobe and ensuite. A second bedroom, stylish bathroom, laundry and large carport add to the convenience of this well-designed home. Embrace all the comforts of modern living with The Redwood.

Enquire Now

Property Overview

Snapshot

Number of Dwellings 96
Type of Dwellings Low-Rise Development
Minimum Dwelling Price $430,000.00
Maximum Dwelling Price $515,000.00

Location

Property Features

Recreational Facilities

  • Golf club nearby
  • Cinema
  • Outdoor bowling green
  • Community centre
  • Gymnasium
  • BBQ area/s
  • Library
  • Workshop
  • Indoor heated pool
  • Residents lounge
  • Meeting Room
  • Community kitchen
  • Billiards room
  • Craft studio

Amenities

  • Bar (unlicensed)
  • Vegetable gardens
  • Community TV
  • Storage for boat / caravans
  • High-speed broadband

Pet Policy

  • Pets Allowed

Garages / Carports

  • 1 Car Garage
  • 2 Car Garage
  • Carport

Independence

  • Direct Garage Access
  • Secure Estate
  • Level access

Management

  • On-site manager
  • Resident front gate / lobby monitor
  • CCTV security

Accommodation Type

  • Over 55s Development

Contractual Arrangements

  • Land Lease

About this Property

Lincoln Lifestyle Baranduda

The Community

Live life well at Lincoln Lifestyle Baranduda | Stage 2 now selling

Welcome to Lincoln Lifestyle Baranduda, a blossoming over 50s community located just 15 minutes from Wodonga. With no entry fees, exit fees or deferred management fees, this is the carefree lifestyle you’ve been looking for.

Life just got even better at Baranduda with the launch of our brand-new Clubhouse – the community’s wellness haven, social hotspot and quiet retreat, all in one. Whether it’s morning coffee with neighbours, a friendly game of bowls, or a group fitness class in the gym, the Clubhouse brings residents together for good times and great memories.

Come and find your happy place in one of our brand-new low-maintenance homes, where every detail has been considered. All you need to do is move in and start living your best life.

This year, we’re excited to welcome new residents and showcase our latest collection of stylish, thoughtfully designed homes.

Stage 2 is selling fast, so don’t miss your chance to join our beautiful community.

Enquire Now

Lincoln Place

The Operator

Downsize your home, upgrade your lifestyle!

Lincoln Place Lifestyle Estates offers safe and secure independent living, located close by to public transport and amenities.

Enjoy onsite resort-style amenities and low-maintenance living at one of our vibrant, friendly communities. Choose from a range of architecturally and thoughtfully designed homes, where every detail has been carefully considered to ensure a relaxed and comfortable lifestyle.

Our affordable land lease model offers a smarter downsizing solution, providing homeowners with security, community connection and financial freedom.

View all villages and aged care facilities of Lincoln Place

Make an Enquiry

Don't miss out!

Contact the operator of Lincoln Lifestyle Baranduda

  • Please do not send job applications on this form. Looking for work? Submit here.

This site is protected by reCAPTCHA and the Google Privacy Policy and Terms of Service apply.

More properties from Lincoln Place

Lincoln Lifestyle Kangaroo Flat, Kangaroo Flat

Land Lease Community

345 Dwellings

Over 55s Development, On-site manager, Residents committee, Resident front gate / lobby monitor, CCTV security, Bar (unlicensed), Walk to shops, Vegetable gardens, Community TV, Storage for boat / caravans, High-speed broadband, Walk to transport

Brookhaven Lifestyle Estate, Bonville

Land Lease Community

Dwellings

Over 55s Development, Residents committee, Resident front gate / lobby monitor, CCTV security, Walk to shops, Vegetable gardens, Storage for boat / caravans, High-speed broadband, Walk to transport

Welcome to Lincoln Lifestyle Griffith Hill - Stage 1 sold out!, Griffith

Land Lease Community

128 Dwellings

Over 55s Development, On-site manager, Residents committee, Resident front gate / lobby monitor, CCTV security, Bar (unlicensed), Vegetable gardens, Community TV, High-speed broadband

Subscribe to our fortnightly newsletter

Our fortnightly newsletter brings you all the tips and tricks you need for a successful retirement, covering everything from finances and property, to health and happiness. Get prepared and sign up here.