1. Home
  2. Retirement Villages
  3. VIC
  4. South East Melbourne
  5. Brighton East

Classic Residences, Retirement Village, Brighton East

3 Brewer Road Brighton East, VIC, 3187

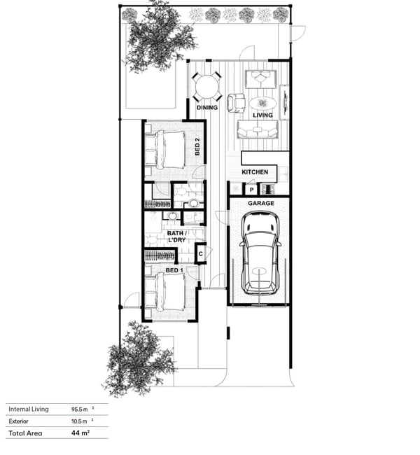
40

Available

  • $460,000

  • 1
  • 0
  • 1

Refurbished Apartment with Leafy Balcony Retreat

This Home Comes with a Ready To Move Gift. Enjoy your first 12 months with no village service fees. Reserve on or before 31 March 2026 and settle by 30 June to be eligible. Limited Offer. *Terms and conditions apply. For full terms and conditions and to find out more call 1800 550 550 or enquire today. Tucked into a quiet corner of Classic Residences Brighton, this light-filled apartment pairs fresh modern finishes with a calming green outlook—ideal for both relaxed mornings and evenings with family and friends. • Fully refurbished throughout with modern neutral tones • Light-filled living area opening to private leafy balcony • Brand new kitchenette with stone benchtops and quality appliances • Spacious bedroom with built-in storage • Separate study, perfect for hobbies or a home office • Contemporary bathroom with walk-in shower and generous storage • Corner position offering privacy and natural light • Easy access to lift for everyday convenience About Classic Residences by Keyton Classic Residences Brighton offers an elegant lifestyle crafted to ensure every detail caters to your comfort and enjoyment. Located just 15km southeast of Melbourne’s CBD, the retirement community is situated within easy access to public transport, shopping centres, medical services, and nearby parkland. Winner of the 2021 Blueforce Awards for Best Refurbishment, this contemporary retirement village is nestled amid manicured gardens, offering light-filled community spaces, exceptional amenities and an array of community activities and premium services. Classic Residences Retirement village highlights: • On-site café and restaurant • Fully equipped gym • Indoor heated pool and spa • Cinema • Convenience store • Craft and hobby facilities • Village bus for shopping and outings • 24-hour emergency call system You must be over 55 years of age to purchase a property at this retirement village. Don’t miss this opportunity to make this home your own. Enquire today and book a tour. Pricing, availability of services and facilities provided in the village advertised are correct at the time of listing, but subject to change without notice. Photographs are used for illustrative purposes. Some images depict items not provided by Keyton within the units such as furniture and other decorative items. Keyton Realty (VIC) Pty Ltd ABN 55 124 646 484 of Level 45, Bourke Place, 600 Bourke Street, Melbourne VIC 3000.

Enquire Now

  • $870,000

  • 2
  • 0
  • 2

Garden Views and Open Living

This Home Comes with a Ready To Move Gift. Enjoy your first 12 months with no village service fees. Reserve on or before 31 March 2026 and settle by 30 June to be eligible. Limited Offer. *Terms and conditions apply. For full terms and conditions and to find out more call 1800 550 550 or enquire today. Set above the gardens at Classic Residences Brighton, this beautifully refreshed apartment enjoys open plan living framed by leafy north-facing treetop views. New paint and carpet give the interiors a clean, contemporary feel, while the private balcony extends the living space outdoors. With generous proportions and a dedicated study, the apartment offers comfort, flexibility and a calm outlook in one of Brighton’s most sought-after communities. Key highlights of this home include: • Open plan living and dining filled with natural light • North-facing aspect with elevated garden and treetop views • Spacious private balcony capturing the morning sun • Two well-proportioned bedrooms • Two modern bathrooms for added comfort • Separate study ideal for reading or hobbies • Ducted heating and cooling throughout • Undercover car space for convenience and security About Classic Residences by Keyton Classic Residences Brighton offers an elegant lifestyle crafted to ensure every detail caters to your comfort and enjoyment. Located just 15km southeast of Melbourne’s CBD, the retirement community is situated within easy access to public transport, shopping centres, medical services, and nearby parkland. Winner of the 2021 Blueforce Awards for Best Refurbishment, this contemporary retirement village is nestled amid manicured gardens, offering light-filled community spaces, exceptional amenities and an array of community activities and premium services. Classic Residences Retirement village highlights: • On-site café and restaurant • Fully equipped gym • Indoor heated pool and spa • Cinema • Convenience store • Craft and hobby facilities • Village bus for shopping and outings • 24-hour emergency call system You must be over 55 years of age to purchase a property at this retirement village. Don’t miss this opportunity to make this home your own. Enquire today and book a tour. Pricing, availability of services and facilities provided in the village advertised are correct at the time of listing, but subject to change without notice. Photographs are used for illustrative purposes. Some images depict items not provided by Keyton within the units such as furniture and other decorative items. Keyton Realty (VIC) Pty Ltd ABN 55 124 646 484 of Level 45, Bourke Place, 600 Bourke Street, Melbourne VIC 3000.

Enquire Now

  • $685,000

  • 2
  • 0
  • 1

Bright, Stylish and Garden Views

This Home Comes with a Ready To Move Gift. Enjoy your first 12 months with no village service fees. Reserve on or before 31 March 2026 and settle by 30 June to be eligible. Limited Offer. *Terms and conditions apply. For full terms and conditions and to find out more call 1800 550 550 or enquire today. Bathed in afternoon light and framed by a tranquil north-facing garden outlook, this beautifully refreshed home at Classic Residences Brighton offers relaxed, low-maintenance living with a seamless indoor flow. Fresh updates throughout create a move-in-ready haven just moments from everything you need. Key highlights of this home include: • Open plan layout connects kitchen, dining and living seamlessly • Lush garden views from north-facing living area and main bedroom • Two generous bedrooms with built-in storage and soft new carpet • Stylishly updated with fresh paint, new cooktop and rangehood • Spacious central bathroom plus separate powder room for guests • Ducted heating and cooling for year-round climate control • Modern kitchen with dishwasher and ample bench space • West-facing aspect welcomes golden afternoon light About Classic Residences by Keyton Classic Residences Brighton offers an elegant lifestyle crafted to ensure every detail caters to your comfort and enjoyment. Located just 15km southeast of Melbourne’s CBD, the retirement community is situated within easy access to public transport, shopping centres, medical services, and nearby parkland. Winner of the 2021 Blueforce Awards for Best Refurbishment, this contemporary retirement village is nestled amid manicured gardens, offering light-filled community spaces, exceptional amenities and an array of community activities and premium services. Classic Residences Retirement village highlights: • On-site café and restaurant • Fully equipped gym • Indoor heated pool and spa • Cinema • Convenience store • Craft and hobby facilities • Village bus for shopping and outings • 24-hour emergency call system You must be over 55 years of age to purchase a property at this retirement village. Don’t miss this opportunity to make this home your own. Enquire today and book a tour. Pricing, availability of services and facilities provided in the village advertised are correct at the time of listing, but subject to change without notice. Photographs are used for illustrative purposes. Some images depict items not provided by Keyton within the units such as furniture and other decorative items. Keyton Realty (VIC) Pty Ltd ABN 55 124 646 484 of Level 45, Bourke Place, 600 Bourke Street, Melbourne VIC 3000.

Enquire Now

  • $540,000

  • 1
  • 0
  • 1
Under Offer

Terrace Home with Study in a Peaceful Garden Setting

This Home Comes with a Ready To Move Gift. Enjoy your first 12 months with no village service fees. Reserve on or before 31 March 2026 and settle by 30 June to be eligible. Limited Offer. *Terms and conditions apply. For full terms and conditions and to find out more call 1800 550 550 or enquire today. Step into a beautifully refreshed ground-floor retreat where natural light floods open-plan interiors —perfect for morning coffee or quiet afternoons with a book. Key highlights of this home include: • Fully refurbished with modern finishes throughout • Stone kitchen benchtops and stainless steel appliances • Light-filled living and dining with seamless flow • Spacious bedroom with built-in robe and garden outlook • Generous study with excellent storage • Sleek bathroom with integrated internal laundry • Direct access to tranquil shared terrace space • Located in the heart of Classic Residences community About Classic Residences by Keyton Classic Residences Brighton offers an elegant lifestyle crafted to ensure every detail caters to your comfort and enjoyment. Located just 15km southeast of Melbourne’s CBD, the retirement community is situated within easy access to public transport, shopping centres, medical services, and nearby parkland. Classic Residences Retirement village highlights: • On-site café and restaurant • Fully equipped gym • Indoor heated pool and spa • Cinema • Convenience store • Craft and hobby facilities • Village bus for shopping and outings • 24-hour emergency call system You must be over 55 years of age to purchase a property at this retirement village. Don’t miss this opportunity to make this home your own. Enquire today and book a tour. Pricing, availability of services and facilities provided in the village advertised are correct at the time of listing, but subject to change without notice. Photographs are used for illustrative purposes. Some images depict items not provided by Keyton within the units such as furniture and other decorative items. Keyton Realty (VIC) Pty Ltd ABN 55 124 646 484 of Level 45, Bourke Place, 600 Bourke Street, Melbourne VIC 3000.

Enquire Now

  • $895,000

  • 2
  • 1
  • 1
Under Offer

Refreshed Villa, Private garden and Open-plan Living

This Home Comes with a Ready To Move Gift. Enjoy your first 12 months with no village service fees. Reserve on or before 31 March 2026 and settle by 30 June to be eligible. Limited Offer. *Terms and conditions apply. For full terms and conditions and to find out more call 1800 550 550 or enquire today. Tucked in a quiet pocket of Classic Residences, this beautifully refreshed villa combines convenience with leafy outdoor space — a low-maintenance retreat made for relaxed mornings, entertaining friends, and easy everyday living. Key highlights of this villa include: • Fully reinstated with fresh paint, soft new carpet, and neutral tones • Light-filled open-plan living and dining opening to the garden • Spacious kitchen with modern appliances, including brand-new oven • Two generous bedrooms with built-in storage and garden views • Large main bathroom with integrated European-style laundry • Handy guest powder room • Private rear garden with room to potter, relax, or entertain • Single garage with secure internal access to the home About Classic Residences by Keyton Classic Residences Brighton offers an elegant lifestyle crafted to ensure every detail caters to your comfort and enjoyment. Located just 15km southeast of Melbourne’s CBD, the retirement community is situated within easy access to public transport, shopping centres, medical services, and nearby parkland. Classic Residences Retirement village highlights: • On-site café and restaurant • Fully equipped gym • Indoor heated pool and spa • Cinema • Convenience store • Craft and hobby facilities • Village bus for shopping and outings • 24-hour emergency call system You must be over 55 years of age to purchase a property at this retirement village. Don’t miss this opportunity to make this home your own. Enquire today and book a tour. Pricing, availability of services and facilities provided in the village advertised are correct at the time of listing, but subject to change without notice. Photographs are used for illustrative purposes. Some images depict items not provided by Keyton within the units such as furniture and other decorative items. Keyton Realty (VIC) Pty Ltd ABN 55 124 646 484 of Level 45, Bourke Place, 600 Bourke Street, Melbourne VIC 3000.

Enquire Now

  • $518,000

  • 1
  • 0
  • 1

Stylish Home with Garden Terrace Access

This Home Comes with a Ready To Move Gift. Enjoy your first 12 months with no village service fees. Reserve on or before 31 March 2026 and settle by 30 June to be eligible. Limited Offer. *Terms and conditions apply. For full terms and conditions and to find out more call 1800 550 550 or enquire today. Enjoy low-maintenance retirement living in this beautifully updated one-bedroom, one-bathroom home at Classic Residences Brighton. With stylish finishes, modern conveniences, and access to a lovely, shared terrace, this home is perfect for relaxed, easy living. Key features of this apartment include: • Light-filled open plan living and dining area • Partially refurbished with modern updates • Contemporary kitchen with stone benchtops • Stainless steel appliances, including dishwasher • Spacious bathroom with fresh tiling and laundry • Generous in-home storage throughout • Direct access to shared terrace and gardens • Located within a vibrant, well-maintained community About Classic Residences by Keyton Classic Residences Brighton offers an elegant lifestyle crafted to ensure every detail caters to your comfort and enjoyment. Located just 15km southeast of Melbourne’s CBD, the retirement community is situated within easy access to public transport, shopping centres, medical services, and nearby parkland. Winner of the 2021 Blueforce Awards for Best Refurbishment, this contemporary retirement village is nestled amid manicured gardens, offering light-filled community spaces, exceptional amenities and an array of community activities and premium services. Classic Residences Retirement village highlights: • On-site café and restaurant • Fully equipped gym • Indoor heated pool and spa • Cinema • Convenience store • Craft and hobby facilities • Village bus for shopping and outings • 24-hour emergency call system You must be over 55 years of age to purchase a property at this retirement village. Don’t miss this opportunity to make this home your own. Enquire today and book a tour. Pricing, availability of services and facilities provided in the village advertised are correct at the time of listing, but subject to change without notice. Photographs are used for illustrative purposes. Some images depict items not provided by Keyton within the units such as furniture and other decorative items. Keyton Realty (VIC) Pty Ltd ABN 55 124 646 484 of Level 45, Bourke Place, 600 Bourke Street, Melbourne VIC 3000.

Enquire Now

  • $695,000

  • 2
  • 0
  • 1
Under Offer

Light & Bright Apartment with Delightful Garden Outlook – Enquire Today!

This Home Comes with a Ready To Move Gift. Enjoy your first 12 months with no village service fees. Reserve on or before 31 March 2026 and settle by 30 June to be eligible. Limited Offer. *Terms and conditions apply. For full terms and conditions and to find out more call 1800 550 550 or enquire today. Discover this charming two-bedroom apartment at Classic Residences Brighton that offers a perfect blend of modern updates and lovely garden views from the private balcony. This home is perfect for those seeking a stylish and modern living space in a prime Brighton location. Key highlights of this apartment include: • Upgraded kitchen featuring quality appliances and stone benchtop, • Renovated bathroom providing a fresh and contemporary feel. • Built-In robes to both bedrooms • Ducted heating and cooling. • Open plan living and dining spaces • Generous sized private balcony with garden views • Powder room & separate laundry • Close to lift access • Carparking available at an additional charge About Classic Residences by Keyton Classic Residences Brighton offers an elegant lifestyle crafted to ensure every detail caters to your comfort and enjoyment. Located just 15km southeast of Melbourne’s CBD, the retirement community is situated within easy access to public transport, shopping centres, medical services, and nearby parkland. Winner of the 2021 Blueforce Awards for Best Refurbishment, this contemporary retirement village is nestled amid manicured gardens, offering light-filled community spaces, exceptional amenities and an array of community activities and premium services. Classic Residences Retirement village highlights: • On-site café and restaurant • Fully equipped gym • Indoor heated pool and spa • Cinema • Convenience store • Craft and hobby facilities • Village bus for shopping and outings • 24-hour emergency call system You must be over 55 years of age to purchase a property at this retirement village. Don’t miss this opportunity to make this home your own. Enquire today and book a tour. Pricing, availability of services and facilities provided in the village advertised are correct at the time of listing, but subject to change without notice. Photographs are used for illustrative purposes. Some images depict items not provided by Keyton within the units such as furniture and other decorative items. Keyton Realty (VIC) Pty Ltd ABN 55 124 646 484 of Level 45, Bourke Place, 600 Bourke Street, Melbourne VIC 3000.

Enquire Now

  • $775,000

  • 2
  • 0
  • 1

Stylish North-Facing Haven with Private Leafy Balcony

This Home Comes with a Ready To Move Gift. Enjoy your first 12 months with no village service fees. Reserve on or before 31 March 2026 and settle by 30 June to be eligible. Limited Offer. *Terms and conditions apply. For full terms and conditions and to find out more call 1800 550 550 or enquire today. This beautifully renovated two-bedroom apartment offers a peaceful and private retreat with a stunning north-facing aspect. Designed for comfort and style, it features open-plan living, a brand-new kitchen, and a spacious new bathroom. Enjoy the views from your own private balcony, perfect for relaxing or entertaining. Some of the key highlights of this apartment include: • Fully refurbished with modern finishes • Open-plan living with vinyl flooring • North-facing aspect for natural light and warmth • Brand-new kitchen with stone benchtops and quality appliances • Stylish, spacious bathroom with internal laundry • Two generously sized bedrooms with built-in robes • Private balcony with a tranquil leafy outlook • Ideal for a relaxed and low-maintenance lifestyle About Classic Residences by Keyton Classic Residences Brighton offers an elegant lifestyle crafted to ensure every detail caters to your comfort and enjoyment. Located just 15km southeast of Melbourne’s CBD, the retirement community is situated within easy access to public transport, shopping centres, medical services, and nearby parkland. Classic Residences Retirement village highlights: • On-site café and restaurant • Fully equipped gym • Indoor heated pool and spa • Cinema • Convenience store • Craft and hobby facilities • Village bus for shopping and outings • 24-hour emergency call system You must be over 55 years of age to purchase a property at this retirement village. Don’t miss this opportunity to make this home your own. Enquire today and book a tour. Pricing, availability of services and facilities provided in the village advertised are correct at the time of listing, but subject to change without notice. Photographs are used for illustrative purposes. Some images depict items not provided by Keyton within the units such as furniture and other decorative items. Keyton Realty (VIC) Pty Ltd ABN 55 124 646 484 of Level 45, Bourke Place, 600 Bourke Street, Melbourne VIC 3000.

Enquire Now

  • $530,000

  • 1
  • 0
  • 1

Newly Refurbished Haven with Bright Open Living

This Home Comes with a Ready To Move Gift. Enjoy your first 12 months with no village service fees. Reserve on or before 31 March 2026 and settle by 30 June to be eligible. Limited Offer. *Terms and conditions apply. For full terms and conditions and to find out more call 1800 550 550 or enquire today. Discover modern comfort in this newly refurbished one-bedroom home at Classic Residences Brighton. Designed with style and functionality in mind, this East-facing residence offers quality finishes, open-plan living, and a private sunny courtyard. Some of the key highlights of this apartment include: • Newly refurbished with contemporary finishes • East-facing aspect for natural light • Open-plan living with timber flooring • Brand new kitchen with stone benchtops and stainless steel appliances • Stylish bathroom with internal laundry • Ample storage throughout the home • Private sunny courtyard for outdoor enjoyment • Located in the vibrant Classic Residences Brighton community About Classic Residences by Keyton Classic Residences Brighton offers an elegant lifestyle crafted to ensure every detail caters to your comfort and enjoyment. Located just 15km southeast of Melbourne’s CBD, the retirement community is situated within easy access to public transport, shopping centres, medical services, and nearby parkland. Winner of the 2021 Blueforce Awards for Best Refurbishment, this contemporary retirement village is nestled amid manicured gardens, offering light-filled community spaces, exceptional amenities and an array of community activities and premium services. Classic Residences Retirement village highlights: • On-site café and restaurant • Fully equipped gym • Indoor heated pool and spa • Convenience store • Craft and hobby facilities • Village bus for shopping and outings • 24-hour emergency call system You must be over 55 years of age to purchase a property at this retirement village. Don’t miss this opportunity to make this home your own. Enquire today and book a tour. Pricing, availability of services and facilities provided in the village advertised are correct at the time of listing, but subject to change without notice. Photographs are used for illustrative purposes. Some images depict items not provided by Keyton within the units such as furniture and other decorative items. Keyton Realty (VIC) Pty Ltd ABN 55 124 646 484 of Level 45, Bourke Place, 600 Bourke Street, Melbourne VIC 3000.

Enquire Now

  • $875,000

  • 2
  • 0
  • 2

Refreshed Terrace Home with Sunlit Courtyard

This Home Comes with a Ready To Move Gift. Enjoy your first 12 months with no village service fees. Reserve on or before 31 March 2026 and settle by 30 June to be eligible. Limited Offer. *Terms and conditions apply. For full terms and conditions and to find out more call 1800 550 550 or enquire today. Tucked into the terrace level of Classic Residences Brighton, this beautifully renovated two-bedroom home blends indoor comfort with effortless outdoor living—perfect for relaxing mornings or hosting friends in the garden. Key Features of this home include: • Open plan living and dining with garden views • Modern kitchen with stone benchtops and stainless steel appliances • Master bedroom with walk-in robe and private ensuite • Second spacious bedroom with built-in robe and easy bathroom access • Stylish bathrooms with quality finishes and internal laundry • Glass doors open to a secure, fully fenced courtyard • Garden pathway access from your own private outdoor space • Split system heating/cooling and excellent storage throughout About Classic Residences by Keyton Classic Residences Brighton offers an elegant lifestyle crafted to ensure every detail caters to your comfort and enjoyment. Located just 15km southeast of Melbourne’s CBD, the retirement community is situated within easy access to public transport, shopping centres, medical services, and nearby parkland. Classic Residences Retirement village highlights: • On-site café and restaurant • Fully equipped gym • Indoor heated pool and spa • Cinema • Convenience store • Craft and hobby facilities • Village bus for shopping and outings • 24-hour emergency call system You must be over 55 years of age to purchase a property at this retirement village. Don’t miss this opportunity to make this home your own. Enquire today and book a tour. Pricing, availability of services and facilities provided in the village advertised are correct at the time of listing, but subject to change without notice. Photographs are used for illustrative purposes. Some images depict items not provided by Keyton within the units such as furniture and other decorative items. Keyton Realty (VIC) Pty Ltd ABN 55 124 646 484 of Level 45, Bourke Place, 600 Bourke Street, Melbourne VIC 3000.

Enquire Now

  • $655,000

  • 2
  • 0
  • 1

Bright and Light Retreat with Leafy Terrace Outlook

This Home Comes with a Ready To Move Gift. Enjoy your first 12 months with no village service fees. Reserve on or before 31 March 2026 and settle by 30 June to be eligible. Limited Offer. *Terms and conditions apply. For full terms and conditions and to find out more call 1800 550 550 or enquire today. Step into a light-filled apartment where open-plan living flows seamlessly onto a leafy shared terrace—an inviting space to enjoy morning coffee or afternoon catch-ups with friends. Every detail is designed for ease and comfort, with modern finishes that make daily living a pleasure. Key features of this home include: • Freshly reinstated two-bedroom apartment • Open-plan living and dining with natural light • Shared terrace framed by greenery for relaxation • Sleek kitchen with stone benchtops and dishwasher • Stainless steel appliances for effortless cooking • Spacious bathroom with internal laundry facilities • Ample storage to keep everything neatly in place • 24-hour emergency call for peace of mind About Classic Residences by Keyton Classic Residences Brighton offers an elegant lifestyle crafted to ensure every detail caters to your comfort and enjoyment. Located just 15km southeast of Melbourne’s CBD, the retirement community is situated within easy access to public transport, shopping centres, medical services, and nearby parkland. Winner of the 2021 Blueforce Awards for Best Refurbishment, this contemporary retirement village is nestled amid manicured gardens, offering light-filled community spaces, exceptional amenities and an array of community activities and premium services. Classic Residences Retirement village highlights: • On-site café and restaurant • Fully equipped gym • Indoor heated pool and spa • Cinema • Convenience store • Craft and hobby facilities • Village bus for shopping and outings • 24-hour emergency call system You must be over 55 years of age to purchase a property at this retirement village. Don’t miss this opportunity to make this home your own. Enquire today and book a tour. Pricing, availability of services and facilities provided in the village advertised are correct at the time of listing, but subject to change without notice. Photographs are used for illustrative purposes. Some images depict items not provided by Keyton within the units such as furniture and other decorative items. Keyton Realty (VIC) Pty Ltd ABN 55 124 646 484 of Level 45, Bourke Place, 600 Bourke Street, Melbourne VIC 3000.

Enquire Now

  • $495,000

  • 1
  • 0
  • 1

Bright, East-Facing Apartment with Terrace and Modern Kitchen

This Home Comes with a Ready To Move Gift. Enjoy your first 12 months with no village service fees. Reserve on or before 31 March 2026 and settle by 30 June to be eligible. Limited Offer. *Terms and conditions apply. For full terms and conditions and to find out more call 1800 550 550 or enquire today. Enjoy morning light and leafy terrace views from your private balcony in this beautifully reinstated one-bedroom apartment, perfectly placed in Classic Residences Brighton—just moments from a host of village amenities. Key highlights of this apartment include: • East-facing aspect fills the home with natural light • Open-plan living flows to shared terrace—ideal for your morning cuppa • Sleek stone-topped kitchen with stainless steel appliances and dish drawer • Generous bedroom with built-in storage and peaceful outlook • Stylishly tiled bathroom with walk-in shower • Internal laundry discreetly tucked within the bathroom • Freshly reinstated with neutral tones and quality finishes • Convenient ground-floor location near community facilities About Classic Residences by Keyton Classic Residences Brighton offers an elegant lifestyle crafted to ensure every detail caters to your comfort and enjoyment. Located just 15km southeast of Melbourne’s CBD, the retirement community is situated within easy access to public transport, shopping centres, medical services, and nearby parkland. Classic Residences Retirement village highlights: • On-site café and restaurant • Fully equipped gym • Indoor heated pool and spa • Cinema • Convenience store • Craft and hobby facilities • Village bus for shopping and outings • 24-hour emergency call system You must be over 55 years of age to purchase a property at this retirement village. Don’t miss this opportunity to make this home your own. Enquire today and book a tour. Pricing, availability of services and facilities provided in the village advertised are correct at the time of listing, but subject to change without notice. Photographs are used for illustrative purposes. Some images depict items not provided by Keyton within the units such as furniture and other decorative items. Keyton Realty (VIC) Pty Ltd ABN 55 124 646 484 of Level 45, Bourke Place, 600 Bourke Street, Melbourne VIC 3000. 650

Enquire Now

  • $675,000

  • 2
  • 0
  • 1

Bright, Spacious and Ready to Move Into

This Home Comes with a Ready To Move Gift. Enjoy your first 12 months with no village service fees. Reserve on or before 31 March 2026 and settle by 30 June to be eligible. Limited Offer. *Terms and conditions apply. For full terms and conditions and to find out more call 1800 550 550 or enquire today. Soak up the warm afternoon sun and enjoy easy indoor-outdoor living in this beautifully updated west-facing home at Classic Residences Brighton. Perfectly positioned within the community, this inviting apartment offers the ideal balance of style and practicality—ready for you to move in and make it your own. Key highlights of this home include: • Sunny west-facing aspect for natural afternoon light • Open plan living and dining for relaxed entertaining • Spacious undercover balcony, perfect for alfresco moments • Two generous bedrooms with built-in robes • Contemporary kitchen with modern appliances • Well-appointed bathroom • Separate full-sized laundry with additional storage • Fully reinstated for a fresh, move-in ready feel About Classic Residences by Keyton Classic Residences Brighton offers an elegant lifestyle crafted to ensure every detail caters to your comfort and enjoyment. Located just 15km southeast of Melbourne’s CBD, the retirement community is situated within easy access to public transport, shopping centres, medical services, and nearby parkland. Classic Residences Retirement village highlights: • On-site café and restaurant • Fully equipped gym • Indoor heated pool and spa • Cinema • Convenience store • Craft and hobby facilities • Village bus for shopping and outings • 24-hour emergency call system You must be over 55 years of age to purchase a property at this retirement village. Don’t miss this opportunity to make this home your own. Enquire today and book a tour. Pricing, availability of services and facilities provided in the village advertised are correct at the time of listing, but subject to change without notice. Photographs are used for illustrative purposes. Some images depict items not provided by Keyton within the units such as furniture and other decorative items. Keyton Realty (VIC) Pty Ltd ABN 55 124 646 484 of Level 45, Bourke Place, 600 Bourke Street, Melbourne VIC 3000.

Enquire Now

  • $675,000

  • 2
  • 0
  • 1

Charming Terrace-level Home with Private Garden Potential

This Home Comes with a Ready To Move Gift. Enjoy your first 12 months with no village service fees. Reserve on or before 31 March 2026 and settle by 30 June to be eligible. Limited Offer. *Terms and conditions apply. For full terms and conditions and to find out more call 1800 550 550 or enquire today. Tucked on the terrace level with easy lift access, this light-filled two-bedroom home places you steps from Classic Residences' vibrant amenities. A seamless open plan layout, fresh modern finishes, and a sun-drenched terrace invite relaxed living and a personal touch of greenery. Key highlights of this home include: • Open plan layout with natural light throughout • Stone kitchen benches, sleek glass splashback, and modern appliances • Two well-sized bedrooms with built-in robes for easy storage • Stylish, spacious bathroom with walk-in shower • Private, sunny terrace—ideal for potted plants or outdoor lounging • Separate laundry room adds everyday practicality • Reverse cycle heating and cooling for year-round comfort • Fully reinstated for fresh, move-in ready appeal About Classic Residences by Keyton Classic Residences Brighton offers an elegant lifestyle crafted to ensure every detail caters to your comfort and enjoyment. Located just 15km southeast of Melbourne’s CBD, the retirement community is situated within easy access to public transport, shopping centres, medical services, and nearby parkland. Classic Residences Retirement village highlights: • On-site café and restaurant • Fully equipped gym • Indoor heated pool and spa • Cinema • Convenience store • Craft and hobby facilities • Village bus for shopping and outings • 24-hour emergency call system You must be over 55 years of age to purchase a property at this retirement village. Don’t miss this opportunity to make this home your own. Enquire today and book a tour. Pricing, availability of services and facilities provided in the village advertised are correct at the time of listing, but subject to change without notice. Photographs are used for illustrative purposes. Some images depict items not provided by Keyton within the units such as furniture and other decorative items. Keyton Realty (VIC) Pty Ltd ABN 55 124 646 484 of Level 45, Bourke Place, 600 Bourke Street, Melbourne VIC 3000.

Enquire Now

  • $335,000

  • 1
  • 0
  • 1

Freshly Renovated with Leafy Balcony Views

This Home Comes with a Ready To Move Gift. Enjoy your first 12 months with no village service fees. Reserve on or before 31 March 2026 and settle by 30 June to be eligible. Limited Offer. *Terms and conditions apply. For full terms and conditions and to find out more call 1800 550 550 or enquire today. Step into a sunlit retreat where open-plan living flows to a private balcony framed by treetops. Located at Classic Residences, this beautifully updated one-bedroom apartment showcases thoughtful touches throughout. Key highlights of this home include: • Fully refurbished throughout with contemporary finishes • Sleek kitchenette with stone benchtops and ample storage • Quality appliances including electric cooktop, fridge, and microwave • Spacious bedroom with built-in robe and garden outlook • Stylish new bathroom with modern fittings and walk-in shower • Ducted heating and cooling for year-round comfort • Quiet position near the lift for easy access • Private balcony offering peaceful, leafy views About Classic Residences by Keyton Classic Residences Brighton offers an elegant lifestyle crafted to ensure every detail caters to your comfort and enjoyment. Located just 15km southeast of Melbourne’s CBD, the retirement community is situated within easy access to public transport, shopping centres, medical services, and nearby parkland. Classic Residences Retirement village highlights: • On-site café and restaurant • Fully equipped gym • Indoor heated pool and spa • Cinema • Convenience store • Craft and hobby facilities • Village bus for shopping and outings • 24-hour emergency call system You must be over 55 years of age to purchase a property at this retirement village. Don’t miss this opportunity to make this home your own. Enquire today and book a tour. Pricing, availability of services and facilities provided in the village advertised are correct at the time of listing, but subject to change without notice. Photographs are used for illustrative purposes. Some images depict items not provided by Keyton within the units such as furniture and other decorative items. Keyton Realty (VIC) Pty Ltd ABN 55 124 646 484 of Level 45, Bourke Place, 600 Bourke Street, Melbourne VIC 3000.

Enquire Now

  • $960,000

  • 2
  • 0
  • 2

Refurbished Living Spaces and Top Location

This Home Comes with a Ready To Move Gift. Enjoy your first 12 months with no village service fees. Reserve on or before 31 March 2026 and settle by 30 June to be eligible. Limited Offer. *Terms and conditions apply. For full terms and conditions and to find out more call 1800 550 550 or enquire today. Enjoy living in this fully refurbished, ground floor home at Classic Residences Brighton. The open-plan layout flows to a north-facing garden terrace, perfect for quiet reading or afternoon tea with friends. A brand-new kitchen with stone benchtops and stainless steel appliances makes cooking a joy, while the stylish bathroom and ensuite add a touch of everyday luxury. Key highlights of this home include: • Freshly renovated with contemporary finishes throughout • Sunlit open-plan living and dining with leafy garden outlook • Ground floor position with private, north-facing terrace • Sleek new kitchen with stone benchtops and dishwasher • Sparkling new bathroom and ensuite with quality fixtures • Two spacious bedrooms with ample built-in storage • Internal laundry tucked away for convenience • Located within a vibrant, well-connected retirement community • Car parking available for an additional fee About Classic Residences by Keyton Classic Residences Brighton offers an elegant lifestyle crafted to ensure every detail caters to your comfort and enjoyment. Located just 15km southeast of Melbourne’s CBD, the retirement community is situated within easy access to public transport, shopping centres, medical services, and nearby parkland. Classic Residences Retirement village highlights: • On-site café and restaurant • Fully equipped gym • Indoor heated pool and spa • Cinema • Convenience store • Craft and hobby facilities • Village bus for shopping and outings • 24-hour emergency call system You must be over 55 years of age to purchase a property at this retirement village. Don’t miss this opportunity to make this home your own. Enquire today and book a tour. Pricing, availability of services and facilities provided in the village advertised are correct at the time of listing, but subject to change without notice. Photographs are used for illustrative purposes. Some images depict items not provided by Keyton within the units such as furniture and other decorative items. Keyton Realty (VIC) Pty Ltd ABN 55 124 646 484 of Level 45, Bourke Place, 600 Bourke Street, Melbourne VIC 3000.

Enquire Now

  • $820,000

  • 2
  • 0
  • 1
Under Offer

Terrace-Style Living with Sunlit Spaces in Brighton

Enjoy your first six months, fee free* Reserve on or before 31 December 2025 and settle by 31 March 2026 to be eligible. Limited Offer! *Terms and conditions apply. For full terms and conditions and to find out more call 1800 550 550 or enquire today! Step inside this freshly updated two-bedroom terrace home and feel an easy sense of calm as natural light spills across open-plan living and dining spaces. The modern kitchen sits at the heart, ready for shared meals or quiet mornings, while sliding doors open to a private balcony where you can savour fresh air and leafy outlooks. Warm, neutral tones and soft new carpet create a welcoming retreat, all within the vibrant, connected lifestyle of Classic Residences Brighton. Key features of this home include: • Freshly painted with new carpet underfoot • Light-filled open-plan living and dining areas • Private terrace ideal for relaxing or entertaining • Modern kitchen with quality appliances • Two generous bedrooms with built-in robes • Separate study for hobbies or home office • Modern bathroom plus powder room with second toilet • Ducted heating and cooling for year-round comfort About Classic Residences by Keyton Classic Residences Brighton offers an elegant lifestyle crafted to ensure every detail caters to your comfort and enjoyment. Located just 15km southeast of Melbourne’s CBD, the retirement community is situated within easy access to public transport, shopping centres, medical services, and nearby parkland. Classic Residences Retirement village highlights: • On-site café and restaurant • Fully equipped gym • Indoor heated pool and spa • Cinema • Convenience store • Craft and hobby facilities • Village bus for shopping and outings • 24-hour emergency call system You must be over 55 years of age to purchase a property at this retirement village. Don’t miss this opportunity to make this home your own. Enquire today and book a tour. Pricing, availability of services and facilities provided in the village advertised are correct at the time of listing, but subject to change without notice. Photographs are used for illustrative purposes. Some images depict items not provided by Keyton within the units such as furniture and other decorative items. Keyton Realty (VIC) Pty Ltd ABN 55 124 646 484 of Level 45, Bourke Place, 600 Bourke Street, Melbourne VIC 3000.

Enquire Now

  • $895,000

  • 2
  • 0
  • 1
Under Offer

North-facing, Refurbished with Spacious Balcony

Bask in natural light and fresh finishes with this north-facing, fully refurbished two-bedroom home at Classic Residences. Designed for easy living and effortless entertaining, it’s a modern retreat with style and comfort in every corner. Key highlights of this home include: • Fully refurbished throughout with quality finishes • Bright north-facing aspect for all-day sun • Spacious open plan living and dining zone • Sleek new kitchen with stone benchtops and dishwasher • Contemporary bathroom plus powder room/laundry • Generous internal storage options • Expansive private balcony perfect for entertaining • Located within vibrant Classic Residences community About Classic Residences by Keyton Classic Residences Brighton offers an elegant lifestyle crafted to ensure every detail caters to your comfort and enjoyment. Located just 15km southeast of Melbourne’s CBD, the retirement community is situated within easy access to public transport, shopping centres, medical services, and nearby parkland. Classic Residences Retirement village highlights: • On-site café and restaurant • Fully equipped gym • Indoor heated pool and spa • Cinema • Convenience store • Craft and hobby facilities • Village bus for shopping and outings • 24-hour emergency call system You must be over 55 years of age to purchase a property at this retirement village. Don’t miss this opportunity to make this home your own. Enquire today and book a tour. Pricing, availability of services and facilities provided in the village advertised are correct at the time of listing, but subject to change without notice. Photographs are used for illustrative purposes. Some images depict items not provided by Keyton within the units such as furniture and other decorative items. Keyton Realty (VIC) Pty Ltd ABN 55 124 646 484 of Level 45, Bourke Place, 600 Bourke Street, Melbourne VIC 3000.

Enquire Now

  • $465,000

  • 1
  • 0
  • 1
Under Offer

Stylish Retreat with Two Private Balconies and Modern Upgrades

Discover this delightful one-bedroom plus study home at Classic Residences Brighton. The open-plan living area features a brand-new kitchenette with stone benchtops, new cabinetry, an electric cooktop, a fridge, a microwave, and ample storage. Conveniently located near the lift and equipped with central air conditioning and heating, this apartment is must-see. Some of the key highlights of this apartment include: • One-bedroom with built-in robe plus study • Two private balconies for outdoor enjoyment • Open-plan living with a modern design • Newly renovated kitchenette with stone benchtops • Quality appliances, including electric cooktop and microwave • Stylish new bathroom with premium finishes • Central air conditioning and heating for year-round comfort • Conveniently located close to the lift About Classic Residences by Keyton Classic Residences Brighton offers an elegant lifestyle crafted to ensure every detail caters to your comfort and enjoyment. Located just 15km southeast of Melbourne’s CBD, the retirement community is situated within easy access to public transport, shopping centres, medical services, and nearby parkland. Winner of the 2021 Blueforce Awards for Best Refurbishment, this contemporary retirement village is nestled amid manicured gardens, offering light-filled community spaces, exceptional amenities and an array of community activities and premium services. Classic Residences Retirement village highlights: • On-site café and restaurant • Fully equipped gym • Indoor heated pool and spa • Cinema • Convenience store • Craft and hobby facilities • Village bus for shopping and outings • 24-hour emergency call system You must be over 55 years of age to purchase a property at this retirement village. Don’t miss this opportunity to make this home your own. Enquire today and book a tour. Pricing, availability of services and facilities provided in the village advertised are correct at the time of listing, but subject to change without notice. Photographs are used for illustrative purposes. Some images depict items not provided by Keyton within the units such as furniture and other decorative items. Keyton Realty (VIC) Pty Ltd ABN 55 124 646 484 of Level 45, Bourke Place, 600 Bourke Street, Melbourne VIC 3000.

Enquire Now

  • $790,000

  • 2
  • 0
  • 1
Under Offer

Stylish and Secure Living with Private Courtyard

Located in Classic Residences Brighton, this ground-floor apartment features garden views and access to a private, fenced courtyard. Enjoy seamless indoor-outdoor living in a tranquil, landscaped setting. Positioned close to the clubhouse and premium amenities, this beautifully presented home provides a secure and relaxed lifestyle. Arrange your inspection today! Some of the key highlights of this apartment include: • Light-filled open-plan living and dining area • Modern kitchen with quality appliances • Two spacious bedrooms with built-in wardrobes • Stylish, well-appointed bathroom • Private, fully fenced courtyard with garden access • Reverse-cycle air conditioning for year-round comfort • Secure, ground-floor location with easy access • Close to clubhouse and lifestyle amenities About Classic Residences by Keyton Classic Residences Brighton offers an elegant lifestyle crafted to ensure every detail caters to your comfort and enjoyment. Located just 15km southeast of Melbourne’s CBD, the retirement community is situated within easy access to public transport, shopping centres, medical services, and nearby parkland. Winner of the 2021 Blueforce Awards for Best Refurbishment, this contemporary retirement village is nestled amid manicured gardens, offering light-filled community spaces, exceptional amenities and an array of community activities and premium services. Classic Residences Retirement village highlights: • On-site café and restaurant • Fully equipped gym • Indoor heated pool and spa • Cinema • Convenience store • Craft and hobby facilities • Village bus for shopping and outings • 24-hour emergency call system You must be over 55 years of age to purchase a property at this retirement village. Don’t miss this opportunity to make this home your own. Enquire today and book a tour. Pricing, availability of services and facilities provided in the village advertised are correct at the time of listing, but subject to change without notice. Photographs are used for illustrative purposes. Some images depict items not provided by Keyton within the units such as furniture and other decorative items. Keyton Realty (VIC) Pty Ltd ABN 55 124 646 484 of Level 45, Bourke Place, 600 Bourke Street, Melbourne VIC 3000.

Enquire Now

  • $510,000

  • 1
  • 0
  • 1
Under Offer

Fully Reinstated One-Bedroom Plus Study with Balcony

This beautifully updated one-bedroom plus study apartment at Classic Residences Brighton offers modern, low-maintenance living in a sought-after retirement community. Enjoy open plan interiors, quality finishes, and a spacious balcony surrounded by trees. Some of the key highlights of this apartment include: • Fully reinstated throughout with quality finishes • Light-filled open plan living and dining area • Separate study ideal for hobbies or guests • Modern kitchen with stone benchtops and stainless appliances • Includes dishwasher and generous storage • Well-appointed bathroom with internal laundry • Private balcony with tranquil leafy outlook • Located within Classic Residences Brighton community About Classic Residences by Keyton Classic Residences Brighton offers an elegant lifestyle crafted to ensure every detail caters to your comfort and enjoyment. Located just 15km southeast of Melbourne’s CBD, the retirement community is situated within easy access to public transport, shopping centres, medical services, and nearby parkland. Classic Residences Retirement village highlights: • On-site café and restaurant • Fully equipped gym • Indoor heated pool and spa • Cinema • Convenience store • Craft and hobby facilities • Village bus for shopping and outings • 24-hour emergency call system You must be over 55 years of age to purchase a property at this retirement village. Don’t miss this opportunity to make this home your own. Enquire today and book a tour. Pricing, availability of services and facilities provided in the village advertised are correct at the time of listing, but subject to change without notice. Photographs are used for illustrative purposes. Some images depict items not provided by Keyton within the units such as furniture and other decorative items. Keyton Realty (VIC) Pty Ltd ABN 55 124 646 484 of Level 45, Bourke Place, 600 Bourke Street, Melbourne VIC 3000.

Enquire Now

  • $830,000

  • 2
  • 0
  • 2
Under Offer

Bright Corner Apartment with City Views

Bathe in natural light from every angle in this beautifully positioned two-bedroom, two-bathroom apartment at Classic Residences Brighton. Designed to capture sweeping city views and morning sun, it’s a wonderful haven with generous indoor-outdoor flow. Key Features of this apartment include: • North- and east-facing corner position for all-day natural light • Open plan living areas opening to a large balcony with city skyline views • Master bedroom with private ensuite and generous built-in robes • Second bedroom with its own private balcony, ideal for guests or a study • Sleek kitchen with ample bench space and modern appliances • Two stylish bathrooms plus internal laundry for added convenience • Two private balconies offering sun-soaked outdoor spaces • Set within the vibrant Classic Residences community with premium amenities About Classic Residences by Keyton Classic Residences Brighton offers an elegant lifestyle crafted to ensure every detail caters to your comfort and enjoyment. Located just 15km southeast of Melbourne’s CBD, the retirement community is situated within easy access to public transport, shopping centres, medical services, and nearby parkland. Winner of the 2021 Blueforce Awards for Best Refurbishment, this contemporary retirement village is nestled amid manicured gardens, offering light-filled community spaces, exceptional amenities and an array of community activities and premium services. Classic Residences Retirement village highlights: • On-site café and restaurant • Fully equipped gym • Indoor heated pool and spa • Cinema • Convenience store • Craft and hobby facilities • Village bus for shopping and outings • 24-hour emergency call system You must be over 55 years of age to purchase a property at this retirement village. Don’t miss this opportunity to make this home your own. Enquire today and book a tour. Pricing, availability of services and facilities provided in the village advertised are correct at the time of listing, but subject to change without notice. Photographs are used for illustrative purposes. Some images depict items not provided by Keyton within the units such as furniture and other decorative items. Keyton Realty (VIC) Pty Ltd ABN 55 124 646 484 of Level 45, Bourke Place, 600 Bourke Street, Melbourne VIC 3000.

Enquire Now

  • $540,000

  • 1
  • 0
  • 1
Under Offer

Terrace Home with Garden Views and Private Study

Wake to soft morning sun streaming into this inviting east-facing home, where leafy garden views and a sense of space create a calming retreat. Thoughtfully designed for relaxed, low-maintenance living, this terrace-level residence offers effortless style. Key highlights of this home include: • Open-plan living and dining filled with natural light • East-facing outlook with tranquil garden views • Modern kitchen with stone benchtop and dishwasher • Private terrace ideal for morning coffee or tending pot plants • Generous bedroom with built-in robe and garden aspect • Separate study—perfect for hobbies or reading nook • Stylish bathroom with walk-in shower • Internal laundry cleverly tucked away for convenience • Ample storage throughout About Classic Residences by Keyton Classic Residences Brighton offers an elegant lifestyle crafted to ensure every detail caters to your comfort and enjoyment. Located just 15km southeast of Melbourne’s CBD, the retirement community is situated within easy access to public transport, shopping centres, medical services, and nearby parkland. Classic Residences Retirement village highlights: • On-site café and restaurant • Fully equipped gym • Indoor heated pool and spa • Cinema • Convenience store • Craft and hobby facilities • Village bus for shopping and outings • 24-hour emergency call system You must be over 55 years of age to purchase a property at this retirement village. Don’t miss this opportunity to make this home your own. Enquire today and book a tour. Pricing, availability of services and facilities provided in the village advertised are correct at the time of listing, but subject to change without notice. Photographs are used for illustrative purposes. Some images depict items not provided by Keyton within the units such as furniture and other decorative items. Keyton Realty (VIC) Pty Ltd ABN 55 124 646 484 of Level 45, Bourke Place, 600 Bourke Street, Melbourne VIC 3000.

Enquire Now

  • $900,000

  • 2
  • 1
  • 2
Under Offer

Elegant Villa with Private Balcony and Spacious Living

This delightful two-bedroom plus study, two-bathroom villa offers the best in retirement living at Classic Residences. Currently being fully reinstated, it features a modern kitchen, spacious bedrooms and a private balcony perfect for relaxing or entertaining. Ideally located within the community, this villa is a fantastic opportunity to enjoy a comfortable and low-maintenance lifestyle. Some of the key highlights of this villa include: • Spacious two-bedroom villa plus study • Master bedroom with ensuite • Full reinstatement underway • Private, fully paved balcony for outdoor enjoyment • Single carport • Set in an enviable location within Classic Residences • Access to a vibrant, welcoming community About Classic Residences by Keyton Classic Residences Brighton offers an elegant lifestyle crafted to ensure every detail caters to your comfort and enjoyment. Located just 15km southeast of Melbourne’s CBD, the retirement community is situated within easy access to public transport, shopping centres, medical services, and nearby parkland. Classic Residences Retirement village highlights: • On-site café and restaurant • Fully equipped gym • Indoor heated pool and spa • Cinema • Convenience store • Craft and hobby facilities • Village bus for shopping and outings • 24-hour emergency call system You must be over 55 years of age to purchase a property at this retirement village. Don’t miss this opportunity to make this home your own. Enquire today and book a tour. Pricing, availability of services and facilities provided in the village advertised are correct at the time of listing, but subject to change without notice. Photographs are used for illustrative purposes. Some images depict items not provided by Keyton within the units such as furniture and other decorative items. Keyton Realty (VIC) Pty Ltd ABN 55 124 646 484 of Level 45, Bourke Place, 600 Bourke Street, Melbourne VIC 3000.

Enquire Now

  • $865,000

  • 2
  • 0
  • 1
Under Offer

Stylish North-Facing Penthouse with Sunlit Balcony

Beautifully renovated and bathed in natural light, this north-facing two-bedroom penthouse apartment offers modern comfort with a brand-new kitchen, sleek bathroom, and generous private balcony—perfect for relaxed retirement living. Some of the key highlights of this apartment include: • Fully refurbished with high-quality finishes • Open-plan living and dining for effortless flow • North-facing aspect for year-round sunshine • Brand-new kitchen with stone benchtops • Stainless steel appliances, including a dishwasher • Stylish new bathroom plus a powder room with laundry • Ample storage for a clutter-free lifestyle • Spacious private balcony for outdoor enjoyment About Classic Residences by Keyton Classic Residences Brighton offers an elegant lifestyle crafted to ensure every detail caters to your comfort and enjoyment. Located just 15km southeast of Melbourne’s CBD, the retirement community is situated within easy access to public transport, shopping centres, medical services, and nearby parkland. Winner of the 2021 Blueforce Awards for Best Refurbishment, this contemporary retirement village is nestled amid manicured gardens, offering light-filled community spaces, exceptional amenities and an array of community activities and premium services. Classic Residences Retirement village highlights: • On-site café and restaurant • Fully equipped gym • Indoor heated pool and spa • Cinema • Convenience store • Craft and hobby facilities • Village bus for shopping and outings • 24-hour emergency call system You must be over 55 years of age to purchase a property at this retirement village. Don’t miss this opportunity to make this home your own. Enquire today and book a tour. Pricing, availability of services and facilities provided in the village advertised are correct at the time of listing, but subject to change without notice. Photographs are used for illustrative purposes. Some images depict items not provided by Keyton within the units such as furniture and other decorative items. Keyton Realty (VIC) Pty Ltd ABN 55 124 646 484 of Level 45, Bourke Place, 600 Bourke Street, Melbourne VIC 3000.

Enquire Now

  • $370,000

  • 1
  • 0
  • 1
Under Offer

Bright, Leafy Retreat in the Heart of Classic Residences

Start your mornings with dappled sunlight and the soft rustle of trees in this beautifully refreshed one-bedroom home, perfectly positioned for a relaxed yet connected Brighton lifestyle. From your own balcony to the modern comforts inside, it’s a place made for enjoying every moment. Key features of this home include: • Fully reinstated with fresh paint and new carpet throughout • Contemporary kitchenette with cooktop, fridge and microwave • Generous kitchen bench space • Spacious bathroom with walk-in shower • East-facing balcony framed by leafy tree-top views • Peaceful position offering excellent privacy and quiet • Conveniently located close to lift for easy access • Enjoy all the amenities of the vibrant Classic Residences community About Classic Residences by Keyton Classic Residences Brighton offers an elegant lifestyle crafted to ensure every detail caters to your comfort and enjoyment. Located just 15km southeast of Melbourne’s CBD, the retirement community is situated within easy access to public transport, shopping centres, medical services, and nearby parkland. Classic Residences Retirement village highlights: • On-site café and restaurant • Fully equipped gym • Indoor heated pool and spa • Cinema • Convenience store • Craft and hobby facilities • Village bus for shopping and outings • 24-hour emergency call system You must be over 55 years of age to purchase a property at this retirement village. Don’t miss this opportunity to make this home your own. Enquire today and book a tour. Pricing, availability of services and facilities provided in the village advertised are correct at the time of listing, but subject to change without notice. Photographs are used for illustrative purposes. Some images depict items not provided by Keyton within the units such as furniture and other decorative items. Keyton Realty (VIC) Pty Ltd ABN 55 124 646 484 of Level 45, Bourke Place, 600 Bourke Street, Melbourne VIC 3000.

Enquire Now

  • $545,000

  • 1
  • 0
  • 1
Under Offer

Modern Apartment with a Tranquil, Leafy Outlook

This Home Comes with a Ready To Move Gift. Enjoy your first 12 months with no village service fees. Reserve on or before 30 September 2025 and settle by 31 December 2025 to be eligible. *For full terms and conditions and to find out more call 1800 550 550 or enquire today. This fully refurbished one-bedroom plus study apartment at Classic Residences offers style and functionality. Featuring a brand-new kitchen with stone benchtops, stainless steel appliances, and a dishwasher, along with a modern bathroom with an internal laundry and generous storage. Enjoy relaxing or entertaining on your private balcony with tranquil tree-lined views Some of the key highlights of this apartment include: • One-bedroom plus study for added flexibility • Stylish new kitchen with stone benchtops • Stainless steel appliances, including a dishwasher • Spacious open-plan living and dining area • Modern bathroom with internal laundry • Generous storage throughout • Private balcony overlooking lush greenery • Located in the sought-after Classic Residences community About Classic Residences by Keyton Classic Residences Brighton offers an elegant lifestyle crafted to ensure every detail caters to your comfort and enjoyment. Located just 15km southeast of Melbourne’s CBD, the retirement community is situated within easy access to public transport, shopping centres, medical services, and nearby parkland. Classic Residences Retirement village highlights: • On-site café and restaurant • Fully equipped gym • Indoor heated pool and spa • Cinema • Convenience store • Craft and hobby facilities • Village bus for shopping and outings • 24-hour emergency call system You must be over 55 years of age to purchase a property at this retirement village. Don’t miss this opportunity to make this home your own. Enquire today and book a tour. Pricing, availability of services and facilities provided in the village advertised are correct at the time of listing, but subject to change without notice. Photographs are used for illustrative purposes. Some images depict items not provided by Keyton within the units such as furniture and other decorative items. Keyton Realty (VIC) Pty Ltd ABN 55 124 646 484 of Level 45, Bourke Place, 600 Bourke Street, Melbourne VIC 3000.

Enquire Now

  • $290,000

  • 1
  • 0
  • 1
Under Offer

Elegant, Stylish and Convenient One-Bedroom Apartment

Seize the opportunity to reside in this stylish one-bedroom apartment at Classic Residences, boasting a strong design in a premium location. Ideal for a relaxed retirement, this home is ready to welcome you. Some of the key features of this apartment include a: • Stylish apartment in a premium Classic Residences location • Bright and modern kitchenette with cooktop, fridge, and microwave • Gorgeous combined living and dining area • Seamless integration with the balcony • Ducted heating and cooling for year-round comfort • Spacious master bedroom with a wall-mounted TV • Built-in robe and ensuite bathroom in the master bedroom • Move-in ready for a delightful summer experience About Classic Residences by Keyton Classic Residences Brighton offers an elegant lifestyle crafted to ensure every detail caters to your comfort and enjoyment. Located just 15km southeast of Melbourne’s CBD, the retirement community is situated within easy access to public transport, shopping centres, medical services, and nearby parkland. Classic Residences Retirement village highlights: • On-site café and restaurant • Fully equipped gym • Indoor heated pool and spa • Cinema • Convenience store • Craft and hobby facilities • Village bus for shopping and outings • 24-hour emergency call system You must be over 55 years of age to purchase a property at this retirement village. Don’t miss this opportunity to make this home your own. Enquire today and book a tour. Pricing, availability of services and facilities provided in the village advertised are correct at the time of listing, but subject to change without notice. Photographs are used for illustrative purposes. Some images depict items not provided by Keyton within the units such as furniture and other decorative items. Keyton Realty (VIC) Pty Ltd ABN 55 124 646 484 of Level 45, Bourke Place, 600 Bourke Street, Melbourne VIC 3000.

Enquire Now

  • $1,275,000

  • 2
  • 1
  • 2
Under Offer

Light-Filled Villa with Study and Private Courtyard

Step into a home that offers more than just space—it offers a lifestyle. Nestled within the peaceful surrounds of Classic Residences, this beautifully maintained villa blends everyday comfort with thoughtful design, perfect for enjoying your retirement just the way you like it. Key Features of this villa include: • Light-filled open plan living and dining for easy entertaining • Contemporary kitchen with stone benchtops and quality appliances • Two generous bedrooms with built-in or walk-in robes • Master suite with a private ensuite and garden outlook • Separate study—ideal for reading, crafts or quiet reflection • North-facing courtyard, perfect for morning tea in the sun • Ducted heating and cooling for year-round comfort • Double lock-up garage with direct home access About Classic Residences by Keyton Classic Residences Brighton offers an elegant lifestyle crafted to ensure every detail caters to your comfort and enjoyment. Located just 15km southeast of Melbourne’s CBD, the retirement community is situated within easy access to public transport, shopping centres, medical services, and nearby parkland. Winner of the 2021 Blueforce Awards for Best Refurbishment, this contemporary retirement village is nestled amid manicured gardens, offering light-filled community spaces, exceptional amenities and an array of community activities and premium services. Classic Residences Retirement village highlights: • On-site café and restaurant • Fully equipped gym • Indoor heated pool and spa • Cinema • Convenience store • Craft and hobby facilities • Village bus for shopping and outings • 24-hour emergency call system You must be over 55 years of age to purchase a property at this retirement village. Don’t miss this opportunity to make this home your own. Enquire today and book a tour. Pricing, availability of services and facilities provided in the village advertised are correct at the time of listing, but subject to change without notice. Photographs are used for illustrative purposes. Some images depict items not provided by Keyton within the units such as furniture and other decorative items. Keyton Realty (VIC) Pty Ltd ABN 55 124 646 484 of Level 45, Bourke Place, 600 Bourke Street, Melbourne VIC 3000.

Enquire Now

  • $365,000

  • 1
  • 0
  • 1
Under Offer

Private First Floor Apartment with Lovely Garden Views

This charming first floor apartment at Classic Residences Brighton feels just right vibrant, bright, and wonderfully convenient. With everything you need at your doorstep, including the clubhouse and bowling green, it’s the perfect place to enjoy your retirement. Key features of this apartment include: • First floor with easy access and leafy garden views • Sunny east-facing aspect for morning warmth • Light-filled open plan lounge and dining area • Kitchenette with electric cooktop, fridge and microwave • Comfortable bedroom with built-in robe and ensuite • Ducted heating and cooling for year-round comfort • Lovely outlook over the bowling green • Short stroll to the clubhouse and community facilities About Classic Residences by Keyton Classic Residences Brighton offers an elegant lifestyle crafted to ensure every detail caters to your comfort and enjoyment. Located just 15km southeast of Melbourne’s CBD, the retirement community is situated within easy access to public transport, shopping centres, medical services, and nearby parkland. Winner of the 2021 Blueforce Awards for Best Refurbishment, this contemporary retirement village is nestled amid manicured gardens, offering light-filled community spaces, exceptional amenities and an array of community activities and premium services. Classic Residences Retirement village highlights: • On-site café and restaurant • Fully equipped gym • Indoor heated pool and spa • Cinema • Convenience store • Craft and hobby facilities • Village bus for shopping and outings • 24-hour emergency call system You must be over 55 years of age to purchase a property at this retirement village. Don’t miss this opportunity to make this home your own. Enquire today and book a tour. Pricing, availability of services and facilities provided in the village advertised are correct at the time of listing, but subject to change without notice. Photographs are used for illustrative purposes. Some images depict items not provided by Keyton within the units such as furniture and other decorative items. Keyton Realty (VIC) Pty Ltd ABN 55 124 646 484 of Level 45, Bourke Place, 600 Bourke Street, Melbourne VIC 3000.

Enquire Now

  • $275,000

  • 1
  • 0
  • 1
Under Offer

Ground Floor Apartment Close to all Amenities

This beautifully presented ground floor apartment at Classic Residences Brighton offers wonderful, low-maintenance living in a warm and welcoming community. Some of the key highlights of this apartment include: • Open plan living and dining • Well-equipped kitchenette with electric cooktop • Full-size fridge and built-in microwave included • Spacious bedroom with built-in wardrobe • Well-appointed bathroom • Ducted heating and cooling throughout • Ideally located within a vibrant and secure community About Classic Residences by Keyton Classic Residences Brighton offers an elegant lifestyle crafted to ensure every detail caters to your comfort and enjoyment. Located just 15km southeast of Melbourne’s CBD, the retirement community is situated within easy access to public transport, shopping centres, medical services, and nearby parkland. Winner of the 2021 Blueforce Awards for Best Refurbishment, this contemporary retirement village is nestled amid manicured gardens, offering light-filled community spaces, exceptional amenities and an array of community activities and premium services. Classic Residences Retirement village highlights: • On-site café and restaurant • Fully equipped gym • Indoor heated pool and spa • Cinema • Convenience store • Craft and hobby facilities • Village bus for shopping and outings • 24-hour emergency call system You must be over 55 years of age to purchase a property at this retirement village. Don’t miss this opportunity to make this home your own. Enquire today and book a tour. Pricing, availability of services and facilities provided in the village advertised are correct at the time of listing, but subject to change without notice. Photographs are used for illustrative purposes. Some images depict items not provided by Keyton within the units such as furniture and other decorative items. Keyton Realty (VIC) Pty Ltd ABN 55 124 646 484 of Level 45, Bourke Place, 600 Bourke Street, Melbourne VIC 3000.

Enquire Now

  • $290,000

  • 1
  • 0
  • 1
Under Offer

Bright and Fresh Retreat with Private Courtyard

You’ll be delighted by this beautifully refreshed one-bedroom apartment, perfectly positioned within Classic Residences. Boasting a north-facing aspect and a private fenced courtyard, this home offers both comfort and convenience. The open-plan living area includes a functional kitchenette with a cooktop, fridge, and microwave, while the spacious bedroom features a built-in wardrobe and ensuite with a walk-in shower. With new carpet, fresh paint, and year-round comfort from central heating and cooling, this apartment is ready to enjoy. Some of the key highlights of this apartment include: • Freshly painted with brand-new carpet • Bright north-facing aspect • Open-plan living and dining area • Functional kitchenette with cooktop, fridge and microwave • Spacious bedroom with built-in wardrobe • Ensuite bathroom with walk-in shower • Private, fenced-in courtyard • Central heating and air conditioning About Classic Residences by Keyton Classic Residences Brighton offers an elegant lifestyle crafted to ensure every detail caters to your comfort and enjoyment. Located just 15km southeast of Melbourne’s CBD, the retirement community is situated within easy access to public transport, shopping centres, medical services, and nearby parkland. Winner of the 2021 Blueforce Awards for Best Refurbishment, this contemporary retirement village is nestled amid manicured gardens, offering light-filled community spaces, exceptional amenities and an array of community activities and premium services. Classic Residences Retirement village highlights: • On-site café and restaurant • Fully equipped gym • Indoor heated pool and spa • Cinema • Convenience store • Craft and hobby facilities • Village bus for shopping and outings • 24-hour emergency call system You must be over 55 years of age to purchase a property at this retirement village. Don’t miss this opportunity to make this home your own. Enquire today and book a tour. Pricing, availability of services and facilities provided in the village advertised are correct at the time of listing, but subject to change without notice. Photographs are used for illustrative purposes. Some images depict items not provided by Keyton within the units such as furniture and other decorative items. Keyton Realty (VIC) Pty Ltd ABN 55 124 646 484 of Level 45, Bourke Place, 600 Bourke Street, Melbourne VIC 3000.

Enquire Now

  • $1,250,000

  • 2
  • 0
  • 2
Under Offer

Spacious Penthouse Level Apartment with Garden Views

Discover the ultimate in retirement living with this soon-to-be fully refurbished penthouse-level two-bedroom plus study, two-bathroom apartment at Classic Residences Brighton, offering bright, open spaces and lovely north garden views. Some of the key highlights of this apartment include: • Penthouse-level, east-facing apartment with abundant natural light • Soon-to-be refurbished with brand-new finishes throughout • Two generous bedrooms plus a versatile study space • Stylish new kitchen with stone benchtops and stainless steel appliances • Two well-appointed, brand-new bathrooms • Private balcony overlooking beautifully landscaped gardens • Laundry with ample storage solutions • Secure, peaceful setting ideal for relaxed retirement living About Classic Residences by Keyton Classic Residences Brighton offers an elegant lifestyle crafted to ensure every detail caters to your comfort and enjoyment. Located just 15km southeast of Melbourne’s CBD, the retirement community is situated within easy access to public transport, shopping centres, medical services, and nearby parkland. Winner of the 2021 Blueforce Awards for Best Refurbishment, this contemporary retirement village is nestled amid manicured gardens, offering light-filled community spaces, exceptional amenities and an array of community activities and premium services. Classic Residences Retirement village highlights: • On-site café and restaurant • Fully equipped gym • Indoor heated pool and spa • Cinema • Convenience store • Craft and hobby facilities • Village bus for shopping and outings • 24-hour emergency call system You must be over 55 years of age to purchase a property at this retirement village. Don’t miss this opportunity to make this home your own. Enquire today and book a tour. Pricing, availability of services and facilities provided in the village advertised are correct at the time of listing, but subject to change without notice. Photographs are used for illustrative purposes. Some images depict items not provided by Keyton within the units such as furniture and other decorative items. Keyton Realty (VIC) Pty Ltd ABN 55 124 646 484 of Level 45, Bourke Place, 600 Bourke Street, Melbourne VIC 3000.

Enquire Now

  • $360,000

  • 1
  • 0
  • 1
Under Offer

Charming Boutique Apartment with Garden Views – Enquire Today!

Ideally positioned at Classic Residences Brighton, this spacious one-bedroom, one-bathroom apartment features light-filled interiors and a private balcony that overlooks the community bowling green and stunning manicured gardens. Some of the key features of this apartment include: • Boutique style one bedroom apartment • Coveted east-facing orientation to enjoy the morning sun • Functional kitchenette with good storage • Delightful views of beautifully landscaped gardens. • Spacious open plan living and dining areas. • Excellent proximity to village amenities. • Main bedroom with in-built robe. • Ducted heating and cooling: • Car parking at additional fee About Classic Residences by Keyton Classic Residences Brighton offers an elegant lifestyle crafted to ensure every detail caters to your comfort and enjoyment. Located just 15km southeast of Melbourne’s CBD, the retirement community is situated within easy access to public transport, shopping centres, medical services, and nearby parkland. Winner of the 2021 Blueforce Awards for Best Refurbishment, this contemporary retirement village is nestled amid manicured gardens, offering light-filled community spaces, exceptional amenities and an array of community activities and premium services. Classic Residences Retirement village highlights: • On-site café and restaurant • Fully equipped gym • Indoor heated pool and spa • Cinema • Convenience store • Craft and hobby facilities • Village bus for shopping and outings • 24-hour emergency call system You must be over 55 years of age to purchase a property at this retirement village. Don’t miss this opportunity to make this home your own. Enquire today and book a tour. Pricing, availability of services and facilities provided in the village advertised are correct at the time of listing, but subject to change without notice. Photographs are used for illustrative purposes. Some images depict items not provided by Keyton within the units such as furniture and other decorative items. Keyton Realty (VIC) Pty Ltd ABN 55 124 646 484 of Level 45, Bourke Place, 600 Bourke Street, Melbourne VIC 3000.

Enquire Now

  • $795,000

  • 2
  • 0
  • 1
Under Offer

Modern and Bright Upper-Level Apartment – Enquire Today!

Live Fee Free for 12 Months!* Reserve on or before 31 March 2025 and settle by 30 June 2025 to be eligible. Limited Offer! *Terms and conditions apply. For full terms and conditions and to find out more call 1800 550 550 or enquire today! Welcome to this delightful north-facing apartment, perfectly situated in a vibrant retirement lifestyle locale of Classic Residences Brighton. Boasting an abundance of natural light from large windows, this modern, upper-level home offers a bright and airy ambiance. Key Highlights of this Apartment include; • Light and bright north facing apartment • Open plan living spaces for modern living • An inviting large balcony • Gourmet Kitchen featuring modern appliances and stone benchtops. • Generous sized bedrooms with built-in robes • Well-appointed main bathroom • Separate Powder Room • Ducted air conditioning About Classic Residences by Keyton Classic Residences Brighton offers an elegant lifestyle crafted to ensure every detail caters to your comfort and enjoyment. Located just 15km southeast of Melbourne’s CBD, the retirement community is situated within easy access to public transport, shopping centres, medical services, and nearby parkland. Winner of the 2021 Blueforce Awards for Best Refurbishment, this contemporary retirement village is nestled amid manicured gardens, offering light-filled community spaces, exceptional amenities and an array of community activities and premium services. Classic Residences Retirement village highlights: • On-site café and restaurant • Fully equipped gym • Indoor heated pool and spa • Cinema • Convenience store • Craft and hobby facilities • Village bus for shopping and outings • 24-hour emergency call system You must be over 55 years of age to purchase a property at this retirement village. Don’t miss this opportunity to make this home your own. Enquire today and book a tour. Pricing, availability of services and facilities provided in the village advertised are correct at the time of listing, but subject to change without notice. Photographs are used for illustrative purposes. Some images depict items not provided by Keyton within the units such as furniture and other decorative items. Keyton Realty (VIC) Pty Ltd ABN 55 124 646 484 of Level 45, Bourke Place, 600 Bourke Street, Melbourne VIC 3000.

Enquire Now

  • $995,000

  • 2
  • 1
  • 1

Renovated Villa at Classic Residences Brighton – Contact Sales Manager

Live Fee Free for 12 Months!* Reserve on or before 31 March 2025 and settle by 30 June 2025 to be eligible. Limited Offer! *Terms and conditions apply. For full terms and conditions and to find out more call 1800 550 550 or enquire today! This two-bedroom villa at Classic Residences Brighton is soon to undergo a renovation that will offer the perfect combination of modern amenities and timeless charm. Don't miss the opportunity to make this villa your own! Contact us today to enquire about this inviting home. Key highlights of this villa include; • A comprehensive interior renovation starting soon • Spacious open-plan living ideal for relaxation and entertaining • Split system air conditioning complements the living spaces • Brand new Kitchen with the latest amenities • Two generous sized bedrooms with built in robes • Modern bathroom and powder room • Delightful fully fenced outdoor area • Private garden • Single lock-up garage. About Classic Residences by Keyton Classic Residences Brighton offers an elegant lifestyle crafted to ensure every detail caters to your comfort and enjoyment. Located just 15km southeast of Melbourne’s CBD, the retirement community is situated within easy access to public transport, shopping centres, medical services, and nearby parkland. Winner of the 2021 Blueforce Awards for Best Refurbishment, this contemporary retirement village is nestled amid manicured gardens, offering light-filled community spaces, exceptional amenities and an array of community activities and premium services. Classic Residences Retirement village highlights: • On-site café and restaurant • Fully equipped gym • Indoor heated pool and spa • Cinema • Convenience store • Craft and hobby facilities • Village bus for shopping and outings • 24-hour emergency call system You must be over 55 years of age to purchase a property at this retirement village. Don’t miss this opportunity to make this home your own. Enquire today and book a tour. Pricing, availability of services and facilities provided in the village advertised are correct at the time of listing, but subject to change without notice. Photographs are used for illustrative purposes. Some images depict items not provided by Keyton within the units such as furniture and other decorative items. Keyton Realty (VIC) Pty Ltd ABN 55 124 646 484 of Level 45, Bourke Place, 600 Bourke Street, Melbourne VIC 3000.

Enquire Now

  • $1,200,000

  • 2
  • 1
  • 2
Under Offer

Fully Refurbished Two-Bedroom Plus Study Villa in Prime Location!

Embrace the ultimate retirement lifestyle at Classic Residences with this fully refurbished two-bedroom plus study and two-bathroom villa. Perfectly positioned on Brewer Road, this stunning villa offers luxurious living with private front and rear gardens, and modern amenities throughout. Some of the key highlights of this villa include: • Sought-after location on Brewer Road • Spacious open-plan living and dining areas • Fully refurbished with contemporary finishes • Brand new, designer kitchen and bathrooms • Master bedroom with ensuite and built in robe • Separate study or third bedroom for added versatility • Private front and rear gardens, perfect for relaxation • Separate laundry with generous storage • Single garage with convenient access About Classic Residences by Keyton Classic Residences Brighton offers an elegant lifestyle crafted to ensure every detail caters to your comfort and enjoyment. Located just 15km southeast of Melbourne’s CBD, the retirement community is situated within easy access to public transport, shopping centres, medical services, and nearby parkland. Winner of the 2021 Blueforce Awards for Best Refurbishment, this contemporary retirement village is nestled amid manicured gardens, offering light-filled community spaces, exceptional amenities and an array of community activities and premium services. Classic Residences Retirement village highlights: • On-site café and restaurant • Fully equipped gym • Indoor heated pool and spa • Cinema • Convenience store • Craft and hobby facilities • Village bus for shopping and outings • 24-hour emergency call system You must be over 55 years of age to purchase a property at this retirement village. Don’t miss this opportunity to make this home your own. Enquire today and book a tour. Pricing, availability of services and facilities provided in the village advertised are correct at the time of listing, but subject to change without notice. Photographs are used for illustrative purposes. Some images depict items not provided by Keyton within the units such as furniture and other decorative items. Keyton Realty (VIC) Pty Ltd ABN 55 124 646 484 of Level 45, Bourke Place, 600 Bourke Street, Melbourne VIC 3000.

Enquire Now

  • $1,200,000

  • 2
  • 1
  • 2
Under Offer

Spacious, North-Facing Villa in Classic Residences Brighton – Contact Sales Manager

Anticipate luxury retirement living in this soon-to-be refurbished villa at Classic Residences Brighton, featuring two bedrooms plus a study, and two bathrooms. This home will include a contemporary new kitchen, upscale bathrooms, and a fresh interior décor. Enquire Today! Some of the key highlights of this Villa include; • Prestige position within Classic Residences Brighton • Internal access single garage • Pending full refurbishment • Modern kitchen with new appliances • Two spacious bedrooms, master with ensuite • Separate study or optional third bedroom • Private front and rear gardens • Fully paved, secluded rear courtyard • Separate laundry with ample storage • Ensuite and main bathroom fully updated About Classic Residences by Keyton Classic Residences Brighton offers an elegant lifestyle crafted to ensure every detail caters to your comfort and enjoyment. Located just 15km southeast of Melbourne’s CBD, the retirement community is situated within easy access to public transport, shopping centres, medical services, and nearby parkland. Winner of the 2021 Blueforce Awards for Best Refurbishment, this contemporary retirement village is nestled amid manicured gardens, offering light-filled community spaces, exceptional amenities and an array of community activities and premium services. Classic Residences Retirement village highlights: • On-site café and restaurant • Fully equipped gym • Indoor heated pool and spa • Cinema • Convenience store • Craft and hobby facilities • Village bus for shopping and outings • 24-hour emergency call system You must be over 55 years of age to purchase a property at this retirement village. Don’t miss this opportunity to make this home your own. Enquire today and book a tour. Pricing, availability of services and facilities provided in the village advertised are correct at the time of listing, but subject to change without notice. Photographs are used for illustrative purposes. Some images depict items not provided by Keyton within the units such as furniture and other decorative items. Keyton Realty (VIC) Pty Ltd ABN 55 124 646 484 of Level 45, Bourke Place, 600 Bourke Street, Melbourne VIC 3000.

Enquire Now

  • $485,000 - $995,000

  • 2
  • 0
  • 2

Luxurious and spacious independent living apartments at Classic Residences

Embrace the best in retirement living with our expansive Independent Living Apartments in the esteemed Classic Residences. Offering a wonderful blend of classic style and contemporary design, these apartments are perfect for those seeking comfort and a prime location. Key Highlights of our Independent Living Apartments include: • Spacious open plan living layouts • Contemporary kitchen, with quality appliances • Depending on the property, you can get a spacious balcony for outdoor relaxation and entertainment. • Parking available for an additional fee • Choice between one bedroom plus study or two bedrooms • Sizes ranging from 61 sqm - 117 sqm. About Classic Residences by Keyton Classic Residences Brighton offers an elegant lifestyle crafted to ensure every detail caters to your comfort and enjoyment. Located just 15km southeast of Melbourne’s CBD, the retirement community is situated within easy access to public transport, shopping centres, medical services, and nearby parkland. Winner of the 2021 Blueforce Awards for Best Refurbishment, this contemporary retirement village is nestled amid manicured gardens, offering light-filled community spaces, exceptional amenities and an array of community activities and premium services. Classic Residences Retirement village highlights: • On-site café and restaurant • Fully equipped gym • Indoor heated pool and spa • Cinema • Convenience store • Craft and hobby facilities • Village bus for shopping and outings • 24-hour emergency call system You must be over 55 years of age to purchase a property at this retirement village. Don’t miss this opportunity to make this home your own. Enquire today and book a tour. *Photographs are for illustrative purposes. Some images may depict items not provided by Keyton within the units such as furniture and other decorative items.

Enquire Now

Apartment

Boutique Apartments

  • $260,000 - $490,000

  • 1
  • 0
  • 1

Serene and Modern Boutique Apartments at Classic Residences

Seize the opportunity to reside in our stylish and elegant Boutique Apartments at Classic Residences, boasting a strong design in a premium location. Ideal for a relaxed and low-maintenance retirement, our Boutique Apartments are bathed in natural light with an open plan living arrangement, providing you a warm and welcoming atmosphere. Some of the key features of our Boutique apartment include: • Spacious open plan layout for independent living • Modern kitchenette with ample storage • Generous bathroom with accessible walk-in shower • Ideal for relaxed, modern retirement • Perfectly located in sought-after Classic Residences • Perfect blend of style and functionality • Light-filled, spacious interiors • Choice between one bedroom, one bedroom plus study or two bedrooms • Sizes ranging from 37 sqm - 74 sqm. About Classic Residences by Keyton Classic Residences Brighton offers an elegant lifestyle crafted to ensure every detail caters to your comfort and enjoyment. Located just 15km southeast of Melbourne’s CBD, the retirement community is situated within easy access to public transport, shopping centres, medical services, and nearby parkland. Winner of the 2021 Blueforce Awards for Best Refurbishment, this contemporary retirement village is nestled amid manicured gardens, offering light-filled community spaces, exceptional amenities and an array of community activities and premium services. Classic Residences Retirement village highlights: • On-site café and restaurant • Fully equipped gym • Indoor heated pool and spa • Cinema • Convenience store • Craft and hobby facilities • Village bus for shopping and outings • 24-hour emergency call system You must be over 55 years of age to purchase a property at this retirement village. Don’t miss this opportunity to make this home your own. Enquire today and book a tour. *Photographs are for illustrative purposes. Some images may depict items not provided by Keyton within the units such as furniture and other decorative items.

Enquire Now

Property Overview

Snapshot

Number of Dwellings 375
Type of Dwellings Low-Rise Development
Medium-Rise Development
Year Established 2007

Location

Property Features

Recreational Facilities

  • Commercial kitchen
  • Golf club nearby
  • Outdoor bowling green
  • Community centre
  • Gymnasium
  • Art studio
  • BBQ area/s
  • Library
  • Workshop
  • Indoor heated pool
  • Residents lounge
  • Indoor bowls area
  • Woodwork area
  • Billiards room
  • Computer room
  • Chapel
  • Croquet lawn

Amenities

  • Hairdresser
  • Cafe on-site
  • Walk to shops
  • General store / shop on-site
  • Village bus
  • Beauty Salon
  • Walk to transport

Pet Policy

  • Pet Policy Not Specific

Level of Support

  • 24hr Medical Alert External
  • Gym, Rehab or Wellness Centre
  • Personal Care Internal

Garages / Carports

  • 1 Car Garage
  • 2 Car Garage

Management

  • On-site manager
  • Residents committee
  • Resident front gate / lobby monitor
  • CCTV security

Accommodation Type

  • Retirement Village

About this Property

Classic Residences

The Community

Experience a contemporary and luxurious retirement lifestyle at Classic Residences that is conveniently located with easy access to public transport, shopping centres, medical services, beautiful parks, and a public golf course.

Explore our range of 1,2, and 3-bedroom apartments and villas available for sale, along with our Boutique Apartments, which provides the comfort you are looking for in retirement.

Winner of the 2021 Blueforce Award for Best Refurbishment, Classic Residences is nestled amid manicured gardens and offers exceptional amenities, light-filled community spaces, and an array of community activities and premium services.

Discover the elegant lifestyle awaiting you at Classic Residences.

Features:

  • On-site café and restaurant

  • Fully equipped gym

  • Indoor heated pool and spa

  • Cinema

  • Convenience store

  • Craft and hobby facilities

  • Village bus for shopping and outings

  • 24-hour emergency call system

  • Hair and beauty salon

  • On-site Health and Wellbeing Coordinator

Enquire Now

Keyton

The Operator

Your confident choice.

Introducing Keyton.

While our name may have changed, many things are staying the same. Like the connectedness of our communities. The quality of our homes. And the passion of our people.

  • A leading owner and operator of retirement villages in Australia.
  • A fresh take on 30 years’ experience.
  • 76 villages in urban, regional and coastal settings.
  • Same team. Same confident choice.

Ready for your next adventure?

Enjoy all the confidence that comes when you choose to make it with Keyton.

View all villages and aged care facilities of Keyton

Make an Enquiry

Don't miss out!

Contact the operator of Classic Residences

  • Please do not send job applications on this form. Looking for work? Submit here.

This site is protected by reCAPTCHA and the Google Privacy Policy and Terms of Service apply.

More properties from Keyton

Menzies Malvern, Malvern

Retirement Village

124 Dwellings

Retirement Village, On-site manager, Residents committee, Resident front gate / lobby monitor, CCTV security, Hairdresser, Walk to shops, Beauty Salon, Walk to transport

Waverley Country Club, Rowville

Retirement Village

84 Dwellings

Retirement Village, On-site manager, Residents committee, CCTV security, Hairdresser, Cafe on-site, Walk to shops, Village bus, Beauty Salon, Walk to transport

Subscribe to our fortnightly newsletter

Our fortnightly newsletter brings you all the tips and tricks you need for a successful retirement, covering everything from finances and property, to health and happiness. Get prepared and sign up here.