1. Home
  2. Retirement Villages
  3. VIC
  4. Murray
  5. West Wodonga

Aspen Lifestyle Wodonga Gardens , Land Lease Community, West Wodonga

2 Flinders Way West Wodonga, VIC, 3690

3.5
85
2018

Wellbeing

Mental

This scored 62%

Social

This scored 73%

Physical

This scored 57%

Operations

This scored 69%

Financial

This scored 54%

6

Available

  • $475,000

  • 3
  • 1
  • 2

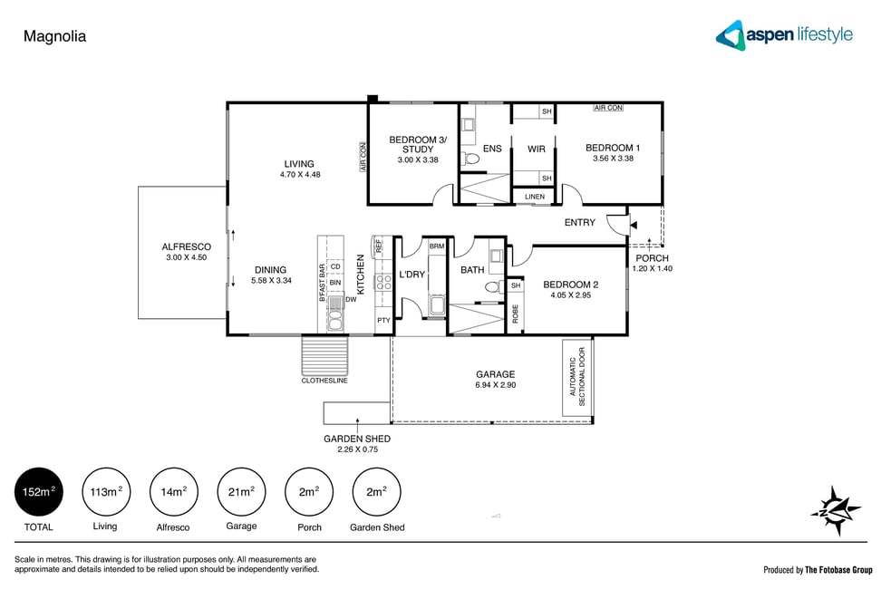
New Build | 3 Bed Magnolia Design

Introducing the Magnolia, a 3 bedroom home featuring a large master bedroom with a walk-in wardrobe leading to an ensuite. This well-designed residence includes two additional bedrooms, a spacious bathroom and a separate laundry. The large open-plan kitchen and living area provides a pleasant communal space that opens onto a large entertaining deck set among manicured lawns. Features include: - Modern kitchen equip with Westinghouse appliances - Silicone free benchtops - Master bedroom and ensuite - Built in robes - Separate laundry - Entertaining deck - Low maintenance front and rear garden - Garden shed - Direct garage entry - Broadband - Reverse cycle air conditioning - Ceiling fans - Automatic sectional garage door - Solar - Heat Pump Water - Gas free home or electric appliances Ideally located in West Wodonga, Aspen Lifestyle Wodonga offers the perfect setting for an over-50s land lease community, set against the picturesque backdrop of the West Wodonga Hills. Residents enjoy access to a variety of communal facilities, including a large Clubhouse with a expansive kitchen, library, social bar, gym, and pool table. The village also features a tree-lined nature reserve, community garden and BBQ area. Designed with a variety of amenities, Aspen Lifestyle Wodonga provides opportunities to socialise, relax and enjoy life. Additionally, the gated entrance adds an extra layer of security for residents. A key attraction of Aspen Lifestyle homes is the high-quality construction. The master-built homes offer residents a variety of design options with light-filled, practical floor plans and quality finishes. Aspen ensures the homes meet residents' needs now and in the future. All homes are designed and built with aging considered, providing security and peace of mind. Discover the further advantages of land lease living with no exit fees, no stamp duty, no council rates, affordable site rental fees and eligibility for government rental assistance. Currently under construction, with build completion expected in the first quarter of 2025. Please note that images and floor plans are for indicative purposes to provide a visual representation of the house design. Colours and finishes are subject to change. Contact Marney at 0418 428 272 for more information and to arrange an inspection of our display home.

Enquire Now

  • $465,000

  • 3
  • 2
  • 2

New Build | 3 Bed Willow Design

A popular design, the Willow II is a thoughtfully curated 3 bedroom home, complemented by a large double carport. The well-appointed home features well-proportioned rooms with a contemporary feel throughout. This open-plan residence enjoys a modern kitchen with stainless steel appliances and stone benchtops. The entertaining space extends to an outdoor deck set among a private garden. Features include: - Modern kitchen equip with Westinghouse appliances - Silicone free benchtops - Master bedroom and ensuite - Built in robes - Separate laundry - Entertaining deck - Low maintenance front and rear garden - Garden shed - Direct garage entry - Broadband - Reverse cycle air conditioning - Ceiling fans - Automatic sectional garage door - Solar - Heat Pump Water - Gas free home or electric appliances Ideally located in West Wodonga, Aspen Lifestyle Wodonga offers the perfect setting for an over-50s land lease community, set against the picturesque backdrop of the West Wodonga Hills. Residents enjoy access to a variety of communal facilities, including a large Clubhouse with a expansive kitchen, library, social bar, gym, and pool table. The village also features a tree-lined nature reserve, community garden and BBQ area. Designed with a variety of amenities, Aspen Lifestyle Wodonga provides opportunities to socialise, relax and enjoy life. Additionally, the gated entrance adds an extra layer of security for residents. A key attraction of Aspen Lifestyle homes is the high-quality construction. The master-built homes offer residents a variety of design options with light-filled, practical floor plans and quality finishes. Aspen ensures the homes meet residents' needs now and in the future. All homes are designed and built with aging considered, providing security and peace of mind. Discover the further advantages of land lease living with no exit fees, no stamp duty, no council rates, affordable site rental fees and eligibility for government rental assistance. Please note that images and floor plans are for indicative purposes to provide a visual representation of the house design. Colours and finishes are subject to change. Contact Marney at 0418 428 272 for more information and to arrange an inspection of our display home.

Enquire Now

  • $399000

  • 2
  • 1
  • 1

New Build | 2 Bed Karuah Design

Discover the Karuah home, a stylish and thoughtfully designed 2-bedroom home filled with natural light and open-plan living. This brand-new residence offers spacious bedrooms, a separate laundry with a second toilet, a carport with internal access, and beautifully landscaped, low-maintenance gardens. Home Features: • Light-filled combined living and dining area • Modern kitchen with full pantry, stone benchtops, and dishwasher • Silicone free benchtops • Two bedrooms with built-in wardrobes • Large bathroom with walk-in shower • Separate laundry with second toilet • Split system air conditioning & ceiling fans • Carport with internal home access • Landscaped patio, garden shed, and clothesline • Energy-efficient insulation & 1.5kW solar system • Premium window and flooring finishes less Ideally located in West Wodonga, Aspen Lifestyle Wodonga offers the perfect setting for an over-50s land lease community, set against the picturesque backdrop of the West Wodonga Hills. Residents enjoy access to a variety of communal facilities, including a large Clubhouse with a expansive kitchen, library, social bar, gym, and pool table. The village also features a tree-lined nature reserve, community garden and BBQ area. Designed with a variety of amenities, Aspen Lifestyle Wodonga provides opportunities to socialise, relax and enjoy life. Additionally, the gated entrance adds an extra layer of security for residents. A key attraction of Aspen Lifestyle homes is the high-quality construction. The master-built homes offer residents a variety of design options with light-filled, practical floor plans and quality finishes. Aspen ensures the homes meet residents' needs now and in the future. All homes are designed and built with aging considered, providing security and peace of mind. Discover the further advantages of land lease living with no exit fees, no stamp duty, no council rates, affordable site rental fees and eligibility for government rental assistance. This design is currently under construction and are due to be complete in third quarter of 2025. Please note that images and floor plans are for indicative purposes to provide a visual representation of the house design. Colours and finishes are subject to change. Contact Marney at 0418 428 272 for more information

Enquire Now

House

158/2 Flinders Way, West Wodonga VIC 3690

  • $525,000

  • 3
  • 2
  • 2

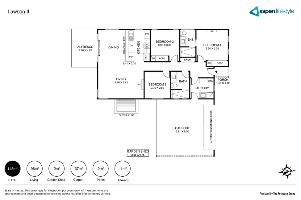
Light-filled 3-bed home | Lawson Design

The Lawson II presents a desirable 3 bedroom home designed for modern living.

This open-plan residence boasts a contemporary kitchen with a large breakfast bar, overlooking an outdoor entertaining deck that leads to a manicured garden.

The spacious home features a primary bedroom with an ensuite and built-in robe, a separate laundry, a secondary bathroom and a double carport.

Ideally located in West Wodonga, Aspen Lifestyle Wodonga offers the perfect setting for an over-50s land lease community, set against the picturesque backdrop of the West Wodonga Hills.

Residents enjoy access to a variety of communal facilities, including a large Clubhouse with a expansive kitchen, library, social bar, gym, and pool table. The village also features a tree-lined nature reserve, community garden and BBQ area. Designed with a variety of amenities, Aspen Lifestyle Wodonga provides opportunities to socialise, relax and enjoy life. Additionally, the gated entrance adds an extra layer of security for residents.

A key attraction of Aspen Lifestyle homes is the high-quality construction. The master-built homes offer residents a variety of design options with light-filled, practical floor plans and quality finishes. Aspen ensures the homes meet residents’ needs now and in the future. All homes are designed and built with aging considered, providing security and peace of mind.

Discover the further advantages of land lease living with no exit fees, no stamp duty, no council rates, affordable site rental fees and eligibility for government rental assistance.

Currently under construction, with build completion expected in the third quarter of 2025.

Please note that images and floor plans are for indicative purposes to provide a visual representation of the house design. Colours and finishes are subject to change.

Contact Marney Twitt at 0418 428 272 for more information and to arrange an inspection of our display home.

Features:
  • Modern kitchen equip with Westinghouse appliances

  • Silicone free benchtops

  • Master bedroom and ensuite

  • Built in robes

  • Modern kitchen

  • Reverse cycle air conditioning

  • Separate laundry

  • Entertaining deck

  • Front & rear landscaping

  • Direct Garage entrance

  • Automatic garage door

  • Broadband

  • Storage

  • Ceiling fans

  • Solar

Enquire Now

House

156/2 Flinders Way, West Wodonga VIC 3690

  • $435,000

  • 2
  • 1
  • 1

Modern 2-bed home | Wattle Design

Introducing the Wattle design, a light-filled 2-bedroom home with a practical floor plan and generous proportions.

Entering the home, you are greeted by a master bedroom with an ensuite and built-in robe, followed by a secondary bedroom, and a separate laundry with a toilet. The home unfolds into a spacious open-plan kitchen and living area.

An outdoor alfresco deck provides additional entertaining space, complemented by a private garden. The exterior includes a single carport and garden shed.

Ideally located in West Wodonga, Aspen Lifestyle Wodonga offers the perfect setting for an over-50s land lease community, set against the picturesque backdrop of the West Wodonga Hills.

Residents enjoy access to a variety of communal facilities, including a large Clubhouse with a expansive kitchen, library, social bar, gym, and pool table. The village also features a tree-lined nature reserve, community garden and BBQ area. Designed with a variety of amenities, Aspen Lifestyle Wodonga provides opportunities to socialise, relax and enjoy life. Additionally, the gated entrance adds an extra layer of security for residents.

A key attraction of Aspen Lifestyle homes is the high-quality construction. The master-built homes offer residents a variety of design options with light-filled, practical floor plans and quality finishes. Aspen ensures the homes meet residents’ needs now and in the future. All homes are designed and built with aging considered, providing security and peace of mind.

Discover the further advantages of land lease living with no exit fees, no stamp duty, no council rates, affordable site rental fees and eligibility for government rental assistance.

Currently under construction, with build completion expected in the third quarter of 2025.

Please note that images and floor plans are for indicative purposes to provide a visual representation of the house design. Colours and finishes are subject to change.

Contact Marney at 0418 428 272 for more information and to arrange an inspection of our display home.

Features:
  • Modern kitchen equip with Westinghouse appliances

  • Silicone free benchtop

  • Master bedroom and ensuite

  • Built in robes

  • Modern kitchen

  • Reverse cycle air conditioning

  • Separate laundry

  • Entertaining deck

  • Front & rear landscaping

  • Direct Garage entrance

  • Automatic garage door

  • Broadband

  • Storage

  • Ceiling fans

  • Solar

Enquire Now

House

94/2 Flinders Way, West Wodonga VIC 3690

  • $475,000

  • 3
  • 1
  • 2

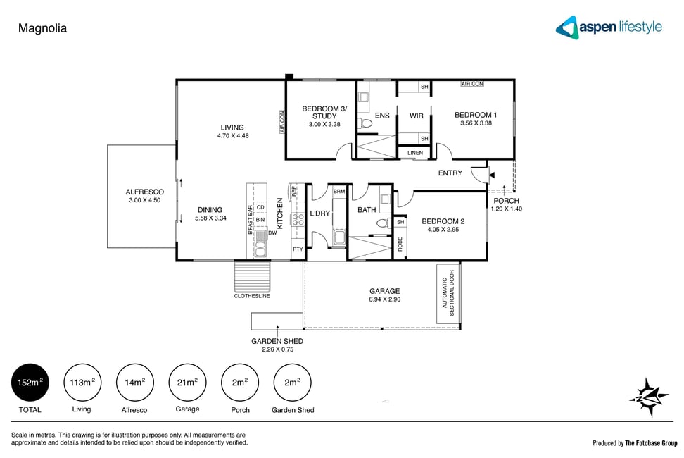
Move-in ready, available now

Introducing the Magnolia, a move-in ready 3 bedroom home featuring a large master bedroom with a walk-in wardrobe leading to an ensuite.

This well-designed residence includes two additional bedrooms, a spacious bathroom and a separate laundry.

The large open-plan kitchen and living area provides a pleasant communal space that opens onto a large entertaining deck set among manicured lawns.

Ideally located in West Wodonga, Aspen Lifestyle Wodonga offers the perfect setting for an over-50s land lease community, set against the picturesque backdrop of the West Wodonga Hills.

Residents enjoy access to a variety of communal facilities, including a large Clubhouse with a expansive kitchen, library, social bar, gym, and pool table. The village also features a tree-lined nature reserve, community garden and BBQ area. Designed with a variety of amenities, Aspen Lifestyle Wodonga provides opportunities to socialise, relax and enjoy life. Additionally, the gated entrance adds an extra layer of security for residents.

A key attraction of Aspen Lifestyle homes is the high-quality construction. The master-built homes offer residents a variety of design options with light-filled, practical floor plans and quality finishes. Aspen ensures the homes meet residents’ needs now and in the future. All homes are designed and built with aging considered, providing security and peace of mind.

Discover the further advantages of land lease living with no exit fees, no stamp duty, no council rates, affordable site rental fees and eligibility for government rental assistance.

Please note that images and floor plans are for indicative purposes to provide a visual representation of the house design. Colours and finishes are subject to change.

Contact Marney at 0418 428 272 for more information and to arrange an inspection of our display home.

Features:
  • Modern kitchen equip with Westinghouse appliances

  • Silicone free benchtop

  • Master bedroom and ensuite

  • Built in robes

  • Internal laundry

  • Entertaining deck

  • Low maintenance front and rear garden

  • Garden shed

  • Direct garage entry

  • Broadband

  • Reverse cycle air conditioning

  • Ceiling fans

  • Automatic sectional garage door

  • Solar

  • Heat Pump Water

  • Gas free home or electric appliances

Enquire Now

Property Overview

Snapshot

Type of Dwellings Low-Rise Development
Minimum Dwelling Price $399,000.00
Maximum Dwelling Price $525,000.00

Location

Property Features

Recreational Facilities

  • Cinema
  • Community centre
  • Gymnasium
  • Library
  • Workshop
  • Residents lounge
  • Indoor bowls area
  • Meeting Room
  • Community kitchen
  • Billiards room
  • Walking tracks

Amenities

  • Hairdresser
  • Bar (unlicensed)
  • Vegetable gardens
  • Storage for boat / caravans
  • High-speed broadband

Pet Policy

  • Pets Allowed

Level of Support

  • 24hr Medical Alert External

Garages / Carports

  • 1 Car Garage
  • 2 Car Garage
  • Carport

Independence

  • Direct Garage Access
  • Adaptable Bathroom
  • Secure Estate
  • Level access

Management

  • On-site manager
  • Residents committee

Accommodation Type

  • Over 55s Development

Contractual Arrangements

  • Buy
  • Land Lease

About this Property

Aspen Lifestyle Wodonga Gardens

The Community

Move-in Ready Homes - Available Now

Discover a low-Maintenace, relaxed lifestyle at Wodonga Gardens, located within a warm and welcoming over 50s community. Surrounded by picturesque hills and breathtaking natural landscapes, our village offers the perfect setting to enjoy your morning tea or coffee in peace. At Wodonga Gardens, we provide both land lease and retirement living options, so you can choose the lifestyle that best suits your needs.

Clubhouse Redevelopment

Residents at Wodonga Gardens will soon enjoy a newly developed clubhouse, thoughtfully designed to provide a social hub brining everyone together to enhance overall wellbeing.

Subject to council approval, the new facility will feature:

  • Dog park

  • Bowling green

  • Pickleball court

  • Outdoor pool

  • BBQ shelter

This impressive new clubhouse adds a vibrant atmosphere to the village, supporting our ongoing commitment to fostering connection and enhancing mental and social wellbeing. Residents already have access to a fitness centre, activity room, lounge area, salon and bar.

*image is for illustrative purposes only and may not accurately represent the final development. All designs, finishes and landscaping are subject to council approval.

Homes Designed to Last a Lifetime

At Wodonga Gardens, you’ll find more than just a home, you’ll discover a lifestyle designed for comfort, community, and peace of mind. This welcoming over 50s village offers thoughtfully designed homes for easy, low-maintenance living now and into the future.

Our light-filled homes feature practical layouts and quality finishes. Whether you’re enjoying a quiet morning coffee or entertaining friends, your home is built to support a relaxed, enjoyable lifestyle.

Every beautifully appointed home includes:

  • Seamless indoor/outdoor living with alfresco area

  • High ceilings and spacious, open-plan interiors

  • Split system air-conditioning

  • Remote-controlled garage with internal access

  • Private, low-maintenance backyard

  • All-electric appliances and energy-efficient features to help reduce your household bills

Wodonga Gardens is part of the Aspen Group, known for its high-quality builds and commitment to designing homes that support aging in place. With both land lease and retirement living options available, you can choose the path that best suits your lifestyle and future plans.

Enquire Now

Make an Enquiry

Don't miss out!

Contact the operator of Aspen Lifestyle Wodonga Gardens

  • Please do not send job applications on this form. Looking for work? Submit here.

This site is protected by reCAPTCHA and the Google Privacy Policy and Terms of Service apply.

More properties from Aspen Group

Aspen Lifestyle Sweetwater Grove, Tomago

Land Lease Community

Dwellings

On-site manager, Residents committee

Aspen Lifestyle Strathalbyn, Strathalbyn

Land Lease Community

Dwellings

Over 55s Development, On-site manager, Residents committee

Aspen Lifestyle Meadowbrooke, Boyanup

Land Lease Community

Dwellings

On-site manager, Residents committee

Subscribe to our fortnightly newsletter

Our fortnightly newsletter brings you all the tips and tricks you need for a successful retirement, covering everything from finances and property, to health and happiness. Get prepared and sign up here.