1. Home
  2. Retirement Villages
  3. SA
  4. Adelaide
  5. Leabrook

ECH Norgrove Lodge, Retirement Village, Leabrook

13 Phillip Avenue Leabrook, SA, 5068

1

Available

Independent Living Unit

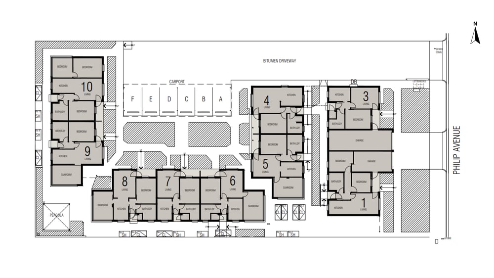
Leabrook – Unit 5 Norgrove Lodge

  • 395,000

  • 2
  • 1
  • 1
Under Offer

Live Life Your Way at Leabrook Independent Living

Discover the simplicity of independent living in this thoughtfully appointed two – bedroom unit at unit 5, Norgrove Lodge, Leabrook. The second bedroom currently styled as a sunroom, offers bright and versatile space perfect for relaxation or hobbies. Embrace comfort, community and convenience in a tranquil village setting where every details designed to support a relaxed and low maintenance lifestyle.

Unit Features

  • Two Spacious Bedrooms: Offering plenty of room for rest and relaxation

  • Built-in Wardrobe: Ample storage in the main bedroom

  • Open Plan Living: Spacious kitchen, dining and lounge area

  • Comfortable Flooring: Carpeted bedrooms and hardwood floors in living areas

  • Convenient Amenities: Combined bathroom and laundry

  • Climate Control: Air-conditioning for year-round comfort

Village Features

  • Tranquil Suburban Setting: Experience peaceful living in a leafy suburb while being close to the city

  • Proximity to Amenities: Nearby shopping centres, medical facilities, and essential services

  • Beautiful Parks and Green Spaces: Ideal for leisurely walks and outdoor activities

  • Easy access to public transport: with nearby bus stop and train station

Don’t miss your opportunity to live in this beautifully maintained and incredibly convenient unit in Leabrook. It’s time to get MORE out of life and experience the ease and accessibility this location offers.

Don’t just retire, thrive!

ECH Retirement Living | Get MORE out of life

Contact us at 8159 4700 for more information.

*Price subject to change. Property subject to availability.

Photos are for illustrative purposes only. Some images may show items not included with the property, such as furniture and décor.

Enquire Now

Property Overview

Snapshot

Number of Dwellings 9
Type of Dwellings Low-Rise Development
Year Established 0
Minimum Dwelling Price $0.00
Maximum Dwelling Price $0.00

Location

Property Features

Amenities

  • Walk to shops
  • Walk to transport

Pet Policy

  • Pet Policy Not Specific

Accommodation Type

  • Retirement Village

Contractual Arrangements

  • Leasehold & License

About this Property

ECH Norgrove Lodge

The Community

ABOUT ECH

Enjoy the freedom, friendships and security that comes from living in an ECH retirement village.

Trusted since 1964, not-for-profit provider ECH offers quality retirement living options for South Australians 65 years and over. Experience the best lifestyle possible without the worry of maintaining your home and garden; and the burden of managing council rates, water rates and long term repairs to your home.

Situated in the long established leafy Eastern suburbs, this village is close to transport and shopping options.

Enquire Now

Make an Enquiry

Don't miss out!

Contact the operator of ECH Norgrove Lodge

  • Please do not send job applications on this form. Looking for work? Submit here.

This site is protected by reCAPTCHA and the Google Privacy Policy and Terms of Service apply.

More properties from ECH

ECH Almond Grove Retirement Village, Morphett Vale

Retirement Village

Dwellings

Retirement Village

ECH Arch Prime Lodge, Myrtle Bank

Retirement Village

20 Dwellings

Retirement Village, Walk to shops, Walk to transport

ECH Ardrossan Retirement Estate, Ardrossan

Retirement Village

14 Dwellings

Retirement Village, Walk to shops, Walk to transport

Subscribe to our fortnightly newsletter

Our fortnightly newsletter brings you all the tips and tricks you need for a successful retirement, covering everything from finances and property, to health and happiness. Get prepared and sign up here.