1. Home
  2. Retirement Villages
  3. SA
  4. Adelaide
  5. Myrtle Bank

ECH Arch Prime Lodge, Retirement Village, Myrtle Bank

472 Fullarton Road Myrtle Bank, SA, 5064

1

Available

Independent Living Unit

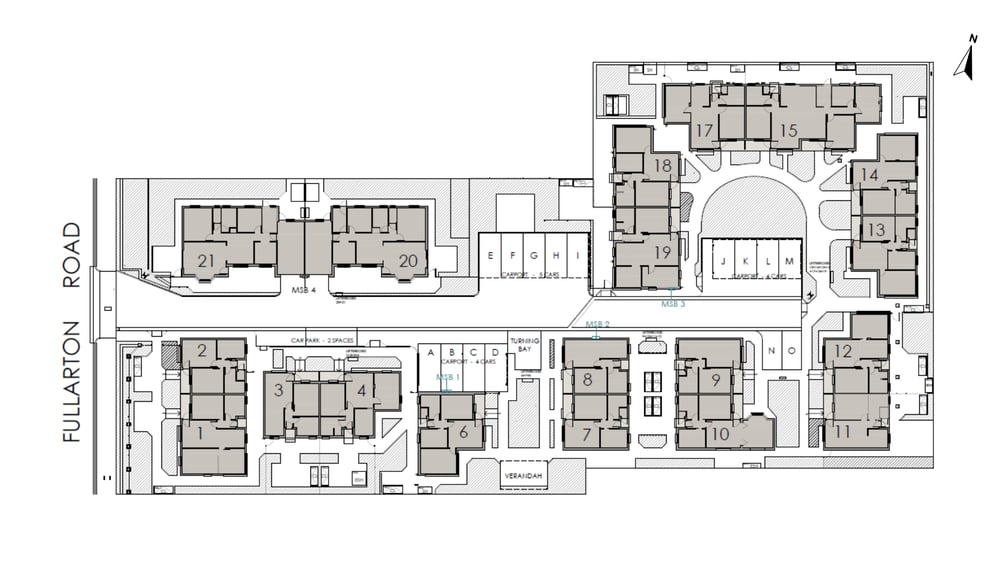
Myrtle Bank - Unit 12 Arch Prime Lodge

  • Contact Agent

  • 2
  • 1
  • 1

Graceful Retirement Living in Myrtle Bank

Step into Unit 12 Arch Prime Lodge where thoughtful upgrades and a peaceful setting create the perfect environment for independent retirement living. Nestled among the tree lined streets of Myrtle Bank, this charming two bedroom home offers comfort, security and the freedom to enjoy life at your own pace.

Unit Features

  • Open Plan Design: Spacious living areas perfect for relaxation and entertaining

  • Glossy Kitchen: A sleek, low-maintenance kitchen with ample storage and counter space

  • Floating Floorboards: Easy to clean and stylish flooring in the living areas

  • Carpeted Bedrooms: Cosy, spacious bedrooms with built in robes for ample storage

  • Bathroom with Laundry: Convenient and efficient design for everyday living

  • Block-Out Blinds: Ensure privacy with block-out blinds throughout

  • Split System Air Conditioning: Stay Comfortable year-round with a reverse cycle air conditioner

Village Features

  • Communal Garden: Offers a shared, peaceful outdoor space for residents to relax and enjoy nature.

  • Convenient Location: Ideally situated near public transport for easy access to the city and surrounding areas

  • Proximity to Shops: A short stroll to the nearest supermarket ensures all your essentials are within reach

  • Secure Village: Experience peace of mind within a safe and friendly retirement community

Don’t miss your opportunity to live in this beautifully maintained and incredibly convenient unit in Myrtle Bank. It’s time to get MORE out of life and experience the ease and accessibility this location offers.

Don’t just retire, thrive!

ECH Retirement Living | Get MORE out of life

Contact us at 8159 4700 for more information.

*Price subject to change. Property subject to availability.

Photos are for illustrative purposes only. Some images may show items not included with the property, such as furniture and décor.

Enquire Now

Property Overview

Snapshot

Number of Dwellings 20
Year Established 0
Minimum Dwelling Price $0.00
Maximum Dwelling Price $0.00

Location

Property Features

Amenities

  • Walk to shops
  • Walk to transport

Pet Policy

  • Pet Policy Not Specific

Accommodation Type

  • Retirement Village

Contractual Arrangements

  • Leasehold & License

About this Property

ECH Arch Prime Lodge

The Community

ABOUT ECH

Enjoy the freedom, friendships and security that comes from living in an ECH retirement village.

Trusted since 1964, not-for-profit provider ECH offers quality retirement living options for South Australians 65 years and over. Experience the best lifestyle possible without the worry of maintaining your home and garden; and the burden of managing council rates, water rates and long term repairs to your home.

Enquire Now

Make an Enquiry

Don't miss out!

Contact the operator of ECH Arch Prime Lodge

  • Please do not send job applications on this form. Looking for work? Submit here.

This site is protected by reCAPTCHA and the Google Privacy Policy and Terms of Service apply.

More properties from ECH

ECH Almond Grove Retirement Village, Morphett Vale

Retirement Village

Dwellings

Retirement Village

ECH Norgrove Lodge, Leabrook

Retirement Village

9 Dwellings

Retirement Village, Walk to shops, Walk to transport

ECH Ardrossan Retirement Estate, Ardrossan

Retirement Village

14 Dwellings

Retirement Village, Walk to shops, Walk to transport

Subscribe to our fortnightly newsletter

Our fortnightly newsletter brings you all the tips and tricks you need for a successful retirement, covering everything from finances and property, to health and happiness. Get prepared and sign up here.