1. Home
  2. Retirement Villages
  3. QLD
  4. Gold Coast
  5. Hope Island

Stockland Vision by Halcyon, Land Lease Community, Hope Island

11 Grant Avenue Hope Island, QLD, 4212

3

Available

  • Offers over $1,375,000

  • 2
  • 2
  • 2

Site 6 - Established Silver Mist

Marina-Side Sanctuary with Designer Upgrades Discover the epitome of boutique living in this impeccably upgraded Silver Mist home, nestled close to the water's edge in the truly one-of-a-kind Vision by Halcyon community. This sophisticated residence showcases contemporary open-plan living across a generous 249sqm layout, where every detail has been thoughtfully curated for the discerning buyer seeking freedom, fun and friendship in Gold Coast's most exclusive over-50s lifestyle community of just 88 homes. The heart of this remarkable home features a seamless flow between living, dining and gourmet kitchen, crowned by soaring double-height ceilings and enhanced by stacker doors that effortlessly connect indoor and outdoor entertaining. Premium upgrades throughout include a substantial 6.2kW solar system, ducted air conditioning, quality replacement carpets, and upgraded AEG & NEFF appliances, while the enclosed former drying courtyard showcases an artistic Greece tile mural that speaks to refined taste and Mediterranean shores. Step outside to discover multiple outdoor retreats, from the welcoming front porch with raked ceiling, to the private rear patio with extended roofline, plus an innovative Florida room with upgraded roofing. Artificial turf to rear and sides makes the home low maintenance and pet friendly. The principal bedroom serves as a true sanctuary with bespoke walk-in robe and additional built in wardrobe plus luxurious en-suite and direct patio access to rear. The versatile multi-purpose room to the front of the home offers endless possibilities as a third bedroom, studio or bar with access to front terrace. • Boutique waterfront community with private marina and pontoon access • Generous 326sqm site with 249sqm of sophisticated living space • Substantial 6.2kW solar system with 12 roof panels • Contemporary open-plan design with double-height ceilings and skylights • Multiple outdoor entertaining areas including Florida room • Master bedroom with walk-in robe and direct patio access • Versatile multi-purpose room with front terrace access • Premium kitchen with island bench and upgraded AEG & NEFF appliances • Ducted air conditioning and security alarm system • Double garage with internal access and storage Arrive by land or sea to your own slice of waterfront paradise, where you can moor your boat at the exclusive marina and enjoy direct Broadwater access just moments from Hope Island's finest shopping and dining precinct. Alternatively, homeowners can explore the waters by utilising the community kayaks, leisure craft or pontoon boat without the hassle of ownership. This is sophisticated living redefined in Vision by Halcyon's most coveted address. This is your opportunity to live with ease, elegance and a strong sense of community in a location where water, leisure and luxury unite.

Enquire Now

  • Offers over $1,350,000.00

  • 2
  • 2
  • 2
Under Offer

Site 2 - Established Silver Mist I

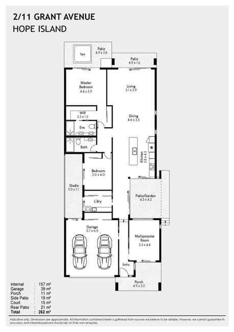
Elegant Hope Island Living with Space and Style Positioned within the exclusive waterfront community of Vision by Halcyon, Site 2 presents an exceptional opportunity to embrace a relaxed yet refined lifestyle in the heart of Hope Island. Set on a 326sqm site with a generous 262sqm home footprint, this beautifully appointed residence combines spacious living, thoughtful design and low-maintenance comfort, all within a community of just 88 homes. Welcome to Vision by Halcyon: A boutique community designed for over 50s, offering an active lifestyle and a serene waterfront experience. From the moment you arrive, the home makes a lasting impression with its defined tiled front patio, mature landscaping and welcoming entry hall featuring a striking high coffered ceiling and stainless-steel security screen door. Inside, the layout has been designed for both everyday ease and effortless entertaining, with ducted air conditioning and ceiling fans throughout ensuring year-round comfort. The heart of the home is the impressive kitchen, where style and functionality come together beautifully. Appointed with quality Neff appliances, a gas hob, ample drawers and cupboards, and a stunning 3-metre island bench with 40mm stone, this space is enhanced by pendant lighting and a feature LED-lit recess, creating a sophisticated centrepiece for cooking, dining and gathering with guests. Flowing on from the kitchen, the living area is equally inviting, highlighted by its high coffered ceiling and TV recess with tile-look acoustic panelling for a polished contemporary finish. Accommodation is generous, with two well-sized bedrooms plus a spacious multi-purpose room that offers flexibility for a study, media room, hobby space or additional guest accommodation. The MPR also enjoys access to the front patio, adding another layer of versatility. The second bedroom is conveniently located alongside the main bathroom and includes a double sliding door wardrobe, while the spacious main suite provides a luxurious retreat with a custom-fitted walk-in robe, an additional fitted robe, and a beautifully appointed ensuite featuring double vanities and a skylight. Further enhancing the home's practicality is the generous laundry with overhead cupboards and linen storage. While the original drying courtyard has been thoughtfully adapted into a versatile additional space ideal for arts and crafts, a gym or study. Internal access from the double garage adds everyday convenience, with the garage also offering a store cupboard, double slider storage area and manhole access to the eaves. Outdoor living has been equally well considered, with an alfresco patio framed by oriental-style rock landscaping and succulents, along with a rear patio deck complete with a plug-in spa and freestanding aluminium awning. Low-maintenance garden beds, lawn and established plantings create a peaceful setting to relax and unwind without the upkeep. Set within the one-of-a-kind Vision by Halcyon community, residents enjoy access to resort-style facilities, marina amenities and an enviable waterfront lifestyle with Broadwater access, a private floating boathouse and pontoon. Site 2 is a home that perfectly captures the spirit of island-style living, offering elegance, space and comfort in one of the Gold Coast's most desirable over-50s communities. • Spacious 262sqm home on a 326sqm site • Two bedrooms plus versatile MPR • Double garage with internal home access • Stylish kitchen with Neff appliances • 3m stone island bench with storage • Main suite with fitted walk-in robe • Ensuite with double vanities and skylight • Ducted air conditioning and ceiling fans • Rear deck with spa and awning • Low-maintenance gardens with established landscaping Offering an exceptional combination of space, style and low-maintenance living, Site 2 is your opportunity to secure a beautifully appointed home in the sought-after Vision by Halcyon community. With premium finishes, flexible living spaces and access to outstanding waterfront lifestyle facilities, this is a home designed to be enjoyed every day. To experience everything this impressive property and community have to offer, get in touch today to arrange your private inspection.

Enquire Now

  • Offers Over $1,250,000

  • 2
  • 1
  • 2
Under Offer

Site 22 - Established Sea Crest

Resort-Style Living in a Boutique Waterfront Community Welcome to Vision by Halcyon: A boutique community designed for over 50s, offering an active lifestyle and a serene waterfront experience. Site 22 presents an outstanding opportunity to enjoy relaxed waterfront living in one of the Gold Coast's most unique boutique over-50s communities. Surrounded by resort-style amenities and with access to the community's marina, floating boathouse and aquatic precinct, this beautifully maintained home delivers the ideal balance of comfort, practicality and lifestyle. Completed in May 2015, the home sits on a 259sqm site and offers a spacious 191sqm design with two generous bedrooms, a versatile study or media room, two bathrooms and a highly functional 1.5-car garage with additional storage. A welcoming tiled front patio framed by mature landscaping sets the tone on arrival, while the high coffered ceiling entry hall and security front door create an immediate sense of style and security. Inside, the home has been thoughtfully designed for easy living, with quality finishes and well-zoned spaces throughout. The impressive kitchen is a standout feature, complete with Miele appliances, ample drawers and cabinetry, pendant lighting and a long Caesarstone island bench that makes everyday living and entertaining effortless. The adjoining living and dining areas are enhanced by high coffered ceilings, adding light and a wonderful sense of space, while sliding doors connect seamlessly to the covered outdoor patio and drying court. The spacious main bedroom offers a fitted walk-in robe and private ensuite, while the second bedroom is well positioned alongside the main bathroom and includes a double sliding door wardrobe. The separate study provides flexibility for those needing a quiet workspace, reading room or media retreat, with its own sliding door access to the front patio. Additional highlights include replacement ducted air conditioning installed approximately in 2024, ceiling fans throughout, carpets to the bedrooms, a generous laundry with excellent storage, a mix of roller blinds and curtains, and a covered tiled patio with all-weather blinds and ceiling fan for year-round enjoyment. Outdoors, the low-maintenance gardens with established planting complete the home beautifully, allowing you to spend less time on upkeep and more time enjoying the exceptional lifestyle on offer. Site 22 is a home of comfort, quality and easy living in a truly special waterside community. The home features an efficient heat pump hot water system, contributing to its exceptional energy performance, with the current owner enjoying consistent zero balance electricity bills. • Two-bedroom plus study design • Spacious 191sqm home • 259sqm low-maintenance site • Main bedroom with ensuite and WIR • Impressive kitchen with Miele appliances • High coffered ceilings to entry and living • Covered patio with all-weather blinds • Replacement ducted air conditioning • 1.5-car garage with extra storage • Established gardens and drying courtyard • Heat pump water system If you've been searching for a stylish, low-maintenance home in a premium waterfront community, Site 22 Vision by Halcyon is one you won't want to miss. With its spacious layout, quality finishes and access to exceptional resort-style facilities, this is a lifestyle opportunity that truly stands apart. Contact us today to arrange your private inspection and discover everything this beautiful Hope Island home has to offer.

Enquire Now

Property Overview

Snapshot

Number of Dwellings 88
Type of Dwellings Low-Rise Development
Year Established 2014

Location

Property Features

Recreational Facilities

  • Golf club nearby
  • Lakes / rivers / streams on-site
  • Cinema
  • Outdoor pool
  • Community centre
  • Gymnasium
  • Art studio
  • BBQ area/s
  • Library
  • Spa (indoor, heated)
  • Workshop
  • Indoor heated pool
  • Residents lounge
  • Woodwork area
  • Community kitchen
  • Billiards room
  • Computer room
  • Craft studio
  • Walking tracks

Amenities

  • Bar (unlicensed)
  • Walk to shops
  • Village bus
  • Vegetable gardens
  • Storage for boat / caravans
  • High-speed broadband
  • Walk to transport

Pet Policy

  • Pets Allowed

Garages / Carports

  • 1 Car Garage
  • 2 Car Garage

Independence

  • Direct Garage Access
  • Secure Estate

Management

  • On-site manager
  • Residents committee
  • Resident front gate / lobby monitor
  • CCTV security

Accommodation Type

  • Manufactured Community Park

About this Property

Stockland Vision by Halcyon

The Community

A vibrant and exciting Gold Coast community where fun, freedom, and friendship are paramount. Vision by Halcyon, a boutique community of 88 homes, is nestled  by the water’s edge, and radiates pride and a strong sense of ownership. Its exceptional nature was acknowledged in 2016 when the Urban Development Institute of Australia (UDIA) awarded Vision by Halcyon the title of Queensland’s Best Seniors Living.

Reside in Hope Island, in the heart of the Gold Coast’s prestigious north, offering a serene waterfront lifestyle with Broadwater access. This sought-after suburb is surrounded by the cafes and enviable lifestyle of Sanctuary Cove and  Paradise Point, while providing a quiet escape that is rich in amenities. Across the water from Vision by Halcyon is Hope Island Marketplace where you will find two major  supermarkets, smaller stores, and medical facilities. Westfield Helensvale and Coomera are within easy reach and the M1 Motorway ensures swift Brisbane  and southern Gold Coast access, enhancing its appeal.

Embrace this vibrant community, where convenience meets luxury, and every day is an adventure in your waterfront neighbourhood.

 

Enquire Now

Stockland Halcyon Communities

The Operator

In 2021, one of Australia’s largest diversified property groups Stockland acquired Halcyon and its in-house building arm Halcyon Constructions (QLD).
Founded in 1952, Stockland owns, develops and manages a large portfolio of retail town centres, workplace and logistics assets, residential communities, retirement living villages and lifestyle communities.
Today, Stockland Halcyon Communities set a benchmark in creating safe, vibrant and thoughtfully planned lifestyle communities which offer quality, sustainability and liveability.
Halcyon Communities go further than providing the bricks and mortar of a community by offering the freedom to flourish for those ready to start an exciting new chapter that comes with a lifestyle designed for over-50s.
Through onsite caretakers and full-time community managers, the lifestyle of fun, friendship and connection is fostered to make your days easier and more enjoyable.
Here at Stockland, we are dedicated to innovating and leading the industry and look forward to unveiling new communities across the country in the years to come.

View all villages and aged care facilities of Stockland Halcyon Communities

Make an Enquiry

Don't miss out!

Contact the operator of Stockland Vision by Halcyon

  • Please do not send job applications on this form. Looking for work? Submit here.

This site is protected by reCAPTCHA and the Google Privacy Policy and Terms of Service apply.

More properties from Stockland Halcyon Communities

Stockland Halcyon Parks, Caloundra

Land Lease Community

171 Dwellings

Manufactured Community Park, On-site manager, Residents committee, Resident front gate / lobby monitor, CCTV security, Bar (unlicensed), Walk to shops, Village bus, Vegetable gardens, Storage for boat / caravans, High-speed broadband, Walk to transport

Stockland Halcyon Waters, Hope Island

Land Lease Community

227 Dwellings

Manufactured Community Park, On-site manager, Residents committee, Resident front gate / lobby monitor, CCTV security, Bar (unlicensed), Walk to shops, Village bus, Vegetable gardens, Storage for boat / caravans, High-speed broadband, Walk to transport

Stockland Halcyon Landing, Bli Bli

Land Lease Community

171 Dwellings

Manufactured Community Park, On-site manager, Residents committee, Resident front gate / lobby monitor, CCTV security, Bar (unlicensed), Walk to shops, Village bus, Vegetable gardens, Storage for boat / caravans, High-speed broadband, Walk to transport

Subscribe to our fortnightly newsletter

Our fortnightly newsletter brings you all the tips and tricks you need for a successful retirement, covering everything from finances and property, to health and happiness. Get prepared and sign up here.