1. Home
  2. Retirement Villages
  3. QLD
  4. Brisbane
  5. Greenbank

The Springs - Greenbank, Land Lease Community, Greenbank

26 Andrew Road Greenbank, QLD, 4124

31

Available

  • $500,000

  • 2
  • 1
  • 2

The perfect downsizer home

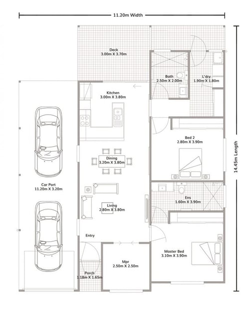
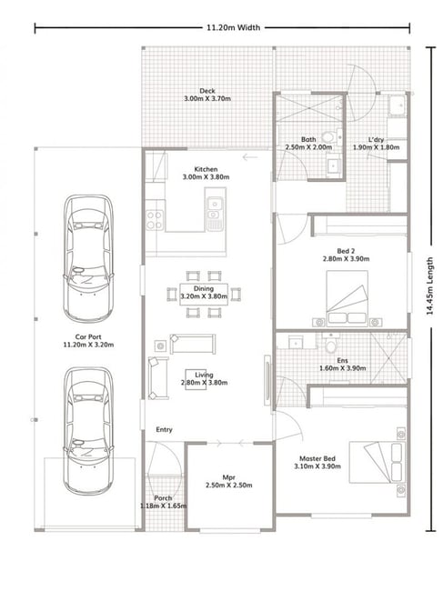
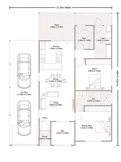
This compact two-bedroom home is designed to maximize the outdoors with a large covered alfresco. Drive into the covered carport, put down the garage door and relax in your perfect hideaway. Enjoy cooking in the large well-appointed kitchen or relaxing in the living area adjacent to the terrace. Two bedrooms with BIR Second toilet Internal laundry Air conditioned Large covered alfresco

Enquire Now

  • $POA

  • 2
  • 2
  • 2
Under Offer

Perfect lock and leave

Designed to maximize your lifestyle. This home has it all - two large bedrooms, master with full-sized ensuite plus a flexible multi-purpose room, large second bathroom, and internal laundry. Enjoy a large covered alfresco area with access from bedroom 2 and living area, where you are guaranteed to enjoy spending many hours. Two bedrooms with BIR Ensuite plus second bathroom Double car Air conditioned Large covered alfresco

Enquire Now

  • $POA

  • 2
  • 1
  • 2
Under Offer

Move in and enjoy

This well-designed home provides all the creature comforts without the upkeep. Enjoy a large kitchen flowing onto the L shaped living and dining room, two large bedrooms with BIR and full-sized bathrooms plus a guest toilet. This home is the perfect canvas to furnish as you wish. Two bedrooms with BIR Second toilet Large covered alfresco Large kitchen Air conditioned

Enquire Now

  • $POA

  • 3
  • 1
  • 2

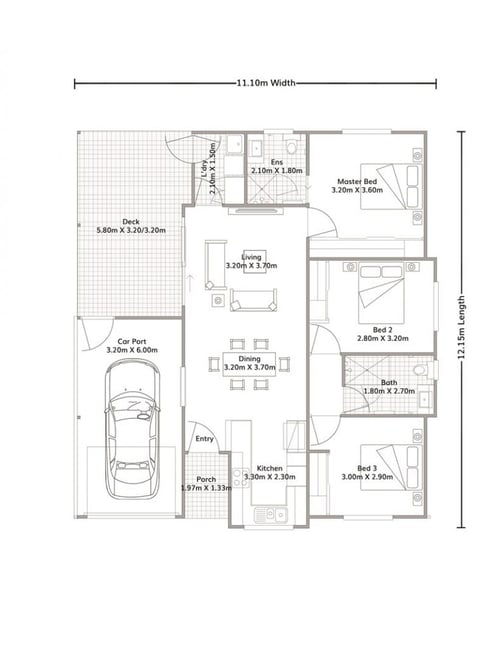
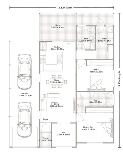
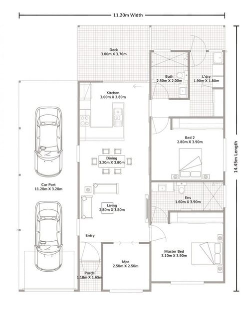
Enjoy downsizing without compromise

Designed to maximise the best in downsized living without compromising on space! Enjoy a well-appointed kitchen, spacious living and dining flowing to the covered alfresco. Complete with three large bedrooms perfect for visitors or as a second living space and master with BIR and private ensuite. Three bedrooms with BIR Ensuite plus second bathroom Large covered alfresco Air conditioned Second living space

Enquire Now

  • $540,000

  • 2
  • 1
  • 2

Move in and enjoy

This well-designed home provides all the creature comforts without the upkeep. Enjoy a large kitchen flowing onto the L shaped living and dining room, two large bedrooms with BIR and full-sized bathrooms plus a guest toilet. This home is the perfect canvas to furnish as you wish. Two bedrooms with BIR Second toilet Large covered alfresco Air conditioned Large kitchen

Enquire Now

  • $POA

  • 2
  • 1
  • 2

Flexible living to suit you

Well-designed open plan living and dining seamlessly flows to a large covered alfresco area. With the addition of a multi-purpose room, you can make your own, perhaps a second TV or craft area, the choice is yours. Master bedroom has a large ensuite and BIR plus a second guest bedroom and bathroom. Two bedrooms with BIR Second bathroom Internal laundry Air conditioned Large covered alfresco

Enquire Now

  • $527,500

  • 2
  • 1
  • 1

Affordable living without compromise

You don't have to comprise on your lifestyle with this affordable two-bedroom home design. Featuring a large master and second bedroom plus full-sized bathroom and internal laundry. This home has a well-appointed kitchen flowing to the dining and large covered alfresco terrace. Two bedrooms with BIR Airconditioned Single covered car Large undercover alfresco Internal laundry

Enquire Now

  • $POA

  • 2
  • 1
  • 2

The perfect downsizer home

This compact two-bedroom home is designed to maximize the outdoors with a large covered alfresco. Drive into the covered carport, put down the garage door and relax in your perfect hideaway. Enjoy cooking in the large well-appointed kitchen or relaxing in the living area adjacent to the terrace. Two bedrooms with BIR Second toilet Internal laundry Air conditioned Large covered alfresco

Enquire Now

  • $POA

  • 2
  • 1
  • 1
Under Offer

Move in and enjoy

This well-designed home provides all the creature comforts without the upkeep. Enjoy a large kitchen flowing onto the L shaped living and dining room, two large bedrooms with BIR and full-sized bathrooms plus a guest toilet. This home is the perfect canvas to furnish as you wish. Two bedrooms with BIR Second toilet Large covered alfresco Air conditioned Large kitchen

Enquire Now

  • $POA

  • 2
  • 1
  • 2
Under Offer

Move in and enjoy

This well-designed home provides all the creature comforts without the upkeep. Enjoy a large kitchen flowing onto the L shaped living and dining room, two large bedrooms with BIR and full-sized bathrooms plus a guest toilet. This home is the perfect canvas to furnish as you wish. Two bedrooms with BIR Second toilet Large covered alfresco Air conditioned Large kitchen

Enquire Now

  • $POA

  • 3
  • 1
  • 2
Under Offer

Enjoy downsizing without compromise

Designed to maximise the best in downsized living without compromising on space! Enjoy a well-appointed kitchen, spacious living and dining flowing to the covered alfresco. Complete with three large bedrooms perfect for visitors or as a second living space and master with BIR and private ensuite. Three bedrooms with BIR Ensuite plus second bathroom Large covered alfresco Air conditioned Second living space

Enquire Now

  • $POA

  • 2
  • 2
  • 2
Under Offer

Perfect lock and leave

Designed to maximize your lifestyle. This home has it all - two large bedrooms, master with full-sized ensuite plus a flexible multi-purpose room, large second bathroom, and internal laundry. Enjoy a large covered alfresco area with access from bedroom 2 and living area, where you are guaranteed to enjoy spending many hours. Two bedrooms with BIR Ensuite plus second bathroom Air conditioned Double car Large covered alfresco

Enquire Now

  • $POA

  • 2
  • 2
  • 2
Under Offer

Perfect lock and leave

Designed to maximize your lifestyle. This home has it all - two large bedrooms, master with full-sized ensuite plus a flexible multi-purpose room, large second bathroom, and internal laundry. Enjoy a large covered alfresco area with access from bedroom 2 and living area, where you are guaranteed to enjoy spending many hours. Two bedrooms with BIR Ensuite plus second bathroom Double car Air conditioned Large covered alfresco

Enquire Now

  • $POA

  • 2
  • 2
  • 2
Under Offer

Entertain with ease, live in comfort

Flexible living spaces combine to create an entertainer’s dream. A well-appointed kitchen flows to both internal dining and external covered alfresco. Two oversized bedrooms including a master with a full-sized ensuite adds to the liveability in this well-designed home. Drive into the double covered carport and close the door – enjoy the privacy. Two bedrooms with BIR Ensuite plus second bathroom Double car Covered alfresco Separate multi-purpose room

Enquire Now

  • $480,000

  • 2
  • 2
  • 2

READY TO ENJOY

This home is a show piece with no work to be done and is well maintained. Ensuite and WIR in main bedroom. The garden is a nature lovers environment with a large water tank to feed the home and the garden. A relaxing rear deck looking over the garden and very private setting. Large carport to park your caravan/boat/extra vehicles. AC + Fans Rainwater tank Solar system Timber floor and new carpet Close to community facilities

Enquire Now

  • $POA

  • 2
  • 2
  • 2
Under Offer

Entertain with ease, live in comfort

Flexible living spaces combine to create an entertainer’s dream. A well-appointed kitchen flows to both internal dining and external covered alfresco. Two oversized bedrooms including a master with a full-sized ensuite adds to the liveability in this well-designed home. Drive into the double covered carport and close the door – enjoy the privacy. Two bedrooms with BIR Ensuite plus second bathroom Double car Separate multi-purpose room Covered alfresco

Enquire Now

  • $439,990

  • 2
  • 2
  • 1

MOVE IN READY NOW

This home is ready to move in all the work has been done and the property is very well maintained. An inviting deck area that catches the winter sun with AC + ceiling fans for the warmer months. Close to Community hall and swimming pool 3 small car accommodation Solar panels + Solar HWS Efficient gas heating 2 garden sheds

Enquire Now

  • $POA

  • 2
  • 1
  • 2
Under Offer

Move in and enjoy

This well-designed home provides all the creature comforts without the upkeep. Enjoy a large kitchen flowing onto the L shaped living and dining room, two large bedrooms with BIR and full-sized bathrooms plus a guest toilet. This home is the perfect canvas to furnish as you wish. Two bedrooms with BIR Second toilet Large covered alfresco Air conditioned Large kitchen

Enquire Now

  • $POA

  • 3
  • 1
  • 2
Under Offer

Enjoy downsizing without compromise

Designed to maximise the best in downsized living without compromising on space! Enjoy a well-appointed kitchen, spacious living and dining flowing to the covered alfresco. Complete with three large bedrooms perfect for visitors or as a second living space and master with BIR and private ensuite. Three bedrooms with BIR Ensuite plus second bathroom Large covered alfresco Air conditioned Second living space

Enquire Now

  • $POA

  • 2
  • 1
  • 2
Under Offer

Flexible living to suit you

Well-designed open plan living and dining seamlessly flows to a large covered alfresco area. With the addition of a multi-purpose room you can make your own, perhaps a second TV or craft area, the choice is yours. Master bedroom has a large ensuite and BIR plus a second guest bedroom and bathroom. Two bedrooms with BIR Second bathroom Internal laundry Air conditioned Covered alfresco

Enquire Now

  • $POA

  • 2
  • 1
  • 1

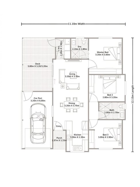
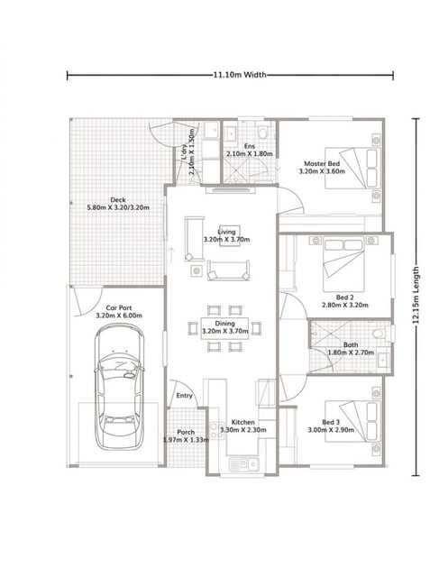
Country Style home

Eco friendly home with rain water tank & solar panels. High ceilings & louvered windows provide great ventilation. Main bedroom has walk-in robe and French doors opening out to your private deck. Both bedrooms have large storage space. Kitchen is modern with adjoining dining and lounge room. Solar + large water tank 1 car accommodation Ceiling fans and AC Bathroom/laundry comb

Enquire Now

  • $415,000

  • 2
  • 2
  • 2

Beautiful Country Style home

Eco friendly home with rain water tank & solar panels. Selling fully furnished option available. High ceilings & louvered windows provide great ventilation. Extra large Main bedroom has walk-in robe and French doors opening out to your private deck. Both bedrooms have large storage space, there is also a linen cupboard. Kitchen is modern and spacious with adjoining dining and lounge room. Solar + large water tank 2 car accommodation Large bathroom/laundry combo Ceiling fans and AC Ensuite main bedroom

Enquire Now

  • $435,000

  • 2
  • 2
  • 2

Perfect lock and leave

Designed to maximise your lifestyle. This home has it all - two large bedrooms, master with full-sized ensuite plus a flexible multi-purpose room, large second bathroom, and internal laundry. Enjoy a large covered alfresco area with access from bedroom 2 and living area, where you are guaranteed to enjoy spending many hours. Two bedrooms with BIR Ensuite plus second bathroom Double car Air conditioned

Enquire Now

  • $425,000

  • 3
  • 1
  • 2

Enjoy downsizing without compromise

Designed to maximise the best in downsized living without compromising on space! Enjoy a well-appointed kitchen, spacious living and dining flowing to the covered alfresco. Complete with three large bedrooms perfect for visitors or as a second living space and master with BIR and private ensuite. Three bedrooms with BIR Ensuite plus second bathroom Large covered alfresco Air conditioned

Enquire Now

  • $430,000

  • 2
  • 2
  • 2

Entertain with ease, live in comfort

Flexible living spaces combine to create an entertainer’s dream. A well-appointed kitchen flows to both internal dining and external covered alfresco. Two oversized bedrooms including a master with a full-sized ensuite adds to the liveability in this well-designed home. Drive into the double covered carport and close the door – enjoy the privacy. Two bedrooms with BIR Ensuite plus second bathroom Double car Separate multi-purpose room

Enquire Now

  • $POA

  • 2
  • 1
  • 2
Under Offer

Affordable living without compromise

You don't have to comprise on your lifestyle with this affordable two-bedroom home design. Featuring a large master and second bedroom plus full-sized bathroom and internal laundry. This home has a well-appointed kitchen flowing to the dining and large covered alfresco terrace. Two bedrooms with BIR Airconditioned Single covered car Large undercover alfresco Internal laundry

Enquire Now

  • $POA

  • 3
  • 1
  • 2
Under Offer

Enjoy downsizing without compromise

Designed to maximise the best in downsized living without compromising on space! Enjoy a well-appointed kitchen, spacious living and dining flowing to the covered alfresco. Complete with three large bedrooms perfect for visitors or as a second living space and master with BIR and private ensuite. Three bedrooms with BIR Ensuite plus second bathroom Large covered alfresco Air conditioned Second living space

Enquire Now

  • $POA

  • 2
  • 2
  • 2
Under Offer

Perfect lock and leave

Designed to maximise your lifestyle. This home has it all - two large bedrooms, master with full-sized ensuite plus a flexible multi-purpose room, large second bathroom, and internal laundry. Enjoy a large covered alfresco area with access from bedroom 2 and living area, where you are guaranteed to enjoy spending many hours. Two bedrooms with BIR Ensuite plus second bathroom Double car Air conditioned

Enquire Now

  • $478,000

  • 2
  • 1
  • 2

Quality Home - Ready to enjoy $480,000

This home is impeccably maintained and a very comfortable home with an inviting garden at rear of home. The deck is very private and great for entertaining There is no work required, just move in and enjoy. Also, upgraded AC units plus upgraded security screens/doors Plantation shutters 1 car accommodation Upgraded security screen Ceiling fans and AC upgraded MPR - office/craft room

Enquire Now

  • $POA

  • 2
  • 2
  • 2
Under Offer

Entertain with ease, live in comfort

Flexible living spaces combine to create an entertainer’s dream. A well-appointed kitchen flows to both internal dining and external covered alfresco. Two oversized bedrooms including a master with a full-sized ensuite adds to the liveability in this well-designed home. Drive into the double covered carport and close the door – enjoy the privacy. Two bedrooms with BIR Ensuite plus second bathroom Double car Separate multi-purpose room

Enquire Now

  • $POA

  • 2
  • 2
  • 2
Under Offer

Perfect lock and leave

Designed to maximise your lifestyle. This home has it all - two large bedrooms, master with full-sized ensuite plus a flexible multi-purpose room, large second bathroom, and internal laundry. Enjoy a large covered alfresco area with access from bedroom 2 and living area, where you are guaranteed to enjoy spending many hours. Two bedrooms with BIR Ensuite plus second bathroom Double car Air conditioned

Enquire Now

Property Overview

Snapshot

Location

Property Features

Recreational Facilities

  • Outdoor bowling green
  • Outdoor pool
  • Community centre
  • BBQ area/s
  • Library

Amenities

  • Vegetable gardens

Pet Policy

  • Pets Allowed

Accommodation Type

  • Over 55s Development

Contractual Arrangements

  • Land Lease

About this Property

The Springs - Greenbank

The Community

Introducing The Springs - Greenbank, an idyllic community nestled in the heart of the beautiful suburb of Greenbank in Queensland. Operated by Hometown Australia, this stunning residential complex blends the serenity of rural living with the convenience of being just a short drive from all the essentials.

At The Springs - Greenbank, you will find a range of modern and stylish homes that are designed for comfortable living. With spacious living areas, top-of-the-line appliances and beautifully landscaped gardens, residents can expect nothing but the best. The community boasts a range of amenities that cater to all ages and interests. Take a dip in the sparkling swimming pool or work your green thumb in our community garden. Got grandkids or guests visiting? Head to the barbeque area and host a cookout!

The Springs - Greenbank is located near the best that Greenbank has to offer. Enjoy easy access to local shops, schools, dining options and recreational opportunities. Experience the many parks and trails, bike rides or picnics with family and friends. It's no wonder why the residents here are known to enjoy a vibrant and social lifestyle. 

Come and discover what The Springs - Greenbank has to offer. Live a life that is relaxing, enriching and serene. Contact our team to schedule a viewing today!

Enquire Now

Hometown Australia

The Operator

Hometown Australia is proud to build on the reputation Hometown America has earned over more than two decades as one of the largest, and most respected, owners and operators of Land Lease communities in the USA.

Hometown America currently owns over 60 inspiring communities, with more than 24,000 homes across the United States.

With almost 300 employees Hometown in Australia is home to approximately 12,000 residents in over 60 communities.

With unyielding dedication and integrity to enhance the quality of life for the homeowners in its communities, Hometown promises responsive service, personal respect, well-maintained and fairly priced living environments.

Fundamental to Hometown’s long and successful track record is being known for our:

  • quality amenities

  • professional management

  • active community involvement

  • good citizenship and corporate responsibility.

We’re dedicated to giving Australians over 50* years of age the lifestyle and facilities they deserve.

View all villages and aged care facilities of Hometown Australia

Make an Enquiry

Don't miss out!

Contact the operator of The Springs - Greenbank

  • Please do not send job applications on this form. Looking for work? Submit here.

This site is protected by reCAPTCHA and the Google Privacy Policy and Terms of Service apply.

More properties from Hometown Australia

Bremer Waters - Moores Pocket, Moores Pocket

Land Lease Community

178 Dwellings

Over 55s Development, Manufactured Community Park, On-site manager, Residents committee, Resident front gate / lobby monitor, Security patrols of village, CCTV security, Hairdresser, Village bus, Beauty Salon, Vegetable gardens, Storage for boat / caravans, Walk to transport

Sea Winds - Anna Bay, Anna Bay

Land Lease Community

Dwellings

Retirement Village, Storage for boat / caravans, High-speed broadband

Kingfisher Gardens, Kearneys Spring

Retirement Village

Dwellings

Retirement Village, Pay TV, Walk to shops, High-speed broadband, Walk to transport

Subscribe to our fortnightly newsletter

Our fortnightly newsletter brings you all the tips and tricks you need for a successful retirement, covering everything from finances and property, to health and happiness. Get prepared and sign up here.