1. Home
  2. Retirement Villages
  3. QLD
  4. Brisbane
  5. Goodna

Oak Tree Retirement Village Goodna, Retirement Village, Goodna

32 Brennan Street, Goodna, QLD, 4300

4.5

Wellbeing

Mental

This scored 83%

Social

This scored 71%

Physical

This scored 81%

Operations

This scored 83%

Financial

This scored 80%

2

Available

Dove - 32 Brennan Street, Goodna, QLD, 4300

  • $330,000

  • 1
  • 0
  • 1

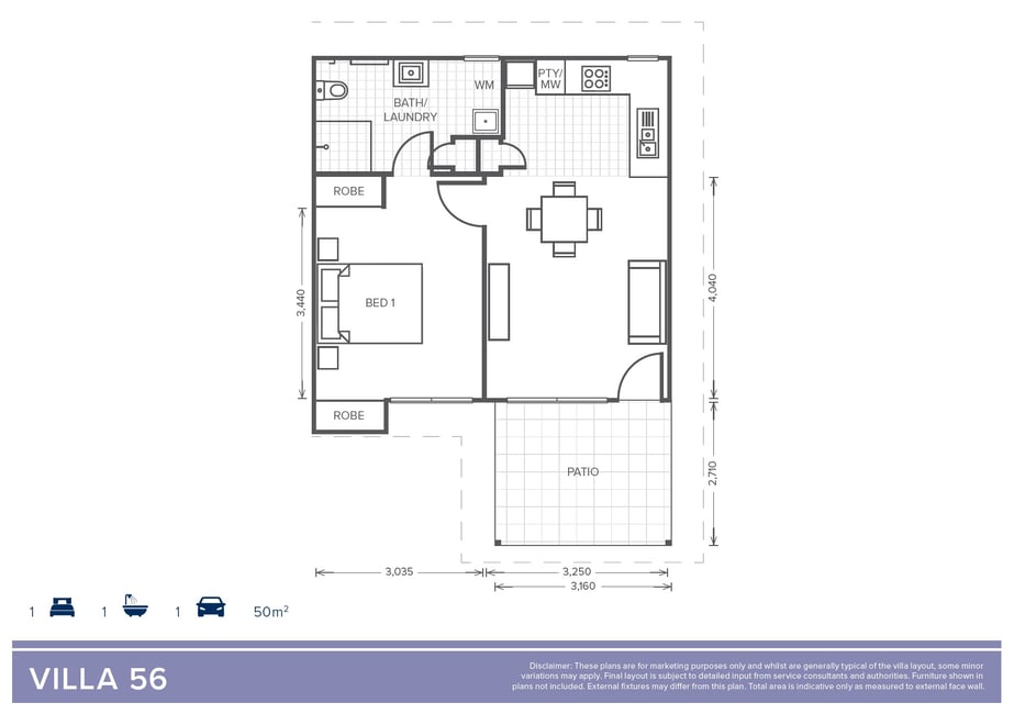
Villa 56 1 Bedroom + 1 Bathroom

Located close to the Village Centre, Villa 56 includes lower bench tops in the kitchen, grab rails in the bathroom, shower and toilet that cater for greater accessibility. This villa is a low-maintenance home with a well-planned layout featuring one bedroom, and a generous bathroom, open-plan kitchen and living area connect easily to a patio for relaxed outdoor living. A centralised carparking space is included.

Our villas are designed and built for seniors and have been thoughtfully designed to help you live in your own home for longer, with all the comforts needed for safe and easy living.

Oak Tree Group is proud to be a member of the Retirement Living Council of the Property Council of Australia and are committed to following the high standards of retirement living as signatory to the Retirement Living Code of Conduct. We operate within the ambit of the retirement villages legislation applicable in each state, and our financial models, village management and operations, are consistent with those legislative frameworks.

Enquire Now

Dove - 32 Brennan Street, Goodna, QLD, 4300

  • 320,000

  • 1
  • 1
  • 1

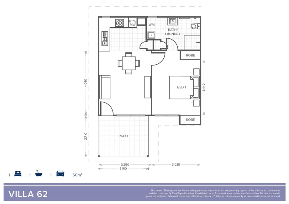
Villa 62 1 Bedroom + 1 Bathroom

The Dove design is an open plan, 1 bedroom, 1 bathroom villa with a full size kitchen and private outdoor area.  A centralised carparking space is included.

Our villas are designed and built for seniors and have been thoughtfully designed to help you live in your own home for longer, with all the comforts needed for safe and easy living. Quality fixtures, ample storage, reverse cycle air conditioning and a convenient wall oven are sought after features included in the full size kitchen.

Featuring a private outdoor area for entertaining, this home offers privacy, independence and the facilities you need now and into the future.

Oak Tree Group is proud to be a member of the Retirement Living Council of the Property Council of Australia and are committed to following the high standards of retirement living as signatory to the Retirement Living Code of Conduct. We operate within the ambit of the retirement villages legislation applicable in each state, and our financial models, village management and operations, are consistent with those legislative frameworks.

Enquire Now

Property Overview

Snapshot

Number of Dwellings 63
Type of Dwellings Low-Rise Development

Location

Property Features

Recreational Facilities

  • Outdoor bowling green
  • Outdoor pool
  • Community centre
  • BBQ area/s
  • Library
  • Workshop
  • Residents lounge
  • Community kitchen
  • Billiards room
  • Computer room

Amenities

  • Hairdresser
  • Walk to shops
  • Community TV
  • Walk to transport

Pet Policy

  • Pets Allowed

Garages / Carports

  • Carport

Independence

  • Home care services
  • Secure Estate
  • Level access

Management

  • On-site manager
  • Resident front gate / lobby monitor

Accommodation Type

  • Retirement Village

Contractual Arrangements

  • Loan & License

About this Property

Oak Tree Retirement Village Goodna

The Community

Our gated Village community of just 63, fully self-contained homes provides you with the security that gives additional peace of mind.

The villas strike the ideal balance between function and space to provide everything you need to live comfortably without compromise.

Positioned on an elevated block, enjoy peaceful breezes beneath the tree tops in the leafy surrounds of the Bellbird Park bushlands.

Our managed maintenance model ensures you can finally sit back, relax and enjoy the lifestyle you've worked so hard for.

OPEN FOR PRIVATE INSPECTIONS, MONDAY - FRIDAY FROM 10am - 2pm                 

 

Enquire Now

Oak Tree Retirement Villages

The Operator

When Oak Tree was founded in 2004, the goal was never to be the biggest, but the very best in independent retirement living.

Almost twenty years later, we have built a reputation for being the trusted name in retirement, and the dependable and confident choice for retirees wanting an easier, richer lifestyle. With an expanding portfolio of over 30 villages across four states, and several new developments in the pipeline, we have a proven track record for understanding the needs of retirees, built on a platform of certainty, confidence, and credibility.

At Oak Tree, we strive to deliver the ultimate retirement lifestyle experience for our residents. We take a personal approach, and our friendly team are always here to answer any questions you might have throughout the entire process.

With villas and apartments thoughtfully designed with your changing needs in mind, likeminded neighbours and community activities that keep you connected and social, and village facilities that encourage an active, healthy lifestyle, Oak Tree has everything you need for a vibrant, relaxed retirement.

 

View all villages and aged care facilities of Oak Tree Retirement Villages

Make an Enquiry

Don't miss out!

Contact the operator of Oak Tree Retirement Village Goodna

  • Please do not send job applications on this form. Looking for work? Submit here.

This site is protected by reCAPTCHA and the Google Privacy Policy and Terms of Service apply.

More properties from Oak Tree Retirement Villages

Oak Tree Retirement Village Boronia Heights, Boronia Heights

Retirement Village

44 Dwellings

Retirement Village, On-site manager, Resident front gate / lobby monitor, Hairdresser, Walk to shops, Community TV, Walk to transport

Oak Tree Retirement Village Toowoomba – Baker St, Toowoomba City

Retirement Village

57 Dwellings

Over 55s Development, Retirement Village, On-site manager, Resident front gate / lobby monitor, Hairdresser, Community TV, Walk to transport

Oak Tree Retirement Village Burpengary, Burpengary

Retirement Village

81 Dwellings

Over 55s Development, Retirement Village, On-site manager, Residents committee, Medical alert to external call centre, Village bus

Subscribe to our fortnightly newsletter

Our fortnightly newsletter brings you all the tips and tricks you need for a successful retirement, covering everything from finances and property, to health and happiness. Get prepared and sign up here.