1. Home
  2. Retirement Villages
  3. NSW
  4. South Coast
  5. South Nowra

Rest Point Village, Land Lease Community, South Nowra

9 Browns Road South Nowra, NSW, 2541

2

Available

  • $459,000

  • 2
  • 1
  • 1

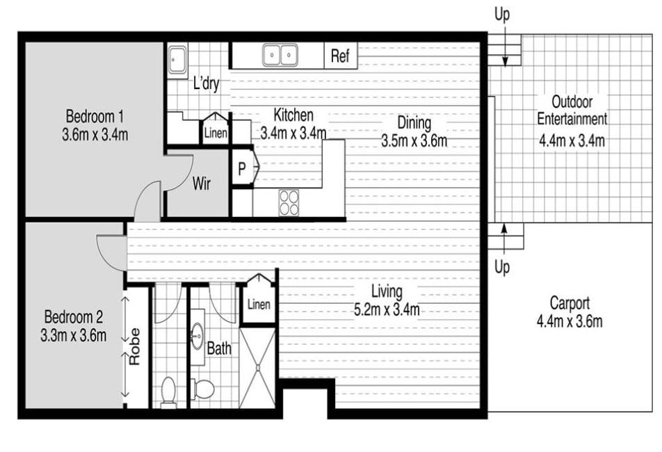
Rest Point Village - Site 07

This beautifully presented two-bedroom home offers a fantastic opportunity to embrace a relaxed, low-maintenance lifestyle in the newest section of Rest Point Village, a secure over-50s community on the stunning South Coast of NSW. With all the hard work already done, you can simply turn the key and start enjoying your next chapter. Designed for comfort and ease, the home features a light-filled open layout with air conditioning, ceiling fans and blinds throughout to keep you comfortable year-round. Both bedrooms include built-in robes, while the separate laundry and spacious bathroom add practical touches. The extra-wide front doorway allows natural light and airflow to filter through the home. Outside, enjoy your morning cuppa on the front porch or entertain guests on the private side deck. Located just minutes from Nowra CBD and a short drive to the beautiful beaches of Jervis Bay, this home is move-in ready and not to be missed.(Reference No: HAMP-00358-627)

Enquire Now

  • $435,000

  • 2
  • 1
  • 1

Rest Point Village - Site 22

The home situated on site 22 at Rest Point Village will make you smile from the moment you arrive, get ready to tick all of the boxes on your wish list. This cleverly designed home boasts making the most out of a great location and will take your love for being at Home to a whole new level with its Stylish design, generous living spaces and quality inclusions. Strongly focused on creating the ideal setting for an all year round home perfect for entertaining family and friends or simply put your feet up and embrace the comforts of this spacious home situated in one of the Shoalhavens most sought after Over 50's lifestyle Villages - Dont miss out - take a tour today - this could be your best move yet. Key turn ready - Generous sized home - Pet friendly - low maintenance - large covered patio, the Chef will love this kitchen -2 large bedrooms -Main includes walk in Robe 2nd inc BIR. 2nd toilet. Linen cupboard. Bathroom includes extra large shower with grab rails. The list of inclusions is long - call Marie on 44216856 today for an appointment see this for yourself.

Enquire Now

Property Overview

Snapshot

Number of Dwellings 65
Type of Dwellings Low-Rise Development
Minimum Dwelling Price $180,000.00
Maximum Dwelling Price $340,000.00

Location

Property Features

Recreational Facilities

  • Outdoor pool
  • Community centre
  • BBQ area/s
  • Library
  • Residents lounge
  • Community kitchen
  • Craft studio

Amenities

  • Walk to shops
  • Community TV
  • Walk to transport

Pet Policy

  • Pets Allowed

Garages / Carports

  • 1 Car Garage
  • 2 Car Garage
  • Carport

Independence

  • Direct Garage Access
  • Adaptable Bathroom
  • Secure Estate
  • Level access

Management

  • Residents committee

Accommodation Type

  • Over 55s Development
  • Manufactured Community Park

Contractual Arrangements

  • Buy
  • Land Lease

About this Property

Rest Point Village

The Community

Rest Point Village is situated at South Nowra in the Northern Shoalhaven district of New South Wales. The village is just 3km from Nowra CBD and an easy 2 ½ drive from both Sydney and Canberra. Rest Point Village is within easy reach of local shops and medical facilities while the stunning beaches of Jervis Bay are less than 30 minutes away. 

Our residents enjoy affordable low maintenance homes, a variety of social groups and activities and a friendly community. The sense of security that comes from living at Rest Point Village is priceless giving you peace of mind and the opportunity to enjoy the lock up and leave lifestyle if you wish. 

Rest Point Village offers a unique finance option known as Shared Equity which enables you to secure your new home and the lifestyle you have been dreaming of sooner rather than later and without having to break the bank. Freed up capital, that would otherwise be tied up in your home, can then be spent or invested as you choose. 

If you're looking to be part of a close knit community with all the benefits that it offers then you will fall in love with Rest Point Village

Enquire Now

Hampshire Villages

The Operator

Deciding where to live in retirement is one of life’s biggest choices. At Hampshire Villages, we’ve been guiding Australians through that decision for more than 20 years, creating welcoming land lease communities where over 50s can feel both at home and at ease.

As an Australian-owned family company, we put people first. Our villages are shaped by care, respect and a strong sense of connection, with supportive teams who understand what matters most. Just as importantly, our clear and trusted financial model gives residents confidence that their future is secure.

With Hampshire Villages, you’ll find more than a new home - you’ll discover a lifestyle built on community, independence and peace of mind.

View all villages and aged care facilities of Hampshire Villages

Make an Enquiry

Don't miss out!

Contact the operator of Rest Point Village

  • Please do not send job applications on this form. Looking for work? Submit here.

This site is protected by reCAPTCHA and the Google Privacy Policy and Terms of Service apply.

More properties from Hampshire Villages

Lake Munmorah Lifestyle Village, Lake Munmorah

Land Lease Community

Dwellings

Over 55s Development, On-site manager, Resident front gate / lobby monitor, Walk to shops, Village bus, Vegetable gardens, Storage for boat / caravans, Walk to transport

Bribie Pines Island Village, Bribie Island North

Land Lease Community

208 Dwellings

Manufactured Community Park, On-site manager, Residents committee, Resident front gate / lobby monitor, Security patrols of village, Walk to shops, Walk to transport

Cooroy Garden Village, Cooroy

Land Lease Community

Dwellings

Retirement Village, On-site manager, Pay TV

Subscribe to our fortnightly newsletter

Our fortnightly newsletter brings you all the tips and tricks you need for a successful retirement, covering everything from finances and property, to health and happiness. Get prepared and sign up here.